Exploring Innovative Sports Architecture: Zsoms Sports Hall Cracow by eM4.Pracownia Architektury.Brataniec
Explore Zsoms Sports Hall in Cracow, a masterpiece of innovative sports architecture that seamlessly integrates with its urban surroundings.
Sports architecture is a dynamic field that combines functionality with innovative design to create spaces that are both engaging and effective for their users. The Zsoms Sports Hall in Cracow, designed by eM4.Pracownia Architektury.Brataniec, is a prime example of how contemporary design techniques can revolutionize traditional sports facilities.





Architectural Concept and Design of Zsoms Sports Hall
Building Integration and Facade Dynamics
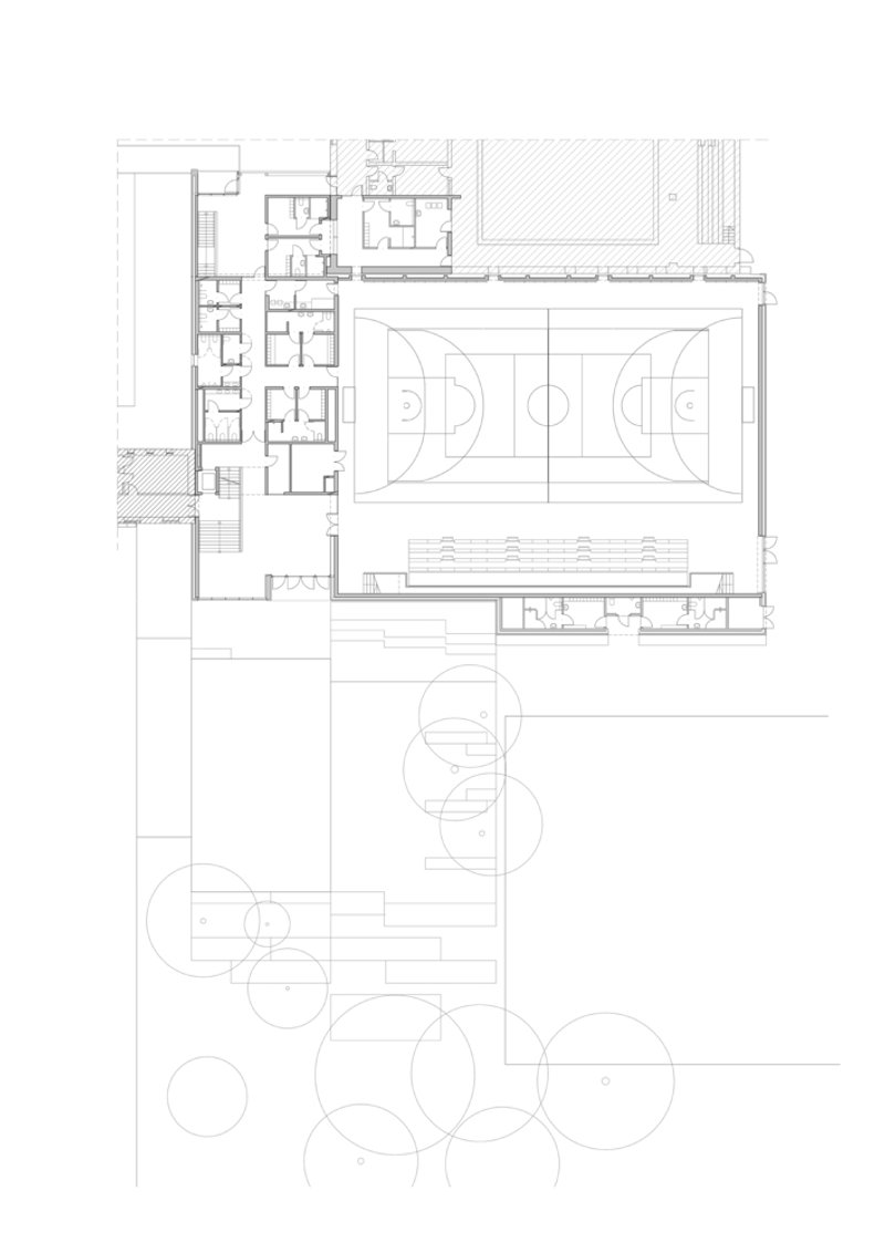
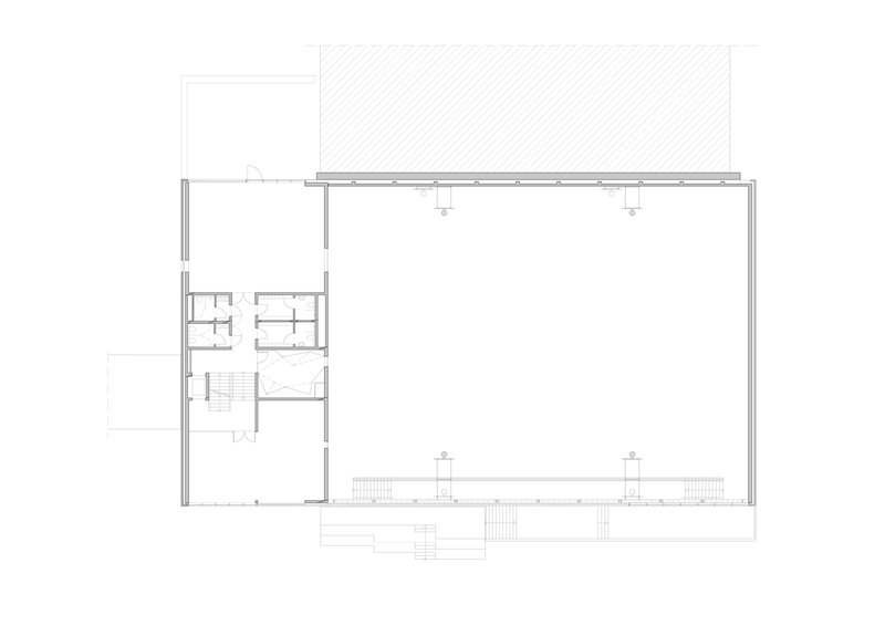
The design of the Zsoms Sports Hall reflects a deep understanding of spatial dynamics and user interaction within a sports facility. The hall's integration into the existing urban fabric was handled masterfully, with a perpendicular block that absorbs and complements its surrounding structures.





Facade and Exterior Interaction
The facade of the sports hall is not merely a boundary but a reactive element that enhances the interaction between the hall and its courtyard environment. High glazing allows the courtyard to penetrate the hall visually, while the wooden facade extends into a terrace, and the roof of the locker rooms serves as an auditorium for school games—allowing spectators to view inside the hall.






Interior Design and Functionality
Spatial Layout and Accessibility
The interior of Zsoms Sports Hall is designed to promote easy access and fluid movement across different areas. The hall provides a direct connection to the school, facilitating access to previously hard-to-reach floors. This is achieved through a well-planned layout that includes a new elevator and strategically placed staircases.





Multi-functional Spaces
Inside the hall, the design emphasizes versatility and multi-use capabilities. A new large hall replaces the old smaller one, while training rooms and a fitness room have been relocated to more functional areas within the new structure. The fitness room, now capable of being darkened, also serves as a space for the school's drama club, highlighting the hall's flexible design.


Material Selection and Aesthetic Choices
Natural and Industrial Materials
The material palette for Zsoms Sports Hall combines raw concrete, light natural wood, and steel, creating an environment that is both raw and refined. These materials are chosen not only for their durability but also for their aesthetic qualities, providing a neutral backdrop that complements the vibrant activities of the school.




Color and Directional Elements
Color is used judiciously to enhance navigational ease and connect different spaces within the hall. Strategic placement of colorful signs, plaques, and painted railings guide visitors fluidly from one area to another, while the dark blue floor of the hall visually leads towards the swimming pool, emphasizing thematic continuity.



The Impact of Innovative Design in Sports Facilities
Zsoms Sports Hall is more than just a building; it's a beacon of innovative sports architecture that enhances the functionality and aesthetic appeal of sports facilities. By integrating advanced architectural practices with practical solutions, eM4.Pracownia Architektury.Brataniec has created a space that not only meets the diverse needs of its users but also contributes positively to the architectural landscape of Cracow.





All photographs are work of Juliusz Sokołowski, Marcin Brataniec
Popular Articles
Popular articles from the community
Treehouse Apartment: A Warm Timber Interior Blending Craft, Play, and Contemporary Living
Warm timber apartment with integrated treehouse, combining natural materials, craftsmanship, and playful design to create a flexible, family-oriented living environment.
Louis Malle Cinema: A Limestone Cultural Landmark Revitalizing Community Life in Prayssac
Limestone cinema extension with public forecourt, blending heritage and modern design to create flexible cultural spaces and strengthen community interaction.
An Miên Lumière Cafe by xưởng xép, Ho Chi Minh City, Vietnam
An industrial-inspired café where layered steel and warm light create a dynamic, immersive environment shaped by reflection, depth, and perception.
The Ken Roberts Memorial Delineation Competition (Krob)
As the most senior architectural drawing competition currently in operation anywhere in the world, it draws hundreds of entries each year, awarding the very best submissions in a series of medium-based categories.
Similar Reads
You might also enjoy these articles
The Ken Roberts Memorial Delineation Competition (Krob)
As the most senior architectural drawing competition currently in operation anywhere in the world, it draws hundreds of entries each year, awarding the very best submissions in a series of medium-based categories.
Waterfront Redevelopment and Urban Revitalization in Mumbai: Forging a New Dawn for Darukhana
A transformative waterfront redevelopment project reimagining Darukhana’s shipbreaking heritage into an inclusive urban future.
OUT-OF-MAP: A Call for Postcards on Feminist Narratives of Public Space
Rhizoma Design and Research Lab invites artists, designers, architects, researchers, and students to reflect on how feminist perspectives can reshape public space. Selected works will be exhibited in Barcelona, October 2026. Submissions open until 15 April 2026.
Documentation Work on Buddhist Wooden Temple
Architectural syncretism and cultural hybridity: A comparative study of the Buddhist temples in Chattogram Hill tracks
Explore Architecture Competitions
Discover active competitions in this discipline
The International Standard for Design Portfolios
The Global Benchmark for Architecture Dissertation Awards
The Global Benchmark for Graduation Excellence
Challenge to design a barrier free sports center
Comments (0)
Please login or sign up to add comments
No comments yet. Be the first to comment!