FEZH: A Minimal Urban Unit for Healing, Culture, and Everyday Life Itm by Yooehwa Architects
A compact cultural and healing hub in Hannam-dong, FEZH reimagines urban life through layered spaces, community interaction, and restorative architecture.
In the dense and evolving neighborhood of Hannam-dong, Seoul, FEZH emerges as a compact yet layered urban experiment—one that reconsiders how architecture can nurture community, healing, and cultural exchange within a constrained footprint. Designed by Itm Yooehwa Architects and completed in 2024, the 1,196-square-meter mixed-use project proposes a new model of “minimal urbanism,” where architecture functions less as an isolated object and more as a living fragment of the city.

The name FEZH encapsulates the project’s conceptual foundation, merging Fez, Healing, and Hannam-dong. This triad reflects both the architectural inspiration drawn from the historic medina of Fes El Bali and the project’s ambition to serve as a restorative and cultural node within its contemporary urban context. Like the dense, organic fabric of traditional cities, FEZH is conceived as a small city within the city—an interconnected system of spaces that encourages exploration, encounter, and pause.


Reinterpreting the Organic City
At the heart of FEZH lies a reinterpretation of Fes El Bali’s clustered urban structure, where tightly packed dwellings form a cohesive social and spatial fabric. Rather than mimicking historical forms, the project abstracts their logic—emphasizing proximity, layered circulation, and the fluid transition between public and private realms.

FEZH translates this logic into a vertical, mixed-use structure that consolidates essential communal programs: cultural venues, healing spaces, gardens, and social areas. The building positions itself not as a destination alone, but as an extension of Hannam-dong’s alleyways—absorbing the rhythms, scales, and intimacy of the neighborhood.

The Voided Space: An Urban Sanctuary
The project’s spatial and symbolic core is the Voided Space, a vertical void that connects the basement and ground level. More than a circulation device, this void functions as an urban sanctuary, drawing daylight, air, and movement deep into the building. It operates like a contemporary interpretation of a historic square—a place where encounters happen organically and where the building breathes with the city.


Sunlight filters down through this void, while breezes circulate naturally, creating a microclimate that softens the dense urban surroundings. The space invites visitors to pause, observe, and interact, establishing a shared center that anchors the diverse programs around it.

Architecture as a Journey
Movement through FEZH is deliberately non-linear. Interwoven vertical and horizontal circulation paths create an experience akin to wandering through an old city—where discovery unfolds gradually, and no two journeys are the same. Stairs, corridors, and transitional spaces overlap and intersect, encouraging visitors to explore intuitively rather than follow a prescribed route.

This choreography of movement reinforces FEZH’s ambition to support independent yet interconnected experiences. Visitors may engage deeply with a single space or drift through multiple programs, shaping their own narrative within the architecture.


Civic Spaces Within a Compact Footprint
At street level, D-SQUARE serves as FEZH’s most overtly civic space. Aligned with both the street and the void above, it functions as a communal plaza—hosting concerts, gatherings, and everyday activities. Its openness reinforces FEZH’s role as an accessible public space within Hannam-dong, blurring the boundary between building and city.

Nearby, BLUE CAT offers a contrasting atmosphere—intimate, introspective, and culturally charged. Inspired by the literary and musical sensibilities of Haruki Murakami, the space combines curated soundscapes, literature, and weekly performances. It is designed not for spectacle, but for immersion, encouraging slower, more contemplative engagement.


Cultural Layers and Restorative Landscapes
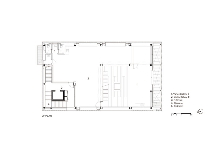
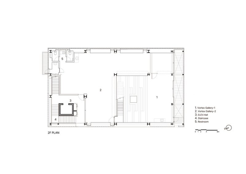
Ascending through the building, the Vortex Gallery introduces a dynamic exhibition environment shaped by layered circulation and filtered light. Adaptable in nature, the gallery accommodates pop-up exhibitions, performances, and cultural events, reinforcing FEZH’s identity as a flexible cultural platform rather than a fixed institution.

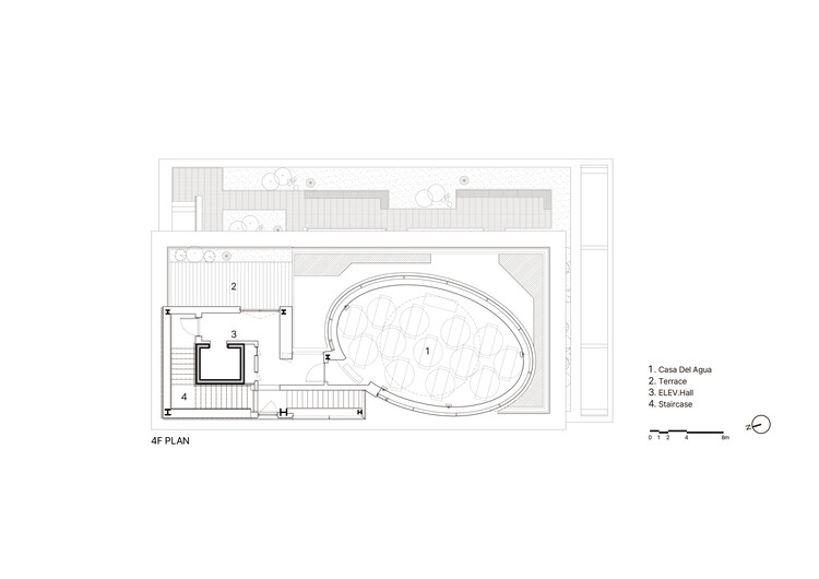
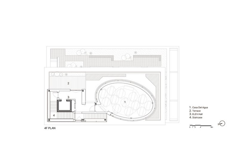
Higher still, the architecture transitions toward healing and retreat. Pocket Garden Heaven and its accompanying teahouse form a compact ecological park within the dense city—a place for yoga, tea ceremonies, and quiet reflection. Vegetation, light, and openness contrast sharply with the surrounding urban density, offering moments of relief and reconnection with nature.

The journey culminates in Casa del Agua, an immersive interior landscape that integrates water, hinoki cypress, and audiovisual systems. This space is designed as a restorative environment, where sensory elements—sound, scent, texture, and light—work together to promote calm and introspection. Here, architecture becomes an instrument for healing, addressing both physical and emotional well-being.
Materiality Rooted in Place
Material selection throughout FEZH is deeply tied to the character of Hannam-dong’s alleyways. Brick and charred wood form the project’s primary palette, offering warmth, tactility, and a sense of familiarity. These materials bridge the gap between past and present, grounding the building within its historical context while supporting contemporary construction techniques.


Charred wood adds depth and durability, while brick introduces a human scale and textural richness. Together, they soften the building’s presence and reinforce its relationship with the surrounding neighborhood, allowing FEZH to feel embedded rather than imposed.
The City as a Living Organism
FEZH is conceived as an organism—a structure shaped by people, culture, and time. Its spaces are designed to evolve, accommodating changing uses and interpretations. Rather than prescribing behavior, the architecture creates conditions for interaction, creativity, and growth.

By integrating culture, healing, and everyday life into a compact architectural form, FEZH proposes an alternative vision of urbanism—one rooted in intimacy, discovery, and connection. It suggests that cities of the future need not rely solely on scale or spectacle, but on thoughtfully designed spaces that prioritize human experience.
In the gentle alleyways of Hannam-dong, FEZH stands as a quiet yet powerful reminder that architecture can still foster community, nurture well-being, and inspire cultural exchange—one minimal urban unit at a time.
All the Photographs are works of Jeon Hyowon, Yongkwan Kim
Popular Articles
Popular articles from the community
Alton Cliff House: A Harmonious Retreat by f2a Architecture in Lake Country, Canada
Alton Cliff House blends corten steel, prefabrication, and sustainable design, creating a luxurious, energy-efficient retreat perched on Canadian cliffs.
Gads Hill Early Learning Center by JGMA: Adaptive Reuse Shaping Community-Focused Educational Architecture
Adaptive reuse transforms fragmented structure into vibrant early learning center with playful façade, natural light, and community-focused sustainable design.
Split House: A Compact Urban Home Blending Privacy, Light, and Flexible Living in Japan
Compact Japanese home featuring DOMA space, flexible café potential, passive lighting, privacy zoning, and sustainable urban living design.
Similar Reads
You might also enjoy these articles
The Ken Roberts Memorial Delineation Competition (Krob)
As the most senior architectural drawing competition currently in operation anywhere in the world, it draws hundreds of entries each year, awarding the very best submissions in a series of medium-based categories.
Waterfront Redevelopment and Urban Revitalization in Mumbai: Forging a New Dawn for Darukhana
A transformative waterfront redevelopment project reimagining Darukhana’s shipbreaking heritage into an inclusive urban future.
OUT-OF-MAP: A Call for Postcards on Feminist Narratives of Public Space
Rhizoma Design and Research Lab invites artists, designers, architects, researchers, and students to reflect on how feminist perspectives can reshape public space. Selected works will be exhibited in Barcelona, October 2026. Submissions open until 15 April 2026.
Documentation Work on Buddhist Wooden Temple
Architectural syncretism and cultural hybridity: A comparative study of the Buddhist temples in Chattogram Hill tracks
Explore Architecture Competitions
Discover active competitions in this discipline
The International Standard for Design Portfolios
The Global Benchmark for Architecture Dissertation Awards
The Global Benchmark for Graduation Excellence
Challenge to design locus for the upliftment of human rights
Comments (0)
Please login or sign up to add comments
No comments yet. Be the first to comment!