FK Kindergarten and Nursery: Redefining Kindergarten Architecture on Sloped Sites in Fukahori Town
FK Kindergarten uses sloped terrain and local culture to create a playful, nature-integrated space for experiential early childhood education.
Designed by HIBINOSEKKEI, Youji no Shiro, and Kids Design Labo, the FK Kindergarten and Nursery is a powerful demonstration of how thoughtful kindergarten architecture on sloped sites can transform topographic constraints into spatial opportunities. Located in Fukahori Town, Nagasaki Prefecture—a coastal area rich in fishing history and hillside settlements—the project draws directly from its cultural and physical landscape to create an engaging, child-centered environment.


Integrating Terrain and Tradition in Design
The project site features a nearly 7-meter elevation difference, typical of the sloping terrain of Fukahori. While many institutional projects might have opted to flatten such a site, the architects instead chose to embrace the slope, using it to reduce the building’s environmental impact and to enrich the learning and play experience for children.


This sensitive siting strategy minimizes excavation, avoids excessive soil transport, and reduces CO₂ emissions. But more significantly, the slope becomes an asset—transformed into an adventurous playground that supports the physical and cognitive development of young learners. It reflects the way Fukahori residents have long coexisted with the land, building homes tightly along narrow, sloping streets.


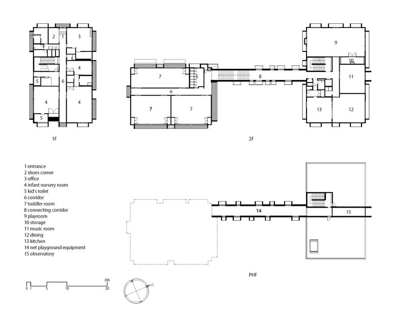
A Three-Part Composition Following the Landscape
The kindergarten is composed of three main volumes: one at the top of the slope, one at the bottom, and a connecting corridor that bridges them. This linear configuration directly reflects the narrow alleyways of the town, and the corridor becomes much more than just a transitional space. With its expansive staircase and built-in climbing net, it is a hybrid zone of movement, interaction, and imaginative play—where indoors and outdoors blend seamlessly.



The design encourages continuous exploration, allowing children to run up and down the slope, engage in spontaneous activity, and discover new paths of movement that change with the weather and seasons. This spatial openness supports a pedagogy rooted in experiential learning, where the architectural form itself becomes a teacher.



Material Expression Rooted in Place
Material selection reinforces the project’s strong connection to place. The exterior walls, interior finishes, and furniture adopt the hues and textures of Nagasaki: blue echoing the harbor waters, red referencing historic brick architecture from foreign influences, and earthy tones evoking the stone-paved alleys of the old town.



This local color palette gives the children a tangible connection to their hometown, subtly embedding a sense of identity and belonging within the architectural fabric. From the highest point of the playground, children can look out over the town and the ocean—an act of orientation that makes the environment feel both expansive and intimately theirs.



A Model for Contextual Early Childhood Architecture
FK Kindergarten and Nursery stands as a forward-thinking model for kindergarten architecture on sloped sites, showing how environmental, cultural, and social dimensions can be harmonized in educational design. Rather than impose a generic building on the land, the architects crafted a space that grows out of the terrain—one that transforms every elevation change, corridor, and view into an educational opportunity.


By allowing children to engage with their environment both physically and visually, the project nurtures curiosity, independence, and a deep-rooted understanding of place. It’s an architecture that doesn’t just house education, but actively participates in it.

All Photographs are works of Ryuji Inoue
Popular Articles
Popular articles from the community
Inverted Architecture Installation by Studio Link-Arc: Exploring the Intersection of Architecture and Living Organisms
Inverted Architecture Installation by Studio Link-Arc blends mycelium, sustainability, inverted design, ecological cycles, and urban adaptive architecture in Shenzhen.
Split House: A Compact Urban Home Blending Privacy, Light, and Flexible Living in Japan
Compact Japanese home featuring DOMA space, flexible café potential, passive lighting, privacy zoning, and sustainable urban living design.
Fifth NRE Jazz Club – De Bever Architecten: Eindhoven’s Revitalized Cultural Hub
Historic gas factory transformed into Fifth NRE Jazz Club blending modern sustainability, jazz culture, dining, and heritage architecture seamlessly.
Gads Hill Early Learning Center by JGMA: Adaptive Reuse Shaping Community-Focused Educational Architecture
Adaptive reuse transforms fragmented structure into vibrant early learning center with playful façade, natural light, and community-focused sustainable design.
Similar Reads
You might also enjoy these articles
Free Architecture Competitions You Can Enter Right Now
No entry fees, real prizes. Here are the best free architecture competitions open for submissions in 2026.
Top 15 Architecture Competitions to Enter in 2026
From student-friendly idea competitions to prestigious international awards, here are the best architecture competitions open for entries in 2026. Updated regularly.
DIY & Engineering in Computational Design : Enter the BeeGraphy Design Awards
Showcase Your Creativity with Computational Design and Open Source Projects

Innovative Design Solutions: Award-Winning Projects from Recent Architecture Competitions
Exploring award-winning architectural projects shaping the future of design, sustainability, and community.
Explore Architecture Competitions
Discover active competitions in this discipline
The International Standard for Design Portfolios
The Global Benchmark for Architecture Dissertation Awards
The Global Benchmark for Graduation Excellence
Challenge to reimagine the Iron Throne
Comments (0)
Please login or sign up to add comments
No comments yet. Be the first to comment!