Flexible Office Design in Argentina: A Case Study of Orange Obras Civiles Offices by Agustín Lozada
This article explores the innovative flexible office design of Orange Obras Civiles in Argentina, designed by Agustín Lozada for adaptability.
The evolving nature of work environments, especially in response to rapid organizational changes, demands innovative office designs that can adapt to varying needs. The Orange Obras Civiles Offices in Córdoba, Argentina, designed by Agustín Lozada, exemplify how flexible office design can effectively support dynamic business structures.




Overview of the Orange Obras Civiles Office Project
Project Background and Location
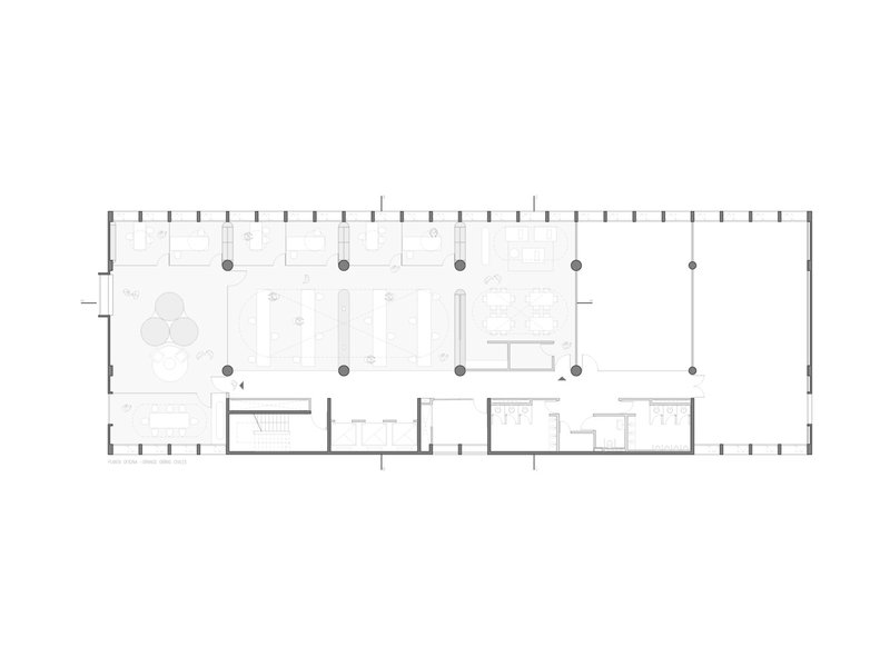
Located within the Airport Business Park in Córdoba, close to the city’s airport, the Orange Obras Civiles offices were conceived to support the company's growth and frequent changes in team size and function. The project encompasses a total area of 360m², organized into a highly adaptable layout.




Design Objectives and Challenges
The primary challenge was creating a space that could quickly adapt to the organization's changing needs without frequent and extensive renovations. The design needed to facilitate both collaborative and private workspaces while embodying the company's corporate identity.





Key Features of the Office Design
Modular Layout
Open Plan Structure
The office space is divided into four main modules, each designed to serve distinct functions within the company—from collaborative work areas to leisure and dining spaces. This modular approach allows for easy reconfiguration of spaces as needed.






Zoning and Transparency
The design utilizes transparent elements and strategically placed walls to define different zones within the office, maintaining an open feel while providing separation when necessary.




Material Selection and Aesthetic
Corporate Identity and Material Use
The office design incorporates materials that reflect the corporate identity, such as exposed coffered slabs and clear equipment, which not only enhance the aesthetic quality but also contribute to a sense of openness and light.




Focus on Comfort and Well-being
Material choices and design elements prioritize natural lighting and spaciousness, creating a comfortable environment that enhances employee well-being and productivity.




Integrating Flexibility and Functionality
Dynamic Workspaces
The central modules are designed to foster collective and collaborative work, featuring spaces that can be easily adapted for different group sizes and types of work.


Leisure and External Links
The design incorporates areas for leisure and informal meetings at one end, with facilities for more formal external engagements at the entrance. This layout supports a fluid transition between various work modes within the same environment.


The Future of Office Design in Argentina
The Orange Obras Civiles Offices by Agustín Lozada stand as a benchmark for flexible office design in Argentina. As companies continue to evolve, such adaptive environments will become crucial in supporting the changing dynamics of workplace needs. This project not only addresses the immediate requirements of its occupants but also sets a precedent for future office designs that prioritize flexibility, functionality, and employee well-being.



All photographs are work of Lorenzo Egues
Popular Articles
Popular articles from the community
Solar Steam: A Climate-Responsive Architecture That Redefines the Monument
A climate-responsive memorial architecture that transforms heat, decay, and time into a living system reflecting humanity’s ecological impact.
Inverted Architecture Installation by Studio Link-Arc: Exploring the Intersection of Architecture and Living Organisms
Inverted Architecture Installation by Studio Link-Arc blends mycelium, sustainability, inverted design, ecological cycles, and urban adaptive architecture in Shenzhen.
Treehouse Apartment: A Warm Timber Interior Blending Craft, Play, and Contemporary Living
Warm timber apartment with integrated treehouse, combining natural materials, craftsmanship, and playful design to create a flexible, family-oriented living environment.
A Contemporary Take on Iranian Residential Architecture
A modern interior design in Mashhad that reinterprets brick, light, and spatial flow to create a warm, contemporary residential architecture.
Similar Reads
You might also enjoy these articles
The Ken Roberts Memorial Delineation Competition (Krob)
As the most senior architectural drawing competition currently in operation anywhere in the world, it draws hundreds of entries each year, awarding the very best submissions in a series of medium-based categories.
Waterfront Redevelopment and Urban Revitalization in Mumbai: Forging a New Dawn for Darukhana
A transformative waterfront redevelopment project reimagining Darukhana’s shipbreaking heritage into an inclusive urban future.
OUT-OF-MAP: A Call for Postcards on Feminist Narratives of Public Space
Rhizoma Design and Research Lab invites artists, designers, architects, researchers, and students to reflect on how feminist perspectives can reshape public space. Selected works will be exhibited in Barcelona, October 2026. Submissions open until 15 April 2026.
Documentation Work on Buddhist Wooden Temple
Architectural syncretism and cultural hybridity: A comparative study of the Buddhist temples in Chattogram Hill tracks
Explore Architecture Competitions
Discover active competitions in this discipline
The International Standard for Design Portfolios
The Global Benchmark for Architecture Dissertation Awards
The Global Benchmark for Graduation Excellence
Challenge to reimagine the Iron Throne
Comments (0)
Please login or sign up to add comments
No comments yet. Be the first to comment!