Hargar Studio Carves Light Back into a La Plata Chorizo House with Glass Brick and Open Air
Forbici Academy reclaims a suffocated traditional house in central La Plata, turning it into a salon and school flooded with daylight.
The "chorizo" house is one of Argentina's most recognizable residential typologies: a linear chain of rooms threaded along a party wall, punctuated by courtyards that provide light and air. In La Plata, as in Buenos Aires, economic pressure has a habit of devouring those courtyards. Owners roof them over, infill them, stack storage into them, and eventually every room goes dark. By the time Hargar Studio arrived at this particular lot in the city center, the building had consumed 100 percent of its footprint. No patio survived. No facade existed. The house had been sealed into its own block like a fossil in limestone.
What makes Forbici Academy compelling is not that it is a renovation. Adaptive reuse is everywhere. What distinguishes it is the surgical precision of the moves: reintroduce a courtyard to let the building breathe, then wrap the street elevation in a translucent glass brick skin that gives the project an identity it never had. The result is a 300-square-meter hybrid program, a hairdressing salon on the ground floor and a training academy above, that reads as simultaneously old and new, opaque and luminous. It is a project about recovery, not reinvention.
A Facade Made of Light



The original building presented a blank face to the street, or worse, no face at all. Hargar Studio's response is a gridded glass brick wall that rises to match the cornice lines of its neighbors while asserting its own material logic. The translucency is deliberate: from outside, the facade catches and scatters sunlight into a soft glow, turning the building into a lantern at dusk. From inside, it floods the front rooms with diffused daylight, eliminating the cave-like quality that plagued the previous layout.
Rectangular window openings punched through the glass brick field prevent the envelope from becoming monotonous. They also serve a practical ventilation role, with chain-operated awning mechanisms that allow occupants to modulate airflow without sacrificing the wall's visual consistency. The effect is a facade that functions like a screen: permeable to light and breeze, but protective of privacy and acoustic comfort in a busy commercial street.


Seen from the sidewalk under a canopy of street trees, the glass brick surface creates a dialogue between the organic texture of foliage and the rigid regularity of the grid. It is a simple contrast, but it works. The building sits comfortably between ordinary shopfronts, neither shouting for attention nor disappearing into the block.
Glass Brick from the Inside



The interior face of the glass brick wall is where the material really performs. Floor-to-ceiling translucency transforms the front rooms into luminous boxes where light quality shifts throughout the day. In the morning, warm low-angle sun penetrates deep into the salon. By afternoon, the diffusion evens out into a flat, even wash that flatters skin tones under the mirrors. For a hairdressing space, this is not a minor detail. Lighting is the primary tool of the trade.
Operable windows with visible chain mechanisms give the wall a mechanical honesty. Potted plants clustered along the base soften the junction between polished concrete floor and glass, and the greenery visible through the openings ties the interior back to the street trees outside. It is a layered threshold rather than a hard boundary.
The Recovered Courtyard


If the glass brick facade gives the building a public face, the reintroduced courtyard gives it lungs. The double-height void carved into the middle of the plan restores the spatial logic of the original chorizo house. Light drops vertically through a skylight, bouncing off white-painted brick walls and spilling into the adjacent rooms. A staircase threads through this void, connecting ground-floor salon to upper-level academy.
The angled skylight above the stair casts sharp diagonal shadows across the walls, creating a temporal marker that shifts through the day. It is a small architectural pleasure, the kind of incidental effect that only happens when you design with real light rather than relying on fixtures. The stairwell becomes the most photogenic moment in the building, not because it is decorated, but because it is honest about structure, material, and sun.
Exposed Bones: Brick, Steel, and Ductwork



Hargar Studio made the smart decision to leave the building's structural history visible. Load-bearing brick walls are cleaned and whitewashed rather than clad. Steel columns and IPN beams remain exposed, their connections visible. Ductwork runs openly across the ceiling, suspended beneath concrete slabs. The palette is deliberately restrained: white brick, pale green steel on the new staircase, raw concrete overhead, polished concrete underfoot.
This approach avoids the trap of "industrial chic" because it is not a stylistic choice. It is a practical one. The budget is visibly finite. The architects spent their money on the glass brick facade and the courtyard intervention, then let the existing fabric do the rest of the work. The result feels authentic rather than curated, a building that wears its history without performing nostalgia.
The Salon Floor



The ground-floor salon is organized as a long, open-plan sequence of workstations separated by freestanding glass partitions. These partitions maintain visual continuity while providing acoustic separation between stations. Grey cabinetry and styling consoles are kept deliberately minimal, functioning as furniture within the architectural shell rather than competing with it.



Individual stations are framed by portal openings in the whitewashed brick walls, each one a small room within the larger room. Globe mirror lights and mobile cabinets give stylists flexibility to reconfigure their workspace. The overall effect is closer to a gallery than a typical salon: clean sight lines, soft natural light, and enough spatial variation to keep the long plan from feeling repetitive.
Details That Earn Their Place



A glass shelving unit against the front brick wall doubles as product display and light filter, catching the glow from the glass brick facade. Grey curtains modulate the storefront when needed. Bird-of-paradise plants and other tropical species appear throughout the interior, their broad leaves providing a biological counterpoint to the mineral palette of brick, concrete, and steel.


The upper level, visible through glass partitions and across the courtyard void, houses the educational program. Wash stations and reclining chairs occupy one wing, with the mezzanine overlooking the double-height space below. The cross-section of the building is legible from almost any point, reinforcing the sense that the project is fundamentally about opening up a structure that had been sealed shut.
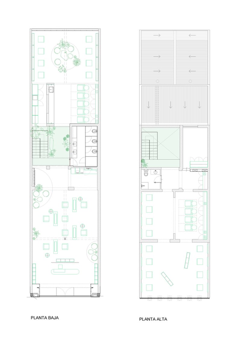
Plans and Drawings


The floor plans reveal the full extent of the intervention. The courtyard is positioned roughly at the center of the lot, splitting the program into street-facing and rear volumes. Planted areas within the courtyard and along vertical surfaces are indicated, confirming that greenery is an intentional part of the environmental strategy rather than decoration. The section drawing exposes the double-height central space, the staircase threading through it, and the relationship between the new glass brick facade and the existing party walls.


The elevation drawing shows the glass brick grid in its full urban context, aligned to adjacent building heights with a recessed entry. The axonometric is the most revealing drawing: three distinct volumes are visible, connected by the courtyard and vertical garden. A perforated screen facade wraps the upper level at the rear, suggesting that the light-filtering strategy of the glass brick front is echoed, in a different material register, at the back of the lot.
Why This Project Matters
Forbici Academy matters because it demonstrates that the most effective renovation strategy is often subtractive rather than additive. The critical move here was not building something new. It was removing what had been built badly: peeling back the infill, reopening the courtyard, restoring the spatial logic that the chorizo typology always depended on. The glass brick facade is a genuine addition, but it works precisely because it lets light in rather than keeping it out. Every major decision in this project is oriented toward porosity.
For a modest 300-square-meter project in a mid-sized Argentine city, the ambition here is quietly significant. Hargar Studio did not pursue spectacle. They pursued legibility, letting the old structure speak through whitewashed brick and exposed steel, while the new elements announce themselves through translucency and precision. It is a model for how to work with the vast stock of degraded traditional housing that fills Latin American city centers, not by tearing it down or embalming it, but by remembering what made it work in the first place.
Forbici Academy, La Plata, Argentina. Architect: Hargar Studio. Area: 300 m². Year: 2022. Photography: Luís Barandiarán.
About the Studio
Hargar Studio
Official website of Hargar Studio, one of the studios behind this project.
instagram.comShare Your Own Work on uni.xyz
If projects like this are the kind of work you want to make, uni.xyz is a place to publish your own, find collaborators, and enter design competitions.
Popular Articles
Popular articles from the community
Fausto Terán and Toro Fuse Japanese Craft with Mexican Tradition in a Lakeside Retreat
Nakamura House pairs Shou-Sugi-Ban charred pine with handmade clay tile at the foot of Atlangatepec Lagoon in Mexico.
RDTH architekti Rips Out Nearly Every Wall in a Prague Apartment and Replaces Them with Furniture
A 101-square-meter post-war flat in Prague trades rigid partitions for a single rotated furniture block, curtains, and glass concrete.
HCCH Studio Wraps a Shanghai High-Rise Office in Curved Walls of Translucent Glass
A 1,000 square meter fit-out in Lujiazui replaces the typical tech-office palette with layered glass, micro-cement, and quiet rigor.
3dor Concepts Wraps a Kerala Home in Mirrored Concrete Arcs Around a Courtyard Tree
In the Western Ghats foothills of Thamarassery, a 270 m² single-story house uses two curved volumes to frame nature as its center.
Similar Reads
You might also enjoy these articles
Olio Towers: A Mid-Rise for Performers That Fuses Housing, Rehearsal, and Stage
Located blocks from Houston's Theater District, this modular tower stacks living units around a central performance atrium.
Oasis: Modular Green Housing Carved into Dhaka's Urban Fabric
A shortlisted Plugin Housing entry reclaims unauthorized settlements in Dhaka with stepped concrete volumes, green roofs, and ventilation-driven design.
Black Hole: A Floating Megastructure for the Post-Physical Era
Emiliano Mazzarotto envisions a spherical, self-scaling arena where e-sports, digital hotels, and holographic stadiums replace traditional public space.
Compact & Sustainable Living in Piraeus: A Four-Level Family Home Built Around Light and Air
A narrow townhouse in one of Greece's densest port cities uses a central atrium and passive strategies to house three generations under one roof.
Explore Architecture Competitions
Discover active competitions in this discipline
The International Standard for Design Portfolios
The Global Benchmark for Architecture Dissertation Awards
The Global Benchmark for Graduation Excellence
Challenge to reimagine the Iron Throne
Comments (0)
Please login or sign up to add comments
No comments yet. Be the first to comment!