Future Campus Architecture in China: Shenzhen Middle School Guangming Science City by Atelier Global
An innovative school campus in Shenzhen redefining future education through ecological design, spatial layering, and urban integration.
A Visionary Educational Landmark for Shenzhen
Shenzhen Middle School Guangming Science City School, designed by Atelier Global, exemplifies the next generation of future campus architecture in China. Completed in 2023 in Shenzhen’s Guangming Science City, the project reimagines what a middle school can be—blending ecology, technology, culture, and human-centered design into a layered, sustainable, and immersive educational experience.




At the heart of the design is a clear ambition: to cultivate a dynamic learning environment that extends beyond classroom walls, fostering intellectual, social, and emotional development. Atelier Global has envisioned a new typology for future-focused learning that integrates urbanism, architecture, and nature into a cohesive whole—creating not only a school but a knowledge oasis.




Innovative Planning for a Triangular Urban Site
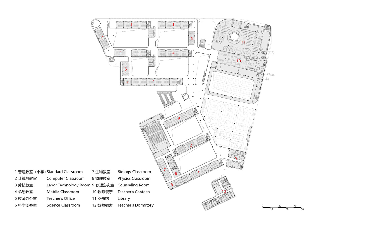
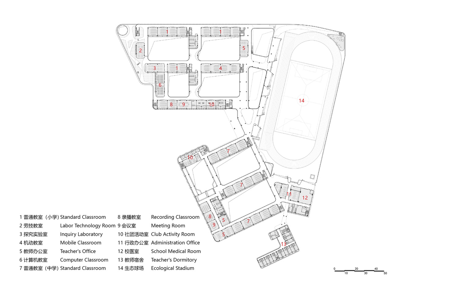
The campus responds directly to its triangular urban footprint, employing a three-dimensional organizational strategy that maximizes functional efficiency while integrating with the surrounding environment. The academic buildings line the quieter western edge, buffered from the arterial road by generous setbacks and overlooking a natural waterway.



To the northeast, the athletic complex rises at the level of the vehicle canopy, optimizing both views and spatial accessibility. On the southern edge, faculty housing is placed to maintain visual and programmatic distinction from the learning environment, while a dual-entry system separates pedestrian and vehicular movement, ensuring safety and fluid circulation.



The Central Teaching Axis: A Three-Dimensional Educational Spine
Rather than anchoring learning solely in classrooms, the design revolves around a vibrant central teaching axis that structures the school vertically and horizontally. This pedagogical spine connects multiple platforms, levels, and zones—supporting a rich mix of formal, informal, and spontaneous learning.



Through this spatial network, students are encouraged to explore, interact, and collaborate across diverse contexts. This multi-level arrangement aligns with contemporary educational trends by promoting interdisciplinary exchange, cultural engagement, and intellectual curiosity—while reflecting a layered urban vitality.




Semi-Enclosed Courtyards for Collective Engagement
Atelier Global replaces rigid, stacked academic blocks with interwoven courtyard typologies that promote communication and discovery. These semi-enclosed courtyards act as lungs and hearts of the school, bringing light, air, and interaction into the academic fabric. Elevated ground floors reduce perceived density while enhancing ventilation, visibility, and openness.


This porosity of space provides flexibility in usage, allowing the same environment to adapt to group gatherings, quiet reflection, outdoor learning, and playful interaction—all essential to holistic development.


A Multi-Layered Ecological Design
One of the defining features of this future campus architecture in China is its three-dimensional green ecosystem. Atelier Global integrates ecological design on multiple levels—from ground-level pathways to elevated green bridges, sunken gardens, and rooftop farms.


These green layers allow students and faculty to constantly engage with nature, whether walking between classes, participating in gardening, or simply observing seasonal changes. The campus becomes not only a space for education but a daily ecological experience that deepens environmental consciousness.


A Contemporary Vernacular for Shenzhen’s Urban Identity
In its materiality and form, the architecture pays homage to both Shenzhen’s urban evolution and academic tradition. The upper façades are fluid and curvilinear, echoing modern urban forms, while the lower levels feature collegiate-red terracotta bricks, referencing traditional school architecture and grounding the design in academic identity.


This architectural duality—between the future and the familiar—supports a balanced and respectful integration within the city fabric, marking the school as both a forward-looking institution and a culturally embedded civic structure.


Redefining the Future of Learning Environments
Shenzhen Middle School Guangming Science City School is a manifesto for future campus design in China. It responds to contemporary pedagogical shifts, rapid urbanization, and environmental challenges with architectural intelligence and spatial innovation.


Through thoughtful zoning, ecological integration, social spaces, and adaptable learning environments, Atelier Global sets a new benchmark for how schools can become holistic ecosystems—nurturing the body, mind, and community. As education continues to evolve, this campus offers a scalable and inspiring model for schools in China and beyond.

All Photographs are works of Right Angle Image
Popular Articles
Popular articles from the community
Flamboyant House by Juliana Camargo + Prumo Projetos
Modern Brazilian house integrating existing tree, pool, and volumes with glass, wood, and transitional spaces blending interior, exterior, and landscape seamlessly.
A Contemporary Take on Iranian Residential Architecture
A modern interior design in Mashhad that reinterprets brick, light, and spatial flow to create a warm, contemporary residential architecture.
An Miên Lumière Cafe by xưởng xép, Ho Chi Minh City, Vietnam
An industrial-inspired café where layered steel and warm light create a dynamic, immersive environment shaped by reflection, depth, and perception.
On the Brooks House by Monsoon Collective – A Contemporary Kerala Home Rooted in Tradition
Kerala home blending tradition and modernity with water-inspired design, brick architecture, courtyard planning, and sustainable rainwater harvesting strategies.
Similar Reads
You might also enjoy these articles
Top 15 Architecture Competitions to Enter in 2026
From student-friendly idea competitions to prestigious international awards, here are the best architecture competitions open for entries in 2026. Updated regularly.
DIY & Engineering in Computational Design : Enter the BeeGraphy Design Awards
Showcase Your Creativity with Computational Design and Open Source Projects

Innovative Design Solutions: Award-Winning Projects from Recent Architecture Competitions
Exploring award-winning architectural projects shaping the future of design, sustainability, and community.
Explore Architecture Competitions
Discover active competitions in this discipline
The International Standard for Design Portfolios
The Global Benchmark for Architecture Dissertation Awards
The Global Benchmark for Graduation Excellence
Challenge to reimagine the Iron Throne
Comments (0)
Please login or sign up to add comments
No comments yet. Be the first to comment!