Goosheha Office Building: Redefining Tehran Architecture by Nazanin Gholami
Exploring Goosheha Office Building's innovative design by Nazanin Gholami in Tehran, focusing on unique facade and daylight optimization challenges.
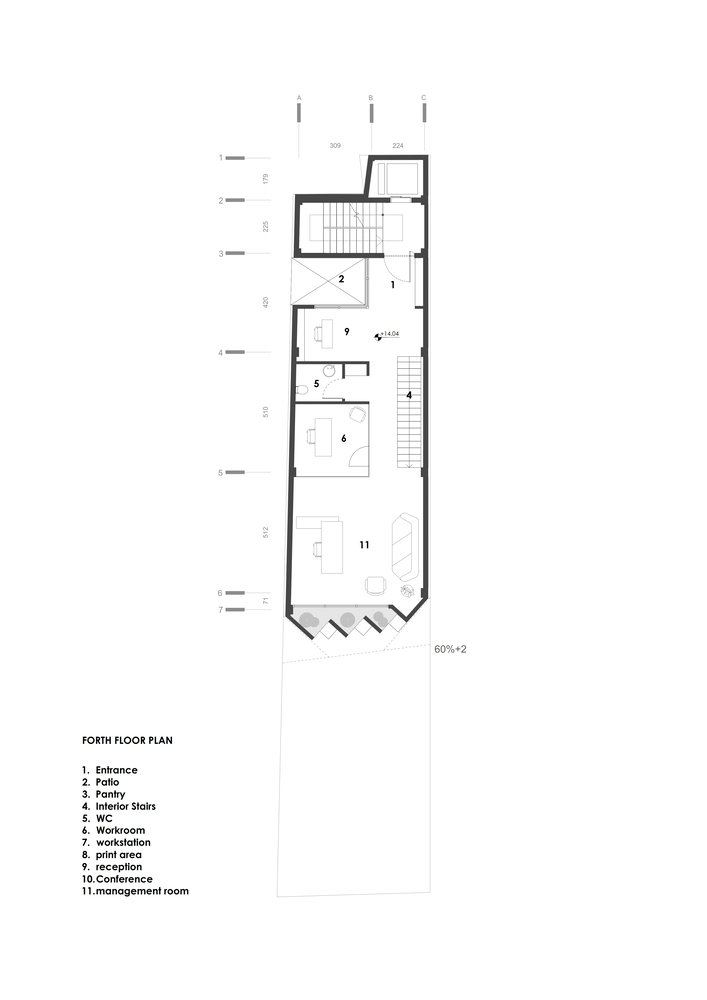
The Goosheha Office Building, designed by Nazanin Gholami, stands as a testament to innovative architectural solutions in Tehran, Iran. Completed in 2023, this 680 m² office building addresses the unique challenges posed by its narrow site and stringent municipal regulations, creating a harmonious blend of functionality and aesthetic appeal.


Architectural Challenges and Solutions
Site Constraints
Located in the Yusefabad neighborhood, the Goosheha Office Building faced two primary challenges: the narrow width and long length of the site, and the presence of two chamfered walls on the sides. Municipal regulations prohibiting windows in chamfered walls led to insufficient daylighting from the southern side. Nazanin Gholami’s design approach ingeniously maximized window area and daylighting while respecting these constraints.


Volumetric Facade Design
The neighborhood's architectural context, known for its high-quality examples of modernist architecture, inspired Gholami to design a volumetric facade. By setting the transparent layer of the facade (windows) slightly back, a space was created between the stone cladding and the transparent layer. This space acts as a joint between the interior and exterior, enhancing the quality of the interior space. The use of a single material for all facade surfaces emphasized the volumetric composition, ensuring cohesive integration of the volumes.


Interior and Exterior Integration
Enhanced Interior Spaces
Within the interior, the varying viewpoints relative to the windows provide different levels of visibility to the external space. This design creates a dynamic interaction between the interior and exterior, enhancing the occupants' experience as they navigate through the building.


Innovative Facade
The facade’s orientation changes as one moves along the alley, offering different perspectives and adding visual interest. This variation creates a unique experience, challenging the conventional facade designs seen in surrounding buildings, which often rely on material diversity for attractiveness. Gholami's approach transforms the facade from a mere surface to a space, fading the borders between the inside and outside.


Materials and Manufacturers
The building’s construction utilized materials from various manufacturers, including Avandad, Kara Glass, Monte, Tabriz Tile Concept, SPL Lighting, and Zigma Tile Co. The choice of a single material for the facade surfaces maintained focus on the volumetric design, enhancing the building's overall aesthetic.
The Goosheha Office Building by Nazanin Gholami exemplifies how thoughtful design can overcome site constraints and regulatory challenges to create an innovative and functional architectural masterpiece. By blending traditional elements with modernist principles, this project not only respects the architectural heritage of Tehran but also sets a new standard for office building designs in urban settings.


All photographs are work of Mohammad Hassan Ettefagh
Popular Articles
Popular articles from the community
Split House: A Compact Urban Home Blending Privacy, Light, and Flexible Living in Japan
Compact Japanese home featuring DOMA space, flexible café potential, passive lighting, privacy zoning, and sustainable urban living design.
Atelier Macri Concept Store Interior Design by CASE-REAL
Atelier Macri store features a "ko" counter, walnut wood details, cork displays, blending retail, gallery, and seamless customer experiences.
Inverted Architecture Installation by Studio Link-Arc: Exploring the Intersection of Architecture and Living Organisms
Inverted Architecture Installation by Studio Link-Arc blends mycelium, sustainability, inverted design, ecological cycles, and urban adaptive architecture in Shenzhen.
Similar Reads
You might also enjoy these articles
Architectural Competition: Create a Luxury Waterfront Community in the UAE!
Mira Developments announces an open competition for the pre-concept design of Mira Coral Bay in Ras Al Khaimah, UAE
Parametric Design: What Can You Learn from the 1st Workshop of Beegraphy?
Discover the Fundamentals and Advanced Techniques of Parametric Design
Feast of flight factory
A new ecological order with sustainable food resources-insects
Beyond Blueprints : How Architecture Presentation Boards Define The Design Narratives?
Unveiling the Art and Strategy Behind Architectural Storytelling
Explore Office Building Competitions
Discover active competitions in this discipline
The International Standard for Design Portfolios
The Global Benchmark for Architecture Dissertation Awards
The Global Benchmark for Graduation Excellence
Challenge to reimagine the Iron Throne
Comments (0)
Please login or sign up to add comments
No comments yet. Be the first to comment!