GuestHouse 50: A Stunning Renovation in Luxembourg by Kaell Architecte
A detailed look at GuestHouse 50, a restored Luxembourg townhouse blending heritage with modern multifunctional design by Kaell Architecte.
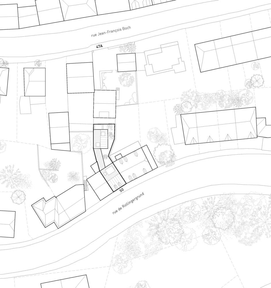
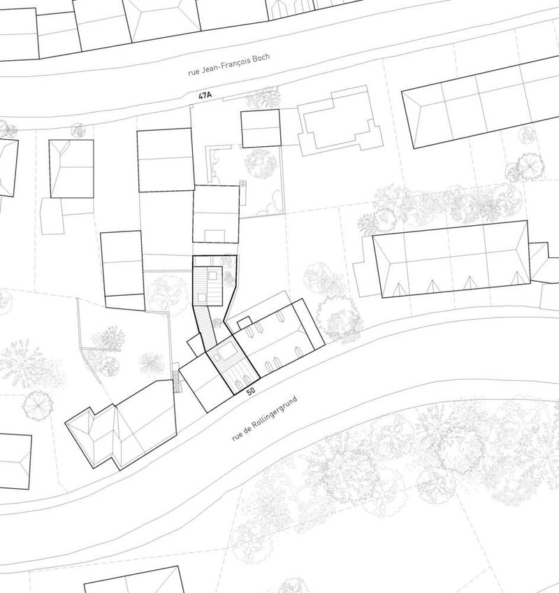
GuestHouse 50, designed by Kaell Architecte, is a remarkable example of thoughtful restoration and adaptive reuse in Luxembourg. This historic townhouse, originally constructed in 1880, has been transformed into a vibrant space that harmoniously blends private and communal areas. The design highlights the preservation of architectural heritage while introducing modern functionality.



The Journey of Restoration
Discovering Hidden Treasures
After a fire in 2012 left the house inhabitable, it was on the brink of demolition. A group of neighbors intervened to save the property, uncovering unique features like the original sandstone structure and decorative elements beneath layers of wallpaper and carpets. These discoveries inspired a sensitive restoration that celebrated the building's historic charm.




Structural and Design Highlights
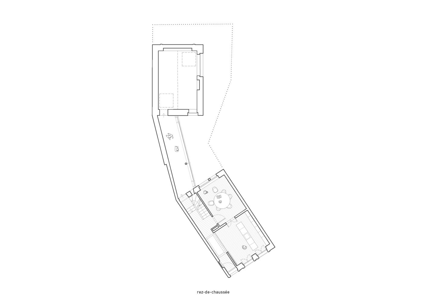
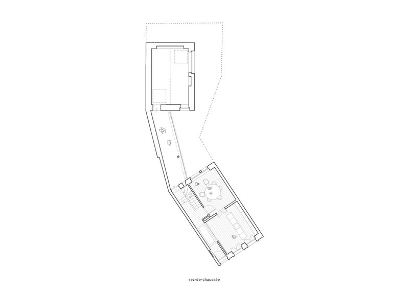
The building underwent a complete transformation, restoring its original sandstone walls and enhancing its functionality. Spanning four levels, the townhouse features minimalist interiors characterized by natural materials like lime plaster and dark brown wood. These design choices create a timeless aesthetic that complements the building’s history.






Multifunctional Spaces for Modern Living
A New Purpose for a Historic Home
GuestHouse 50 seamlessly integrates its historic character with modern uses. It serves as a family residence while also hosting a variety of activities. The spaces are designed for hosting exhibitions, yoga classes, and collaborative work sessions, showcasing its adaptability.



Thoughtful Additions
The property includes a passageway that connects the main house to a rear courtyard and atelier. This extension enhances the flow between indoor and outdoor spaces, offering an ideal setting for creative endeavors.




Sustainability and Heritage Preservation
Sustainable Materials
The renovation prioritized eco-friendly materials, such as Miscanthus clay for insulation in the studio. The use of natural lime for interior and exterior finishes ensures a healthy indoor environment and highlights the building's sustainable credentials.



Collaboration with Heritage Authorities
Luxembourg's heritage protection authorities (INPA) supported the restoration project, ensuring that the architectural integrity of this historic building was preserved. This collaboration underscores the importance of maintaining cultural heritage while adapting to contemporary needs.


All Photographs are work of Sebastian Peršurić