Hidden Garden House by Sam Crawford Architects
The article showcases Hidden Garden House, a sustainable home design by Sam Crawford Architects featuring passive solar and innovative materials.
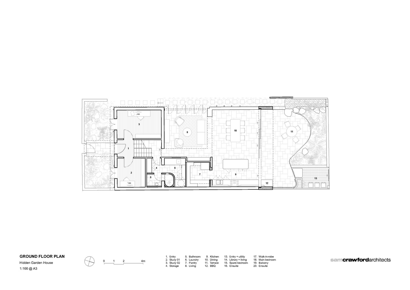
The Hidden Garden House, designed by Sam Crawford Architects (SCA), is a stunning example of contemporary residential architecture that seamlessly integrates nature into the urban environment. Located in Camperdown, Australia, this innovative home reimagines the traditional terrace house by incorporating a hidden rooftop garden and a series of light-filled, open spaces that bring the outdoors in. The design embraces passive solar principles, natural ventilation, and high-performance building materials to create a peaceful sanctuary where residents can experience the beauty of nature from the comfort of their own home. In this article, we’ll explore the key architectural elements, materials, and design choices that make the Hidden Garden House a remarkable project and how it optimizes space, light, and privacy.


Transformative Design Features of the Hidden Garden House
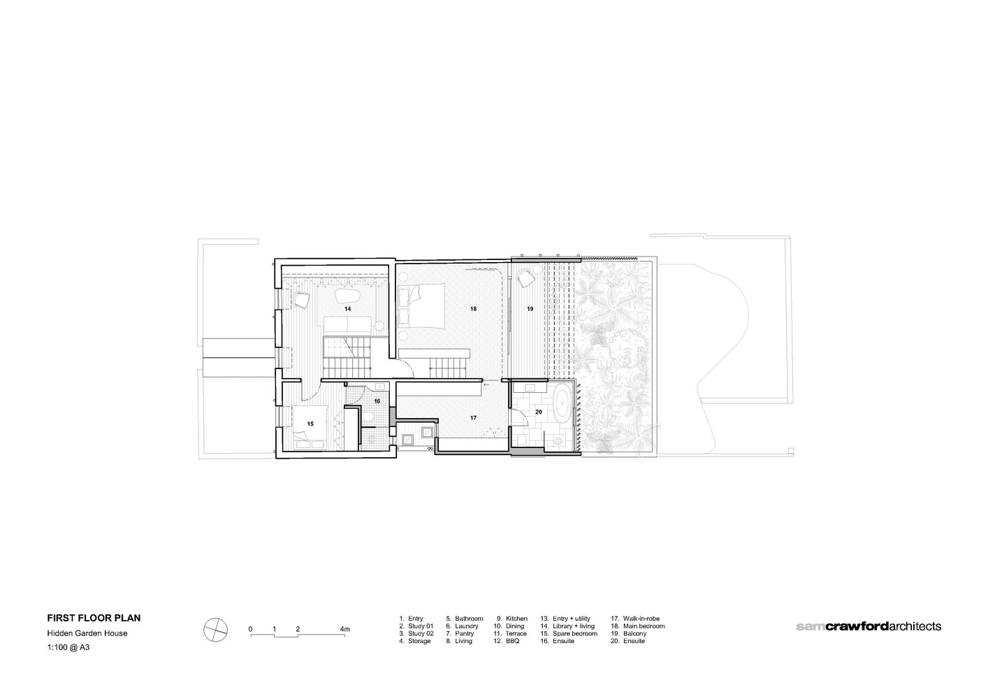
At the heart of the Hidden Garden House's design is a dramatic curved concrete ceiling that serves as the base for a secluded rooftop garden. This garden oasis is tucked away behind a high brick wall that once housed stables, creating a private retreat in the bustling urban context. The garden provides a lush, verdant backdrop for the main bedroom and ensuite, allowing the residents to bathe and sleep amidst plants while maintaining complete privacy.


Embracing Light and Space
Upon entering the Hidden Garden House, visitors are greeted by an inviting, open white steel-framed staircase that leads both up to the rooftop garden and down to the living areas below. This design choice not only replaces a solid timber staircase that blocked light but also floods the center of the home with natural light. An enlarged skylight above the staircase area illuminates the entire space, creating a sense of openness and airiness throughout the house.


Curved Concrete Ceiling and Green Roof Garden
The home's curved concrete ceiling extends upward from the living area, allowing sunlight to filter through during the winter months and providing natural shade during the hotter seasons. This innovative design choice helps balance the home’s energy consumption while maximizing views of the expansive sky and district landscape. The concrete ceiling forms the sloped roof garden, which features angled timber screens and carefully selected plantings that enhance privacy and frame sweeping vistas.


A Connection to Nature and Sustainability
The integration of native plants and seasonal flowers throughout the Hidden Garden House is designed in collaboration with Fytogreen. These plantings not only add to the house's biodiversity but also attract pollinators and birds, creating a rich ecological environment. Limestone floor pavers extend seamlessly from the living space into the back garden, enhancing outdoor entertainment areas and reinforcing the house's connection to the landscape.
The careful selection of restrained materials and an earthy color palette—pale eucalyptus-green tiles in a mix of matte and gloss, spotted gum joinery, and limestone floor pavers—emphasizes a calm, natural ambiance throughout the home. Curvilinear elements, including kitchen islands, bathroom vanities, door handles, and shower recesses, are consistent throughout the house, adding texture and interest to the design.


Passive Solar and High-Performance Building Materials
The Hidden Garden House's passive design strategy uses solar control and high-level cross-ventilation to maintain comfortable indoor temperatures year-round, without the need for air conditioning. The house features new double glazing and high-quality insulation throughout, which helps reduce heating and cooling requirements. A hydronic underfloor heating system is used sparingly, while solar panels and a battery system significantly reduce energy consumption from the grid.


Optimal Privacy and Seclusion
The design of the Hidden Garden House prioritizes privacy and seclusion, allowing the homeowners to feel like they are in a secluded oasis while remaining connected to the urban environment. Angled timber screens, strategically positioned walls, and lush plantings screen the main bedroom and ensuite from view, creating a peaceful sanctuary where residents can retreat and unwind.


Innovative Storage and Design Details
Throughout the Hidden Garden House, clever storage solutions are integrated into the design, including built-in closets, shelving, and storage benches. This innovative approach to space planning optimizes every square foot of the home, ensuring that the spaces are functional and uncluttered. Curved details, such as bathroom vanities, cupboards, door handles, and shower recesses, add a distinctive touch to the design.


Enhanced Acoustic Comfort
The Hidden Garden House also features enhanced acoustic design, with Acoustic Logic providing expert input to ensure that sound is effectively managed throughout the space. The result is a home where music, conversations, and other sounds are natural and pleasant, enhancing the overall experience of living in this unique space.

Client Testimonials
The homeowners of the Hidden Garden House have praised the design for its innovative use of space, natural light, and privacy. They particularly love the ability to track the changing sky and weather patterns from the large windows in the living area and the rooftop garden. The secluded garden terrace, combined with the soothing acoustics of the free-form concrete ceiling, creates a magical environment to enjoy both day and night.
The Hidden Garden House by Sam Crawford Architects demonstrates the power of thoughtful, sustainable design. By incorporating passive solar principles, high-performance building materials, innovative use of space, and seamless connections between indoor and outdoor environments, this project has successfully transformed an ordinary 1980s terrace into a vibrant, light-filled home that offers privacy, comfort, and a deep connection to nature. The result is a home that optimizes energy use, enhances quality of life, and promotes environmental stewardship—making it a benchmark for contemporary residential architecture.


All photographs are work of Tom Ferguson