Historic Urban Renewal Projects: Revitalizing L'viv with Ateliers Nadvorie
The article discusses Ateliers Nadvorie by Sadovsky & Architects, a project blending historical preservation with modern design and sustainability in L'viv, Ukraine.
Ateliers Nadvorie, spearheaded by Sadovsky & Architects, marks a significant milestone in historic urban renewal projects. Located in the ancient city of L'viv, Ukraine, this project seamlessly merges the past with the present, showcasing how derelict structures can be transformed into vibrant creative hubs.




The Evolution of Ateliers Nadvorie
A Fusion of History and Modernity
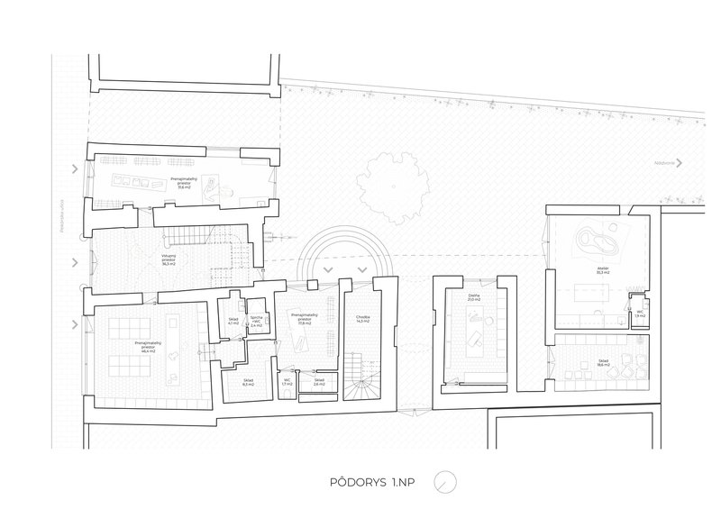
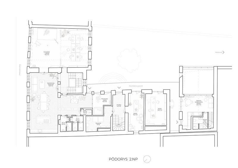
Ateliers Nadvorie completes the Nadvorie complex, offering a pedestrian entrance from Pekarska Street and connecting the university park to a new realm of contemporary culture. This multifunctional building embodies a creative center that hosts independent and shared studios, commercial areas, and workshops, all designed with a focus on sustainability and innovation.




Preserving Historical Integrity
The project involved the careful renovation of a historical burgher house, which has seen numerous transformations over centuries. By restoring the symmetrical façade and reinterpreting the building's original vaults, Sadovsky & Architects have paid homage to the structure's rich past while adapting it for modern use.





Implementing Sustainable Solutions
Experimental Sustainable Building Techniques
Ateliers Nadvorie explores sustainable construction methods by incorporating prefabricated straw-wooden blocks within the courtyard wing. This approach, coupled with traditional masonry and lightweight steel frames, demonstrates a commitment to low-carbon building practices and energy efficiency.





Innovative Energy Management
A standout feature of the renovation is the adoption of geothermal heat pumps, utilizing underground wells to provide year-round energy for heating and cooling. This system underscores the project's emphasis on sustainability, even within the constraints of working with historic buildings.


A Blueprint for Future Renewal Projects
Ateliers Nadvorie sets a precedent for historic urban renewal projects, blending architectural heritage with contemporary design and sustainability. Through innovative material use, energy management, and a respectful approach to renovation, Sadovsky & Architects have created a model for revitalizing urban spaces that can inspire future projects worldwide.







All photographs are work of Matej Hakár
Popular Articles
Popular articles from the community
Treehouse Apartment: A Warm Timber Interior Blending Craft, Play, and Contemporary Living
Warm timber apartment with integrated treehouse, combining natural materials, craftsmanship, and playful design to create a flexible, family-oriented living environment.
An Miên Lumière Cafe by xưởng xép, Ho Chi Minh City, Vietnam
An industrial-inspired café where layered steel and warm light create a dynamic, immersive environment shaped by reflection, depth, and perception.
The Ken Roberts Memorial Delineation Competition (Krob)
As the most senior architectural drawing competition currently in operation anywhere in the world, it draws hundreds of entries each year, awarding the very best submissions in a series of medium-based categories.
Inverted Architecture Installation by Studio Link-Arc: Exploring the Intersection of Architecture and Living Organisms
Inverted Architecture Installation by Studio Link-Arc blends mycelium, sustainability, inverted design, ecological cycles, and urban adaptive architecture in Shenzhen.
Similar Reads
You might also enjoy these articles
Top 15 Architecture Competitions to Enter in 2026
From student-friendly idea competitions to prestigious international awards, here are the best architecture competitions open for entries in 2026. Updated regularly.
DIY & Engineering in Computational Design : Enter the BeeGraphy Design Awards
Showcase Your Creativity with Computational Design and Open Source Projects

Innovative Design Solutions: Award-Winning Projects from Recent Architecture Competitions
Exploring award-winning architectural projects shaping the future of design, sustainability, and community.
Explore Architecture Competitions
Discover active competitions in this discipline
The International Standard for Design Portfolios
The Global Benchmark for Architecture Dissertation Awards
The Global Benchmark for Graduation Excellence
Challenge to reimagine the Iron Throne
Comments (0)
Please login or sign up to add comments
No comments yet. Be the first to comment!