Hoji Gangneung Houses by aoa architects: A Harmony of Rural Simplicity and Architectural Elegance
Exploring Hoji Gangneung Houses by aoa architects, a harmonious blend of countryside-inspired design and minimalist architectural elegance in South Korea.
Hoji Gangneung Houses, designed by aoa architects, redefine rural vacation accommodation in South Korea. Located in Gangneung-si, this architectural masterpiece combines countryside tranquility with innovative design principles. With three distinct accommodation buildings, a community warehouse, and the owner’s residence, the project transforms a modest countryside into an oasis of calm and sophistication.


A New Vision for Rural Accommodation
In recent years, the concept of a "pension" has evolved from basic countryside lodgings to luxurious retreats. Hoji Gangneung Houses embrace this shift while resisting the overindulgent trends of flashy pool villas and excessive interiors. Designed with a restrained aesthetic, these homes honor the essence of rural life, avoiding artificial embellishments and blending seamlessly into their natural surroundings.


Architectural Design Inspired by the Countryside
Site Context and Design Philosophy
Spanning a gently sloping 3,300 m² plot, the Hoji Gangneung Houses take inspiration from traditional countryside structures such as warehouses and cabins. Lead architect Jaewon Suh envisioned buildings that resonate with rural simplicity while offering modern comforts. The designs—symmetrical yet understated—aim to evoke personal memories for visitors.
Material and Form
The project employs concrete for its raw, earthy texture, ensuring the houses remain unobtrusive amidst the landscape. These seemingly floating structures mimic the weight and lightness of toys, juxtaposing the heaviness of concrete with the playful lightness of rural dwellings.



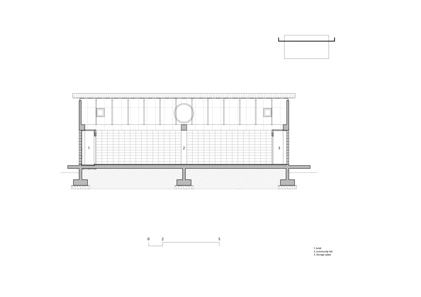
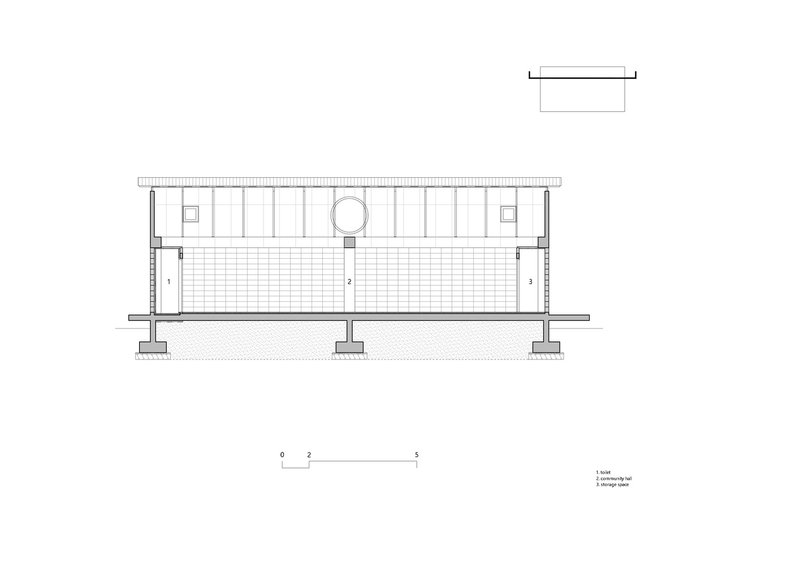
The Three Accommodation Buildings
The Octagonal House
This unique structure features an octagonal courtyard, providing a serene space for family stays. Divided into two sections by a central passageway and bathroom, the house fosters a sense of openness. The courtyard’s trees connect indoor and outdoor spaces seamlessly, creating a tranquil, monastery-like ambiance.
The Long House
Characterized by a skylight stretching across its length, the Long House bathes its interiors in natural light. Concrete beams, though seemingly decorative, add a whimsical charm. The layout ensures fluidity, with low ceilings that reflect light and provide a mirror-like effect.
The Round House
With its eye-catching suspended kitchen oven hood, the Round House combines function with artistic design. Its rounded form contrasts with the angularity of the other buildings, offering a dynamic and immersive living experience.



Community and Connection
At the heart of Hoji Gangneung is a circular walkway that connects the accommodations, community warehouse, and the owner’s residence. Designed with a minimum width of 30 meters, the pathway immerses visitors in the natural environment, especially on rainy days when pools of water and overhanging plants create a magical atmosphere.



Interior Details and User Experience
Material Palette and Furniture
The interiors feature extensive use of wood, crafting a warm, inviting atmosphere reminiscent of musical instrument boxes. Irregular furniture adds a playful touch, while simple, low seating enhances the perception of vertical space.
Lighting and Atmosphere
Natural light plays a central role in the experience. Skylights, high windows, and reflective surfaces transform the interiors throughout the day, making light an ever-present element of design.



A Sensory Journey Through Architecture
Hoji Gangneung Houses are not just places to stay—they are spaces to experience. The architectural elements, from shadows cast by hanging plants to the play of light on concrete, evoke emotions and memories. Each house offers a unique sensory journey, whether it’s stargazing from the Long House or enjoying the courtyard's sunlit embrace in the Octagonal House.
The Hoji Gangneung Houses by aoa architects celebrate the simplicity and beauty of rural architecture. By prioritizing harmony with the landscape and offering understated luxury, the project redefines what it means to escape the city. Whether for quiet reflection or a family retreat, these houses provide a serene refuge that lingers in the memory of all who visit.



All the photographs are work of Hyosook Chin
Popular Articles
Popular articles from the community
20 Most Popular Office Building Projects of 2025
From biophilic workspaces in India to net-positive energy offices in New Delhi, 20 office building projects that defined architecture in 2025.
BICA Arquitectos Buries a Coastal Home in a Man-Made Dune on Portugal's Tróia Peninsula
A 300-square-meter house of timber, sand mortar, and travertine dissolves into the dune landscape it helped regenerate on the Alentejo coast.
boq architekti Fits a Gabled Family House onto a Tiny Moravian Hillside Plot with No Room for a Garden
A 115 square meter home in South Moravia trades a garden for a rooftop terrace and a fully glazed facade facing the village below.
1-1 Architects Builds a Nagoya House and Office from Decades of Stockpiled Timber
A 69-square-meter tower in dense residential Nagoya transforms surplus lumber into a home and workplace for a construction company.
Similar Reads
You might also enjoy these articles
Olio Towers: A Mid-Rise for Performers That Fuses Housing, Rehearsal, and Stage
Located blocks from Houston's Theater District, this modular tower stacks living units around a central performance atrium.
Oasis: Modular Green Housing Carved into Dhaka's Urban Fabric
A shortlisted Plugin Housing entry reclaims unauthorized settlements in Dhaka with stepped concrete volumes, green roofs, and ventilation-driven design.
Black Hole: A Floating Megastructure for the Post-Physical Era
Emiliano Mazzarotto envisions a spherical, self-scaling arena where e-sports, digital hotels, and holographic stadiums replace traditional public space.
Compact & Sustainable Living in Piraeus: A Four-Level Family Home Built Around Light and Air
A narrow townhouse in one of Greece's densest port cities uses a central atrium and passive strategies to house three generations under one roof.
Explore Housing Competitions
Discover active competitions in this discipline
The International Standard for Design Portfolios
The Global Benchmark for Architecture Dissertation Awards
The Global Benchmark for Graduation Excellence
Challenge to reimagine the Iron Throne
Comments (0)
Please login or sign up to add comments
No comments yet. Be the first to comment!