Horizon House: A Paradigm of Modern Suburban Home Design
Horizon House by Taylor Knights redefines suburban living through innovative design, enhancing landscape engagement and offering dynamic views.
Horizon House, designed by Taylor Knights, stands as a striking example of modern suburban home design. Located on a steep site in Pascoe Vale South, Australia, this innovative residence reimagines the typical suburban home layout to foster an intimate connection with its landscape while offering expansive, dynamic views.


Design Concept
Site and Context
Horizon House is strategically positioned on a steep site, creating a floor plan that contrasts starkly with the sprawling suburban context. This placement allows the homeowners to engage intimately with the surrounding landscape while enjoying dynamic panoramas.




Architectural Framework
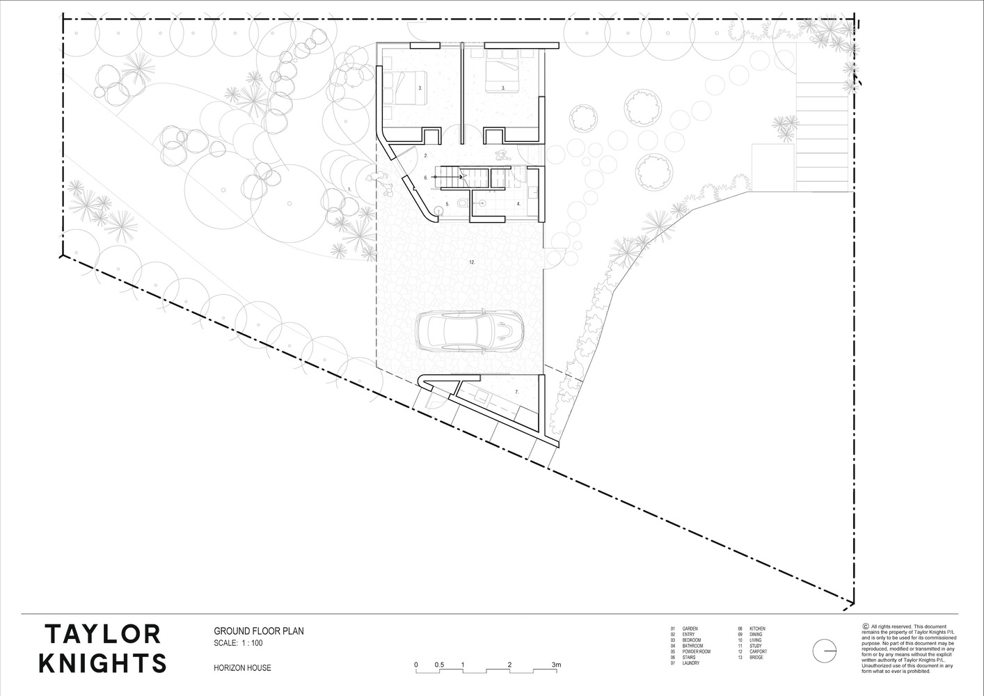
Ground Floor
The home is organized into two programs that can be zoned off to create varying qualities of light, shadow, and intimacy. The ground floor is solid and private, containing two bedrooms, a bathroom, and a laundry. This lower monolithic form supports the floating first-floor living spaces, with the negative space providing a double carport below.




First Floor
The light-filled, transparent first floor acts as a single-bedroom apartment with open and fluid spaces for eating, sleeping, and playing. Large sliding doors offer versatility and adaptability, with two main views: a northern intimate and seasonal aspect and a southern panoramic and expansive view.



Connection to Landscape
Indoor-Outdoor Integration
A bridge connects the first-floor living spaces to an upper garden plateau, encouraging the owners to engage with the landscape. The southern detailing is sharp and minimal, capturing and framing the distant city skyline, while a full-length benchtop screens the street below, ensuring privacy.



Horizon House by Taylor Knights exemplifies modern suburban home design, harmoniously blending innovative architecture with intimate landscape engagement. This residence not only redefines suburban living but also sets a benchmark for future designs in similar contexts.



All the photographs are work of Tom Ross
Popular Articles
Popular articles from the community
TGK Nirasaki Plant: A Smart Factory Blending Technology, Landscape, and Wellness
Smart factory in Japan blending IoT manufacturing, scenic trail design, natural ventilation, and landscape integration to enhance user experience and sustainability.
Split House: A Compact Urban Home Blending Privacy, Light, and Flexible Living in Japan
Compact Japanese home featuring DOMA space, flexible café potential, passive lighting, privacy zoning, and sustainable urban living design.
Alton Cliff House: A Harmonious Retreat by f2a Architecture in Lake Country, Canada
Alton Cliff House blends corten steel, prefabrication, and sustainable design, creating a luxurious, energy-efficient retreat perched on Canadian cliffs.
Similar Reads
You might also enjoy these articles
Filtering Space: A Gradual Spatial Experience
From urban intensity to spatial calm.
The Ken Roberts Memorial Delineation Competition (Krob)
As the most senior architectural drawing competition currently in operation anywhere in the world, it draws hundreds of entries each year, awarding the very best submissions in a series of medium-based categories.
Waterfront Redevelopment and Urban Revitalization in Mumbai: Forging a New Dawn for Darukhana
A transformative waterfront redevelopment project reimagining Darukhana’s shipbreaking heritage into an inclusive urban future.
OUT-OF-MAP: A Call for Postcards on Feminist Narratives of Public Space
Rhizoma Design and Research Lab invites artists, designers, architects, researchers, and students to reflect on how feminist perspectives can reshape public space. Selected works will be exhibited in Barcelona, October 2026. Submissions open until 15 April 2026.
Explore Architecture Competitions
Discover active competitions in this discipline
The International Standard for Design Portfolios
The Global Benchmark for Architecture Dissertation Awards
The Global Benchmark for Graduation Excellence
Challenge to reimagine the Iron Throne
Comments (0)
Please login or sign up to add comments
No comments yet. Be the first to comment!