House Design in Vietnam: Phu Quoc House by NH Village Architects
A sustainable home in Vietnam’s Phu Quoc Island, blending eco-conscious design with resilience to extreme weather and environmental challenges.
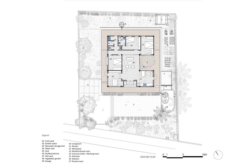
Phu Quoc House, designed by NH Village Architects, is a beacon of sustainable architecture on Phu Quoc Island, Vietnam. Addressing challenges like freshwater scarcity, high salinity, and extreme weather, this 150 m² home provides a harmonious solution to modern living and environmental concerns. Built for a young couple, the house balances functionality, affordability, and eco-conscious design.

The Challenges of Building on Phu Quoc Island
Water Scarcity and Environmental Concerns
The rapid development of tourism infrastructure has depleted groundwater, creating a freshwater crisis. Phu Quoc House integrates rainwater harvesting systems to address this issue.


Extreme Climate Conditions
The island's intense rainfall and strong winds can damage structures. The house's design incorporates durable materials and a thoughtful layout to withstand these conditions.

Innovative Design Solutions
The Large Roof: A Multifunctional Feature
A defining feature of Phu Quoc House is its expansive roof, which serves multiple purposes:
- Rainwater Harvesting: The roof collects rainwater, which is filtered and stored in large tanks around the garden for household and irrigation use.
- Weather Protection: It shields the structure from harsh sunlight, strong winds, and heavy rain, enhancing the house's durability.


The Surrounding Corridor
A continuous corridor wraps around the house, creating a buffer zone that:
- Reduces indoor temperatures by minimizing direct sunlight on walls.
- Provides protection from strong winds and rain.
- Acts as a versatile space for relaxation and social activities.


Connecting Spaces and People
Staggered Levels for Natural Flow
The corridor follows the sloping terrain, creating staggered levels that connect seamlessly to the living room, kitchen, bedrooms, and courtyard. This dynamic design ensures a natural flow through the house while enhancing connectivity with the surrounding landscape.


Enhancing Daily Living
Whether on rainy days or sunny mornings, the corridor becomes a hub for shared experiences, blending indoor comfort with outdoor charm.

Sustainability at Its Core
Eco-Friendly Features
The house uses widely available, affordable techniques to ensure environmental sustainability. Its rainwater harvesting system, passive cooling design, and durable materials reflect a commitment to green living.


A Model for Residential Architecture
Phu Quoc House exemplifies how thoughtful architecture can address pressing environmental challenges while enriching the daily lives of its residents.


Phu Quoc House by NH Village Architects is more than a home; it’s a sustainable living model that aligns architecture with nature. Through innovative design, it meets the challenges of Phu Quoc Island’s environment, offering a template for eco-friendly residential solutions in Vietnam and beyond.

All photographs are work of Cao Hoa
Popular Articles
Popular articles from the community
20 Most Popular Furniture Design Projects of 2025
Modular street systems, parametric benches, and insect hotels: the furniture design projects that captivated architects on uni.xyz in 2025.
H&P Architects Stack a Vertical River of Brick and Greenery in Hanoi
A perforated terracotta tower in Dong Anh channels water, light, and air through eight staggered levels of domestic life.
Studio Gram Unfurls a Concrete Curve Through an Adelaide Queen Anne Villa
In Rose Park, a billowing concrete threshold stitches a century-old house to a sun-chasing pavilion organized around an existing pool.
BICA Arquitectos Buries a Coastal Home in a Man-Made Dune on Portugal's Tróia Peninsula
A 300-square-meter house of timber, sand mortar, and travertine dissolves into the dune landscape it helped regenerate on the Alentejo coast.
Similar Reads
You might also enjoy these articles
Olio Towers: A Mid-Rise for Performers That Fuses Housing, Rehearsal, and Stage
Located blocks from Houston's Theater District, this modular tower stacks living units around a central performance atrium.
Oasis: Modular Green Housing Carved into Dhaka's Urban Fabric
A shortlisted Plugin Housing entry reclaims unauthorized settlements in Dhaka with stepped concrete volumes, green roofs, and ventilation-driven design.
Black Hole: A Floating Megastructure for the Post-Physical Era
Emiliano Mazzarotto envisions a spherical, self-scaling arena where e-sports, digital hotels, and holographic stadiums replace traditional public space.
Compact & Sustainable Living in Piraeus: A Four-Level Family Home Built Around Light and Air
A narrow townhouse in one of Greece's densest port cities uses a central atrium and passive strategies to house three generations under one roof.
Explore Architecture Competitions
Discover active competitions in this discipline
The International Standard for Design Portfolios
The Global Benchmark for Architecture Dissertation Awards
The Global Benchmark for Graduation Excellence
Challenge to design mud housing for contemporary communities
Comments (0)
Please login or sign up to add comments
No comments yet. Be the first to comment!