House DOORN by Luchtschip Architectuur – Innovative Extension Design in Ghent, Belgium
House DOORN in Ghent, Belgium, features a modern L-shaped timber extension, maximizing light, garden connection, functionality, and contemporary urban living design.
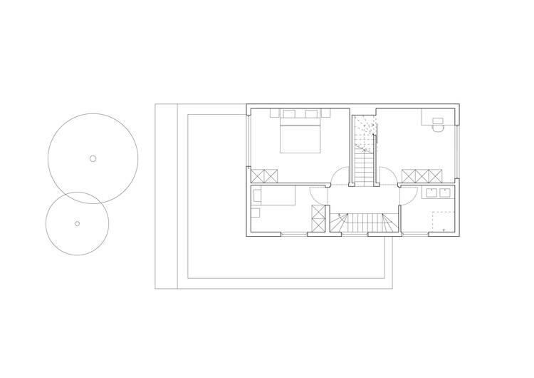
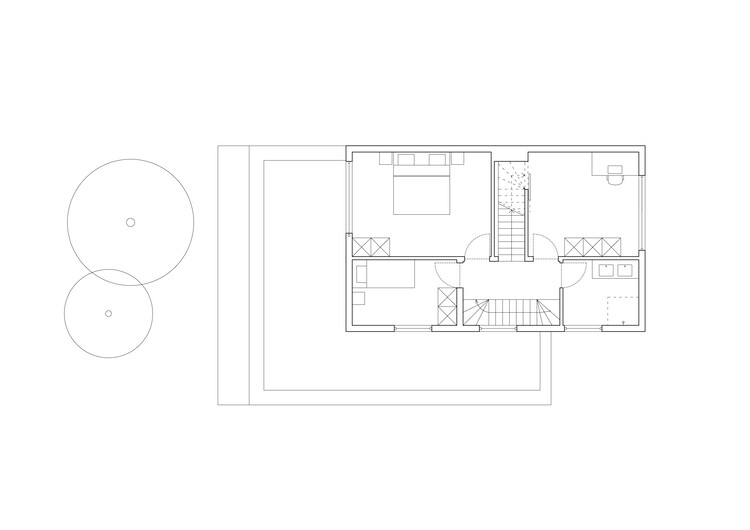
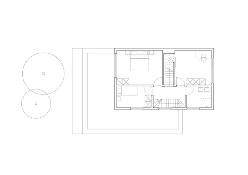
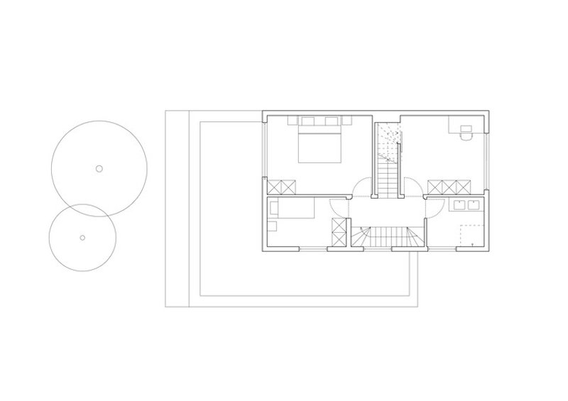
House DOORN, designed by the Ghent-based architecture studio Luchtschip Architectuur, exemplifies the art of thoughtful urban home extensions. Completed in 2020, this 120 m² semi-detached house renovation responds to a modern couple’s desire for more usable space, enhanced garden connection, and abundant natural light. Situated in Ghent, Belgium, the project transforms a compact existing home into a functional, visually appealing residence while respecting privacy and optimizing outdoor areas.



The original house presented spatial challenges: the ground floor had to accommodate non-residential functional areas like a bicycle shed, laundry and ironing room, storage, and cloakroom, alongside office, kitchen, dining, and living spaces. Rather than opting for a traditional Flemish rear extension, Luchtschip Architectuur introduced a clever L-shaped volume on the garden side, integrating kitchen, dining, and small office areas. This strategic design maximizes daylight, ensures a visual connection with the garden, and positions functional spaces towards the street for privacy.



The new extension embraces the existing brick structure, carefully placed to create a usable width for the kitchen and dining areas while preserving as much city garden space as possible. Original window openings in the existing walls are maximized, ensuring seamless visual and functional flow between old and new volumes. Inside, a continuous concrete floor unifies the entire ground level, while the timber-frame facade of the new volume, finished in birch plywood, offers a warm contrast to the white plastered original home.



The exterior of the extension uses a light timber frame, extensive glazing in white window frames, and wooden cladding that naturally grays over time. The aluminum roof edge subtly defines the new volume, creating a modern, abstract “wrapper” around the existing red brick home. Functional spaces like the bicycle shed are clearly legible through a galvanized steel wire facade, which will eventually be softened by creeping greenery.


House DOORN perfectly balances modern living requirements with sustainable design, natural light, and spatial efficiency, making it a standout example of urban home extensions in Belgium.



All the photographs are works of Johnny Umans
Popular Articles
Popular articles from the community
The Ken Roberts Memorial Delineation Competition (Krob)
As the most senior architectural drawing competition currently in operation anywhere in the world, it draws hundreds of entries each year, awarding the very best submissions in a series of medium-based categories.
Inverted Architecture Installation by Studio Link-Arc: Exploring the Intersection of Architecture and Living Organisms
Inverted Architecture Installation by Studio Link-Arc blends mycelium, sustainability, inverted design, ecological cycles, and urban adaptive architecture in Shenzhen.
Free Architecture Competitions You Can Enter Right Now
No entry fees, real prizes. Here are the best free architecture competitions open for submissions in 2026.
Solar Steam: A Climate-Responsive Architecture That Redefines the Monument
A climate-responsive memorial architecture that transforms heat, decay, and time into a living system reflecting humanity’s ecological impact.
Similar Reads
You might also enjoy these articles
The Ken Roberts Memorial Delineation Competition (Krob)
As the most senior architectural drawing competition currently in operation anywhere in the world, it draws hundreds of entries each year, awarding the very best submissions in a series of medium-based categories.
Waterfront Redevelopment and Urban Revitalization in Mumbai: Forging a New Dawn for Darukhana
A transformative waterfront redevelopment project reimagining Darukhana’s shipbreaking heritage into an inclusive urban future.
OUT-OF-MAP: A Call for Postcards on Feminist Narratives of Public Space
Rhizoma Design and Research Lab invites artists, designers, architects, researchers, and students to reflect on how feminist perspectives can reshape public space. Selected works will be exhibited in Barcelona, October 2026. Submissions open until 15 April 2026.
Documentation Work on Buddhist Wooden Temple
Architectural syncretism and cultural hybridity: A comparative study of the Buddhist temples in Chattogram Hill tracks
Explore Architecture Competitions
Discover active competitions in this discipline
The International Standard for Design Portfolios
The Global Benchmark for Architecture Dissertation Awards
The Global Benchmark for Graduation Excellence
Challenge to reimagine the Iron Throne
Comments (0)
Please login or sign up to add comments
No comments yet. Be the first to comment!