House Florida by Di Marco + Robles Arquitectos: A Thoughtful Contemporary House Renovation in Argentina
A traditional suburban home reimagined through contemporary house renovation, balancing modern function with historical character in Buenos Aires.
Reimagining a Traditional House in Florida, Vicente López
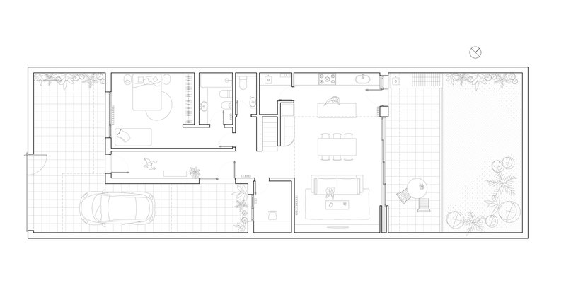
In the quiet, low-density neighborhood of Florida in Vicente López, Argentina, Di Marco + Robles Arquitectos have completed a contemporary house renovation that skillfully blends modern spatial logic with the existing character of a traditional chalet-style home. Set amidst a streetscape of brick walls and tiled roofs, this 150-square-meter single-family residence emerges as a compelling dialogue between heritage and function, where old elements are reinterpreted through the lens of contemporary design.




Site Context and Architectural Background
The existing home, part of a typical suburban fabric defined by red-tile roofs and masonry walls, suffered from a fragmented floor plan, lack of ventilation, blocked circulation, and minimal engagement with the outdoors. Originally designed with disconnected rooms, it offered little to no spatial hierarchy. Rather than demolishing and rebuilding, the architects opted for architectural reinvention, focusing on subtle yet transformative moves that prioritized functionality, integration, and natural light.




Spatial Transformation: Reorganizing Interior Logic
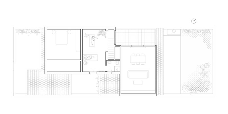
The renovation involved a complete redistribution of public and private zones, turning isolated rooms into a cohesive, flowing layout. Central to the intervention was the creation of a new circulation spine—a corridor that not only organizes access to various rooms but also becomes the architectural backbone of the house. This move gave a renewed spatial unity that was missing in the original structure, transforming the experience of daily life within the home.




Structural Strategy: Opening Without Losing Identity
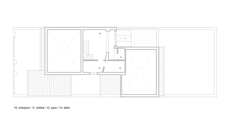
While the house retains its iconic colonial tile roof, significant structural interventions were required to modernize the interior. The existing staircase was repositioned, obsolete partitions were removed, and new supports were introduced to allow for larger openings and visual connections. These modifications were handled with precision, maintaining the structural integrity of the roof while opening the house toward its garden and increasing the overall sense of volume and openness.




Indoor-Outdoor Continuity: A Window to the Garden
At the rear of the home, a large sliding window was installed to connect the social areas directly with the garden. This strategic gesture not only floods the interior with natural light but also dissolves the boundary between indoor and outdoor spaces. It becomes the final punctuation mark in a project that revolves around the notion of flow—visual, spatial, and environmental.




Urban Integration: Balancing Privacy and Presence
On the street-facing side, the house employs a minimalist white wall with a blind sliding gate, harmonizing with neighboring houses while creating a quiet urban presence. The roof, peeking above the wall, acknowledges the house’s historical identity, while the clean geometry of the new facade suggests a contemporary intervention rooted in restraint. This duality of old and new allows the project to maintain neighborhood continuity while updating the building’s performance and aesthetic value.




Materiality and Palette: Quiet Modernism
The interiors combine polished concrete, wood, and white finishes, echoing the project's clarity and emphasis on material honesty. Each element is curated not for visual drama but for tactile and spatial experience, ensuring that the house supports its occupants’ everyday rituals with comfort, functionality, and subtle elegance.




A Model of Contextual Contemporary House Renovation
House Florida stands as a case study in contemporary house renovation, showing how a traditional suburban home can be transformed without losing its contextual identity. Through strategic interventions, refined materials, and a clear architectural narrative, Di Marco + Robles Arquitectos deliver a space that is both forward-looking and respectful. It is a home reborn—not by erasing its past, but by understanding it and reshaping it for the present.






All Phtographs are works of Bruto Studio
Popular Articles
Popular articles from the community
Atelier Macri Concept Store Interior Design by CASE-REAL
Atelier Macri store features a "ko" counter, walnut wood details, cork displays, blending retail, gallery, and seamless customer experiences.
Alton Cliff House: A Harmonious Retreat by f2a Architecture in Lake Country, Canada
Alton Cliff House blends corten steel, prefabrication, and sustainable design, creating a luxurious, energy-efficient retreat perched on Canadian cliffs.
Gads Hill Early Learning Center by JGMA: Adaptive Reuse Shaping Community-Focused Educational Architecture
Adaptive reuse transforms fragmented structure into vibrant early learning center with playful façade, natural light, and community-focused sustainable design.
Inverted Architecture Installation by Studio Link-Arc: Exploring the Intersection of Architecture and Living Organisms
Inverted Architecture Installation by Studio Link-Arc blends mycelium, sustainability, inverted design, ecological cycles, and urban adaptive architecture in Shenzhen.
Similar Reads
You might also enjoy these articles
Bamboo Housing Challenge 2026: Design Affordable, Sustainable Homes Using Bamboo
An international design competition by Bamboo U and IBUKU inviting architects and designers to reimagine affordable housing using bamboo — with the winning design built full-scale in Bali.
Computational Design & Education: Beegraphy Design Awards Introduces 7th Category (Featuring Jiyun's Innovative Approach)
Dive into Beegraphy’s 7th Design Awards category, where computational design meets education to create immersive, interactive learning tools, inspired by Jiyun’s work.
From Parametric Lighting to Urban Furniture: Join the 2nd Workshop in Beegraphy’s Computational Design Series
Dive into Cutting-Edge Design Techniques and Practical Applications with Industry Experts
Explore Architecture Competitions
Discover active competitions in this discipline
The International Standard for Design Portfolios
The Global Benchmark for Architecture Dissertation Awards
The Global Benchmark for Graduation Excellence
Challenge to reimagine the Iron Throne
Comments (0)
Please login or sign up to add comments
No comments yet. Be the first to comment!