House La Primavera: A Concrete Refuge in Rural Chile
Exposed concrete single-level residence in rural Chile featuring walled courtyards, floating walls, and seamless indoor-outdoor living across 650 square meters.
Introduction: Architecture Rooted in Landscape
In the quiet rural expanse of Calera de Tango, situated within Chile's Metropolitan Region, House La Primavera emerges as a masterful exploration of contemporary residential architecture. Designed by architect Nicolas Vicente and completed in 2024, this single-level family home occupies a commanding 20,000 square meter flat site, yet its presence feels remarkably subtle and integrated within the surrounding landscape. With a built area of 650 square meters, the residence represents a sophisticated dialogue between robust materiality and delicate spatial sequences that invite contemplation and conscious inhabitation.

Material Philosophy: The Poetry of Exposed Concrete
The defining characteristic of House La Primavera lies in its unwavering commitment to material honesty. Constructed entirely in exposed reinforced concrete, the home makes a bold architectural statement while maintaining an aesthetic of enduring simplicity. The exterior walls, finished with board-formed concrete texture, create a richly tactile surface that captures the play of light and shadow throughout the day. This textured facade adds dimensional depth to the geometric composition while celebrating the raw beauty of the construction process itself.

These concrete walls appear to defy gravity, seemingly floating above the surrounding vegetation and the reflective pool that graces the entrance sequence. This visual lightness, achieved through careful structural design, creates a compelling paradox—the heaviest of materials rendered almost weightless. The concrete elements serve multiple purposes beyond their aesthetic contribution: they act as protective barriers against prevailing winds and function as strategic visual screens that modulate privacy between the home's interior spaces without sacrificing the sense of openness that defines the project.
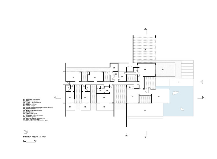
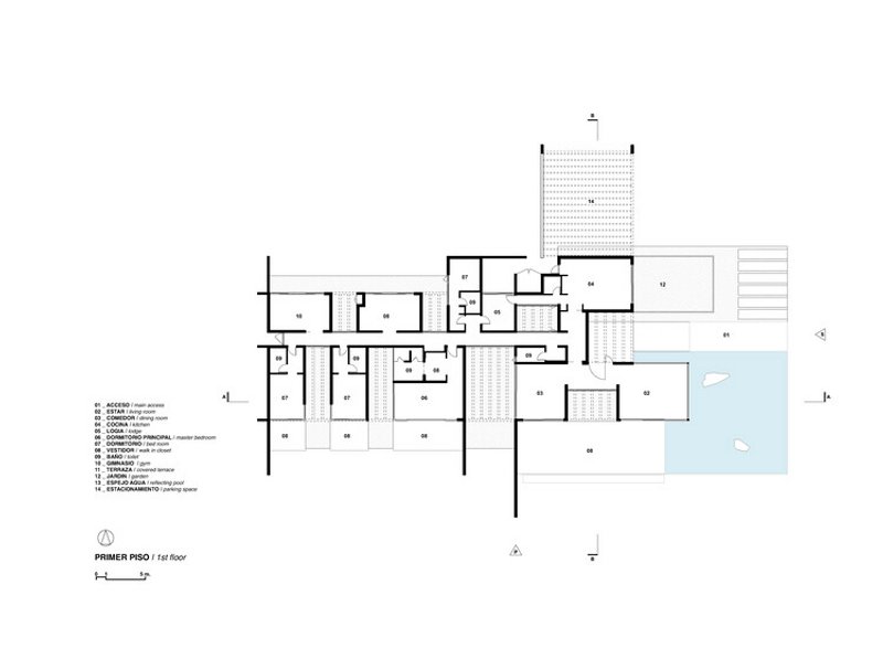
Spatial Organization: Linear Clarity and Walled Gardens
The architectural strategy organizing House La Primavera follows a clear longitudinal axis that structures the entire program. This linear arrangement generates a carefully choreographed sequence of walled patios and courtyards that punctuate the journey through the residence. These interstitial outdoor spaces are far from decorative additions—they serve as the lungs of the house, introducing abundant natural light deep into the floor plan and enabling effective cross ventilation that maintains comfort throughout Chile's varied seasons.

Beyond their practical functions, these walled gardens establish constant visual connections to the broader landscape, enriching the spatial experience as residents and visitors move through the home. Each courtyard frames a different aspect of the site, creating multiple perspectives and fostering an awareness of the passage of time through changing light conditions and seasonal transformations in the vegetation.
Interior Experience: Restraint and Connection
The interior architecture of La Primavera House embraces a philosophy of material restraint. A carefully limited palette of finishes, combined with continuous flooring that flows seamlessly throughout the residence, creates visual calm and spatial coherence. This minimalist approach doesn't result in coldness; rather, it amplifies the connection with the natural surroundings and allows the architecture itself to recede, placing emphasis on the experience of light, space, and landscape.

Large sliding glass panels serve as dissolving thresholds between interior and exterior realms. These generous openings, combined with the interior courtyards and multiple terraces, generate a sense of spatial fluidity that fundamentally blurs the conventional boundaries between inside and outside. In the temperate climate of central Chile, this porosity transforms the house into an extended inhabitable landscape where domestic life unfolds in constant dialogue with nature.
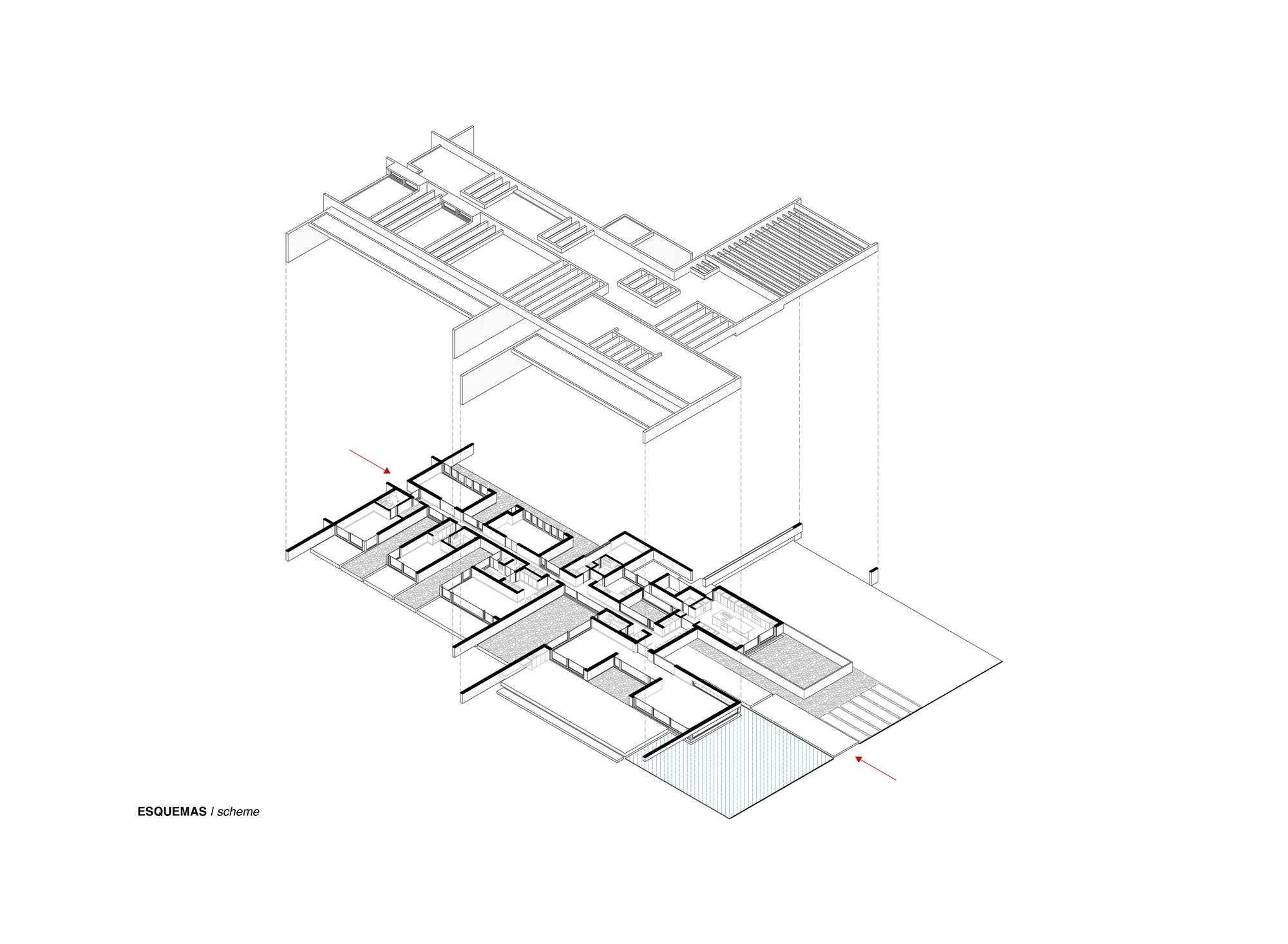
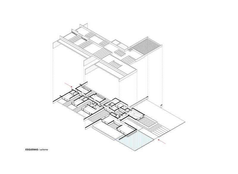
Landscape Integration: Fragmentation and Permeability
One of the most sophisticated aspects of House La Primavera is the intentional fragmentation of its built volume. Rather than presenting a monolithic mass, the architecture breaks down into a series of interconnected pavilions separated by planted zones. This strategy achieves multiple objectives: it reduces the perceived scale of the building, creates diverse spatial experiences, and allows vegetation to penetrate between built elements, weaving nature into the very fabric of the architecture.

This fragmentation makes the house remarkably permeable—visually, spatially, and environmentally. The building doesn't dominate its generous 20,000 square meter site; instead, it occupies the land with subtlety and depth, settling into the landscape rather than imposing upon it. The integration of vegetation between architectural elements ensures that the distinction between building and garden becomes increasingly ambiguous, exactly as the architect intended.
Design Philosophy: Fluidity as Core Principle
House La Primavera embodies a design philosophy where fluidity serves as the fundamental organizing principle. This concept manifests in multiple dimensions: the fluid transition between interior and exterior spaces, the continuous movement along the longitudinal axis, the flowing relationship between public and private zones, and the seamless connection between architectural form and natural landscape.


The architect approaches the house not as a static object but as a framework for living—a carefully crafted infrastructure that supports and enhances daily life while remaining adaptable to changing needs. This adaptability extends beyond functional flexibility to encompass a sensitivity to context, responding to solar orientation, prevailing winds, views, and the character of the rural site.
Living with Landscape: An Invitation to Contemplation
More than simply providing shelter, House La Primavera offers an invitation to a particular way of living—one characterized by contemplation, awareness, and conscious engagement with the environment. The architectural gestures consistently direct attention outward to the landscape while creating moments of refuge and intimacy. The reflecting pool at the entrance establishes a contemplative tone from the moment of arrival, mirroring the sky and surrounding trees while signaling a transition from the external world to the domestic realm.


The boundaries between function and emotion, between pragmatic necessity and poetic experience, dissolve within this residence. Each architectural element serves practical purposes while simultaneously contributing to an atmospheric quality that elevates everyday activities into meaningful rituals. Moving through the house becomes a heightened sensory experience, with constantly shifting perspectives, varying qualities of light, and the persistent presence of the garden animating the spaces.
Sustainability Through Longevity
While not explicitly marketed as a sustainable project, House La Primavera embodies environmental responsibility through its approach to durability and timelessness. The use of exposed concrete eliminates the need for applied finishes that require periodic replacement and maintenance. The material will age gracefully, developing a patina that adds character rather than requiring renovation. The passive environmental strategies—cross ventilation, strategic shading, and thermal mass—reduce mechanical cooling and heating demands.


The architectural language avoids stylistic trends that quickly become dated, instead pursuing a timeless quality rooted in fundamental principles of light, space, and material. This approach to longevity represents a profound form of sustainability: buildings that remain relevant and cherished across generations avoid the waste inherent in demolition and reconstruction.
Technical Excellence and Craft
Realizing this vision required exceptional technical expertise and craftsmanship. The board-formed concrete work demonstrates precision in formwork construction and concrete placement. The structural engineering enabling the floating wall elements showcases sophisticated calculation and detailing. The integration of large sliding glass systems within the concrete structure required careful coordination between trades and meticulous attention to tolerances and weatherproofing.


The collaboration with manufacturers—including Bontempo, European Windows, MK, and Porcelanosa Grupo—ensured that the material palette maintained consistent quality throughout. The photography by Nicolas Saieh captures the architectural qualities with sensitivity, documenting both the bold gestures and subtle details that define the project.


All the Photographs are works of Nicolas Saieh