House of Jazz
"The spirit of jazz is the spirit of openness"
This quote from the famous jazz musician Herbie Hancock represents the basic idea of the project. Openness, connection, fluidity, movement / waves, harmony, constant change… is a condition for progress and development in general. It is about openness of views, thoughts and exchange of ideas.
The question that arises is what should the House of Jazz look like at the beginning of the 21st century. Should it be traditional and calm? Or rather modern and extravagant? And how should it relate to jazz?
Perhaps the answer is it can be a hybrid of both - traditional and modern - a combination of openness and clear organization, a structure that actively participates in the public space, while representing a home for jazz artists and jazz lovers and expressing itself through its own identity.

IDENTITY / CONCEPT
- the House of jazz is a hybrid of traditional and modern - it is a house and a home at the same time, a combination of openness and clear organization.
- to create a home requires an emotional connection and sense of belonging, not physical things.
- a transparent physical structure in that sense represents just a framework for promoting originality and creativity, aware of the values of the past and reflecting the present for the needs of the future.
- it is a remix of architecture through urban and cultural context.
- the new structure reflects the desired representative role and suggests openness, communication, accessibility and a sense of connection.
- the main spatial feature - an open gallery around the building and the jazz garden in the green courtyard, integrates the object into the public space and urban living of the city.
- the building is unique because of its recognizable appearance and simplicity, where jazz and architecture meet.
SPATIAL PLANNING OF THE AREA
The concept of spatial planning of the area derives from urban facts. The basic urban fact is that it is an empty plot that completes a series of traditional residential brick row houses. The typology, criteria and dimensions in this section and on the north side of Bruckner Blvd. are quite uniform. The building block is completed by the McDonalds building with a large parking lot, which loosens spatial relations with a different typology, scale and function.

Loose spatial relations can only be connected by clear, clean and integral architecture which transforms the urban space to such an extent that it no longer disintegrates. The new building thereby becomes a structure that connects the seemingly impossible. There are two different systems of joint action at work. Firstly, a solid, hierarchical structure with a system of program galleries across floors, and secondly, a scattered system of an open “network” that we experience as a series of events through movement.
Due to its specific function, the concept of arranging an area in relation to a wider area is of a distinctly social nature. By strengthening the public program the location is also integrated into the wider city area.
The building is designed within the set urbanistic guidelines (the height of the building is 10 m, the size of the built-up land is 30%, the total built-up area is within the allowed 438 m2). It strictly respects certain floor dimensions and takes into account the 3m offset.
An important spatial element are the program walls, which delimit the building plot and create an additional experience space surrounding the building.
The main spatial feature - an open gallery around the building and a garden in the courtyard - integrates the object into public space and urban living of the city.
FUNCTIONAL / ARCHITECTURE AND PROGRAM

The row houses from 1915 are part of the distintive image of the Bronx . As a rule, they have a public ground floor and 2 to 3 residential floors. Due to the specific typology, they open only towards the street and backyard side. The last in line ends with a blind facade and demarcation of the plot, which is part of the existing structure. It acts as a mental barrier dictated by the McDonalds facility and a parking lot.
The proposed design completes a series of row houses and establishes a single, functional and autonomous space and new spatial relationships:
1. it creates a physical connection between old and new
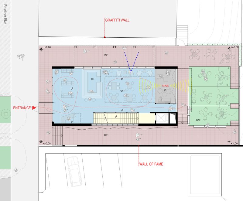
- external gallery on the ground floor level (wall of fame, graffiti wall,)
- program void
- maintains scale and materials
- upholds the idea of green gardens
2. it creates a visual connection between old and new
- external gallery on the 1st and 2nd floor (video wall)
- visual barrier to the existing car park (wall of fame)
- a clear position of the main entrance
- metal blinds as part of the identity of the building and reminiscence of brick facades
3. relations with green areas
- design of a jazz garden as part of the traditional green courtyards of row houses
- a green oasis as a relaxing and open event space
- space for socializing
The architectural design is based on the relationship to a given space and refers to the set starting points. Given the spirit of the place and time, the new building represents a reinterpretation of the traditional brick rowhouse with new content, which establishes the relationship of architecture and music through interconnecting and complementary elements.
The newly created building is also a hybrid in terms of content, as it combines several functional units that connect into the House of Jazz. These are the performance spaces (49% of space), exhibition spaces (31%), administrative spaces (6%) and the hospitality and services area (14%). Within these elementary divisions, the House of Jazz, in addition to the "internal" part, also includes the external gallery and jazz garden. Everything is interconnected - physically or visually.
The entire building is vertically connected by comfortable staircases, and a lift is provided for disabled access. The three floors are visually interconnected, but each has its own character. All of them are flexible and can be adapted for various events and exhibitions.
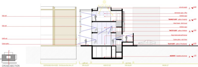
Each floor is addressed and defined by a quote from a famous jazz musician. The public groundfloor of with a club character ("Gallery of Free Blowing") is upgraded by two exhibition floors, within which the "Gallery of Reflection" and the "Gallery of Creativity" intertwine. The floors are also named after the colors of the Bronx flag (blue, white and orange floor), which shows up unobtrusively at the entrance.
The basement is functional, where, in addition to public areas for toilets, there are back stage rooms for performers, a warehouse for the needs of the club and exhibitions, and service rooms.
PROGRAM BY FLOORS
The House of Jazz program is architecturally and functionally divided into two parts. The ground floor is intended for general use - as a living room for the community and live events. The exhibition part extends on two on two floors and represents the past, present and future of jazz in an audiovisual and interactive. The intertwining of classic techniques and presentation elements (billboards, murals, photographs, paintings…) is intertwined with modern technology supported by audio visual interactive elements (micro audio boxes, projection screens, film, video, sound and lighting…)
Ground floor / Blue floor / Gallery of Free Blowing
»First you learn your instrument. Then you learn music. Then you forget both of those and just blow.« Dizzy Gillespie
The uniform space includes an info desk at the entrance, a small shop (Records, CDs, DVDs, Books, Souvenirs). The bar is an element of connections, a flexible club space with the possibility of different layouts (cafe, concert, various events) for 40 - 60 people and a stage as the central space of the jazz vibe.
The special feature of the stage is that it also opens to the outside in the jazz garden, which enables open air events or just visual contact with the outside space. The club is about the idea of socializing, communication, exchange of ideas, transition ... A relaxed part with a touch of blue.

1st floor / White floor / Gallery of Reflection
»I try not to look back too much, but sometimes it's nice to reflect.« McCoy Tyner
The first floor is dedicated to the reflection on the role of the Bronx in jazz music. It too is a unified space that, with a flexible arrangement of elements, provides a permanent and changing view of the history of jazz. The emphasis is on monitoring content through audio-visual elements.
The space opens on three sides. The view to the street is covered with a perforated metal mesh (a negative image of the brick wall) which at same time provides shade to the interior. A special feature is the view of the video wall, which is placed outside the building and which is a modern and technological take on the graffiti wall, curated by video artists on various topics. Unlike a classic wall adorned with urban graffiti, an interactive video wall is significantly more connected to what’s going on inside.

The perforation of floors and walls creates a compactness of design with views over several floors and a selective openness to the outside
2nd floor / Orange floor / Gallery of Creativity
"When you're creating you own shit, man, even the sky ain't the limit." Miles Davis
Again, it is a unified space, visually connected to the whole happening of the house, which gives it a special dynamic note. It connects to the outside on two sides. To the already familiar perforated metal mesh and to the video wall - but in this section (floor) with content promoting creativity and various themes related to jazz. A special feature of the floor is the flexible curtain, which can create ambiences for various thematic performances within classic layouts. Creativity is the energy and driving force of progress associated with the orange note.

Interior design - warm materials combined with transparency, programmatic views, translucency and deep light - it is modernly simple.
Interior design
The interior of the building is modern and simple. We suggest the use of simple friendly materials - wood, concrete, terrazzo and glass, which support the idea of openness and transparency, provide views and a deep lighting of the premises. Most of the elements can be moved which allows for a lot of freedom and different space layouts.
PUBLIC / CONNECTIONS OF SPACES
The design is a remix of architecture through urban culture. The space becomes a frame, and the building a container that allows people to move freely through jazz experiences in various directions - vertically and horizontally, inside and out. This freedom of movement, in addition to performances, exhibitions and personal communication, is creating a new focus point of community empowerment and creativity. The universal language of jazz music and especially hip-hop music, which is part of the local cultural history, is an element of networking and public engagement.
The intertwining of the characteristics of the architecture of the place and the recognizability of urban culture in the zeitgeist, represents the common identity of the House of Jazz. The design solution acts as a catalyst that strengthens existing relationships in the urban context, as it creates an interactive relationship between open spaces and the built environment.
Outdoors
The outdoor spaces - the open galleries and the jazz garden, are an integral part of the project. These spaces are filling the program gaps surrounding the building and become occasional event spaces and social crossroads and junctures.
West gallery – Graffiti wall
Graffiti are a part of modern urban culture. The idea is to encourage making jazz graffiti within the House of Jazz. As it is basically an underground subculture that is in a sense a guerrilla-type operation, the graffiti wall is also a guerrilla-idea, as an artistic intervention is planned on the blind facade of the neighboring house.
East gallery – Wall of Fame
The idea behind the Wall of Fame is to capture our attention when entering the House of Jazz area and to divert it from the distracting elements in its surroundings. We found that the eastern part of the plot is exposed towards a large noise generating car park which in combintation with the McDonalds building represents a low quality visual image of the immediate environment. The demarcated corridor, which we created between the building and the parking lot, was designed with the idea of reprenseting important milestones and artist in the history of jazz. We have established a kind of tree of life in the form of a concrete fence that leads us to the central open space - the Jazz garden.
Jazz garden
The jazz garden is a green oasis encapsulating the idea of courtyards, gardens and interior spaces, typical of small neighbourhoods. The gardnen neutralizes any distracting views, connects both galleries and, above all, creates a transparent connection with the interior of the buidling with which it shares a common stage.
It is a space for calming down, relaxed socializing and outdoor events, which uses the northern orientation for direct visual contact with the exhibition space on the first floor and business premises on the second.
The House of jazz is a balanced structure for music expression in (m)any ways.
INTERIOR CONNECTIONS
The building is designed with the purpose to create different environments and interpersonal relationships. The principle of "democratic" design is used - openness, transparency, communication and technology in the function of man.
Contact zones represent axis lines, connecting corridors, the entrance and the exit to the garden. A walk through the building manifests itself as a series of events through movement - into the house, next to the house, through the house and as a series of vertical and horizontal views through the perforated structure of the building and beyond. Verticality and horizontality compose harmony.


IMAGE AND MATERIAL DESIGN
The exterior of the building follows the set architectural and conceptual starting points. It takes into account universal archetypes, urban forms, social realities and modern technology. It expresses openness and accessibility. The new facility is maximally included in the character of the area. The selected materials - brick, concrete, steel and glass are elementary and therefore eternal.
The facade of the building is designed in two parts. An open, transparent part, made of glass, that allows communication and views on three sides and a closed, brick part, in the form of a wavy "canvas", illustrating the sound vibrations, which together with the translucent image of the inscription, simulates the Sound of jazz. A special feature is the metal mesh in the image of negative bricks, which, in addition to shading, gives the building the appearance of a special and space, “dressed” in the materials of its surroundings.
The image of the whole is a controlled articulation of two related but different images.
Facade - controlled articulation of related and different materials expresses openness, communication and relationship with tradition.
FUTURE
The real challenge is how to combine jazz composition and improvisation and integrate it into the creative process of building design.
Just as jazz is constantly evolving, so will the House of Jazz, as it changes in space and time along with content, seasons, daylight and especially with people giving it originality, personality and never ending potential of creativity
It is the free structure made from a balanced structure, which represent music expressed from the soul. The abstract transformation of musical vibration, along with materials related to the Bronx tradition (brick & metal), is recognized as a universal design principle that gives the building a timeless image.
The house of jazz encourages constant creativity through free ambience, harmony, connections and motion, thereby ensuring that the spirit of openness will keep on powering the spirit of jazz.
Popular Articles
Popular articles from the community
Solar Steam: A Climate-Responsive Architecture That Redefines the Monument
A climate-responsive memorial architecture that transforms heat, decay, and time into a living system reflecting humanity’s ecological impact.
The Ken Roberts Memorial Delineation Competition (Krob)
As the most senior architectural drawing competition currently in operation anywhere in the world, it draws hundreds of entries each year, awarding the very best submissions in a series of medium-based categories.
Louis Malle Cinema: A Limestone Cultural Landmark Revitalizing Community Life in Prayssac
Limestone cinema extension with public forecourt, blending heritage and modern design to create flexible cultural spaces and strengthen community interaction.
Flamboyant House by Juliana Camargo + Prumo Projetos
Modern Brazilian house integrating existing tree, pool, and volumes with glass, wood, and transitional spaces blending interior, exterior, and landscape seamlessly.
Similar Reads
You might also enjoy these articles
Converge Hub – A Human-Centered and Sustainable Mobility Hub at the Urban Edge
Its open and permeable design promotes sustainable movement through walkable connections, green axes, and integrated public transport
51st Annual KRob - Ken Roberts Memorial Delineation Competition
Join us in celebrating 51 years in excellence in architectural representation! With $2,400 in prize money awarded across 8 categories, this prompt-less competition is accessible to all!
Explore Architecture Competitions
Discover active competitions in this discipline
The International Standard for Design Portfolios
The Global Benchmark for Architecture Dissertation Awards
The Global Benchmark for Graduation Excellence
Challenge to reimagine the Iron Throne































Comments (0)
Please login or sign up to add comments
No comments yet. Be the first to comment!