Hugo’s House by Ian Moore Architects: A Modern Extension to a Victorian Terrace House in Glebe
Hugo’s House reinvents a Victorian terrace with a modern steel extension, blending heritage sensitivity and minimalist architectural clarity.
Bridging Heritage and Contemporary Design in Sydney
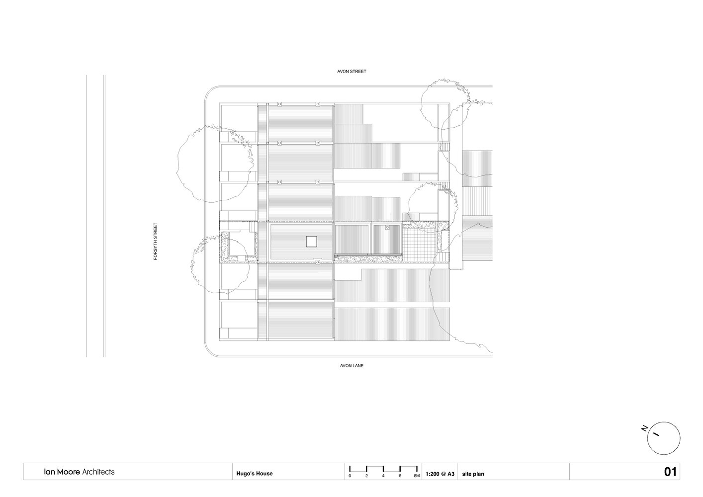
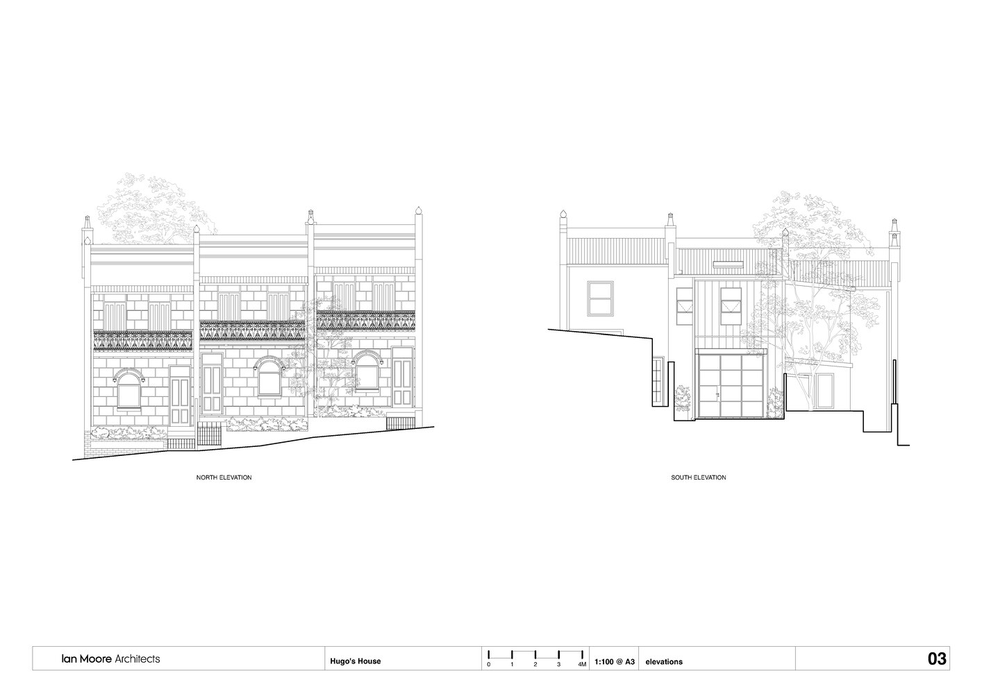
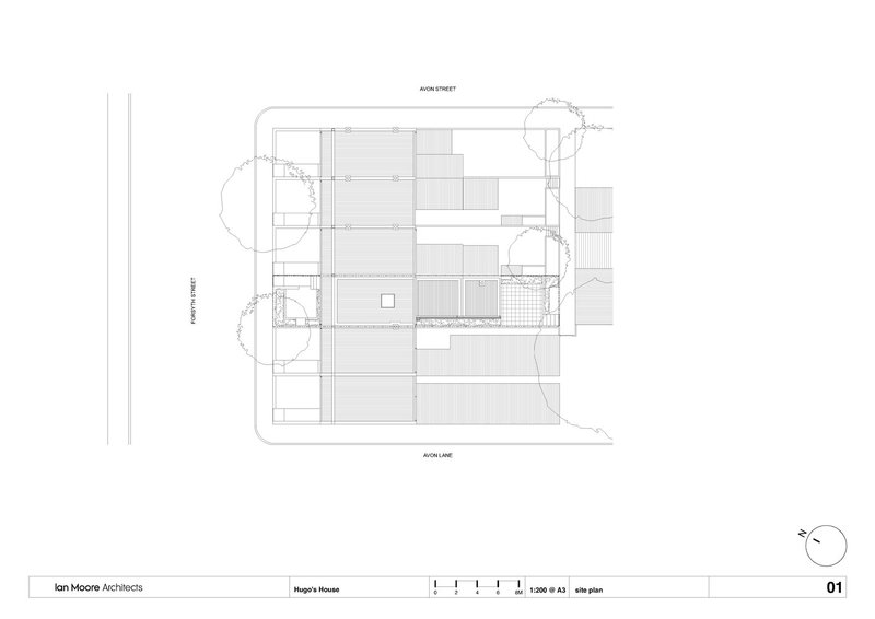
Set within the Heritage Conservation Area of Glebe, Australia, Hugo’s House by Ian Moore Architects presents a striking reinterpretation of a traditional terrace through a modern extension to a Victorian terrace house. The project, completed in 2024, breathes new life into one of a row of six identical historic terraces by carefully contrasting the original masonry structure with a sleek steel-framed addition that introduces openness, light, and spatial clarity.




Respecting History While Reimagining Functionality
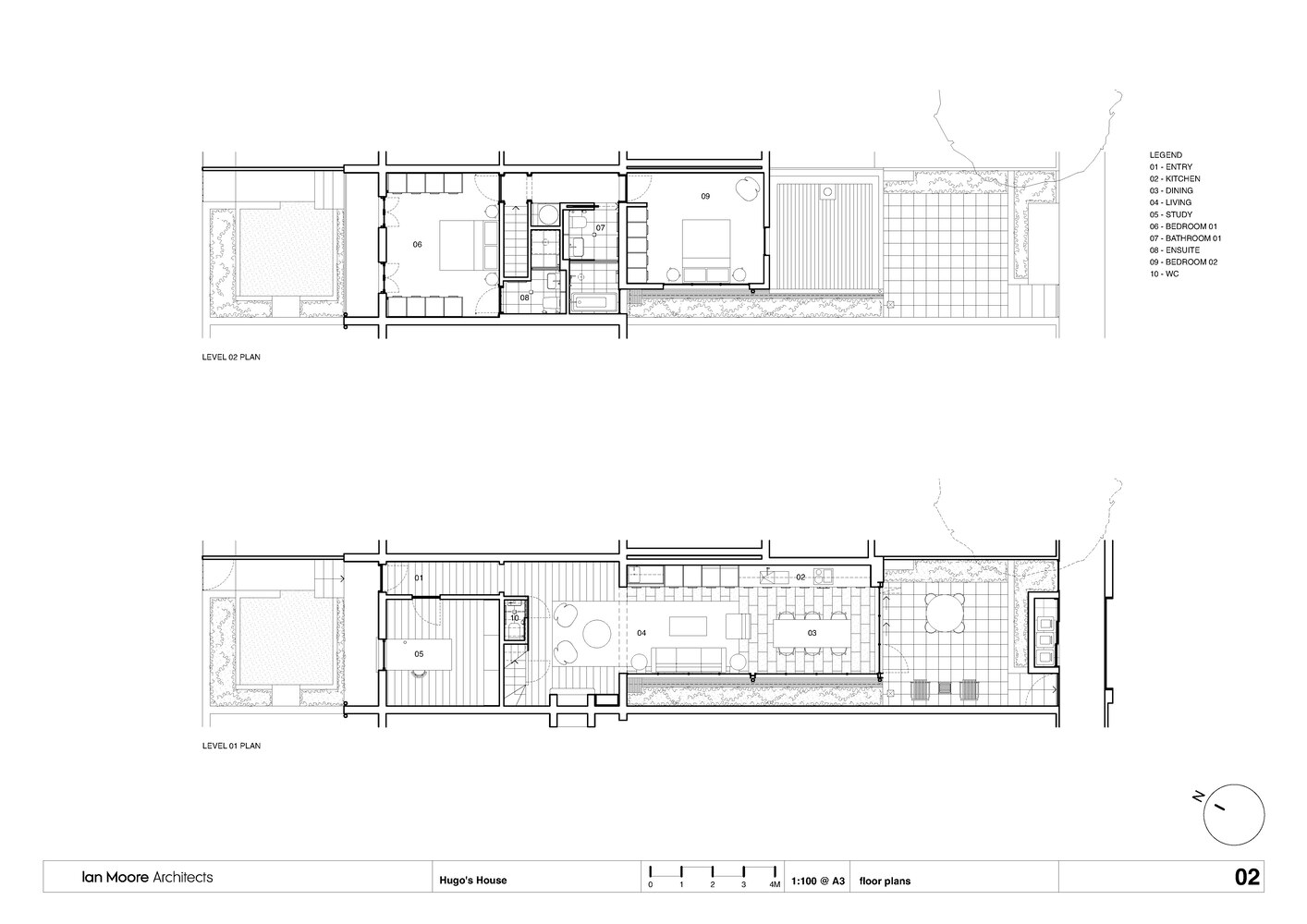
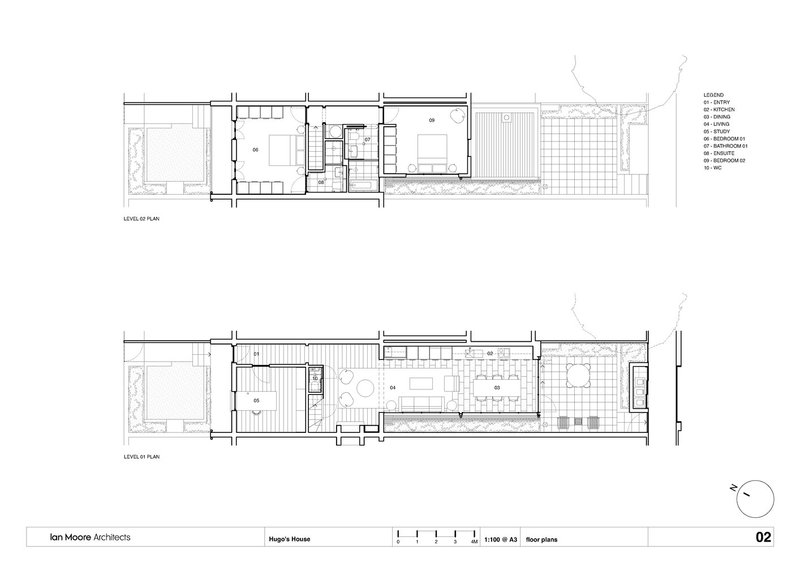
The original house features a typical cross-stair typology, which historically made it difficult to unify the front rooms into a single open-plan space. Rather than disturb the heritage fabric, the design team opted to retain the original volume and instead expand the livable area to the rear. The previous kitchen and laundry spaces in the outdated extension were demolished, paving the way for a lightweight, steel-framed two-storey addition that provides a fluid indoor-outdoor living experience and a new upper-level bedroom.


This strategic choice respects the architectural constraints of the heritage home while enabling a fresh, contemporary lifestyle for its occupants. The new form is clearly legible against the rendered brick of the existing house, ensuring that old and new speak in harmony rather than mimicry.


A Contemporary Language of Steel, Glass, and Light
The extension is expressed through a modern material palette—steel cladding, steel-framed glazing, and delicate, recessed detailing. New windows and doors open fully to the rear and side courtyards, dissolving the boundaries between interior and exterior. Along the side, a concrete boundary wall footing prevented excavation, prompting the architects to employ elevated grey aluminium planters for landscaping. These linear interventions provide greenery without disrupting the existing site conditions, maintaining continuity throughout the narrow courtyard.


Internally, the material choices echo this quiet contrast. Cork flooring is used in the new lower level to visually warm and relate to the timber tones of the original structure. The kitchen, clad in pale grey joinery to match the exterior steelwork, features a mirrored splashback that bounces light and reflects courtyard plantings, creating a sense of depth in the compact footprint.


Skylit Interiors and Thoughtful Transitions
Upstairs, the reorganization of rooms maximizes utility and enhances livability. The previous rear bedroom becomes two new bathrooms, including a skylit ensuite. The skylight draws daylight into the heart of the windowless space, turning the ensuite into a luminous, serene retreat. Bathrooms are finished in terrazzo tiles and Japanese finger tiles, extending a textured, crafted quality across all wet areas.



The rear courtyard uses the same terrazzo paving as the bathrooms, ensuring material continuity and a calm transition from interior to exterior. Every surface and interface is designed with sensitivity to light, material resonance, and architectural rhythm.




An Elegant Balance of Past and Present
In Hugo’s House, Ian Moore Architects achieves an elegant balance between heritage preservation and modern expansion. By embracing contrast rather than camouflage, the new extension creates clarity in spatial organization and a tangible connection to landscape and light. It celebrates the house's past while enhancing its future with adaptable living spaces, efficient planning, and timeless material expression.


This project is a model for architectural restraint and innovation within heritage contexts—an urban extension that does not overpower but complements, that updates without erasing, and that expresses modernity through material honesty and spatial generosity.


All Photographs are works of Clinton Weaver
Popular Articles
Popular articles from the community
Gads Hill Early Learning Center by JGMA: Adaptive Reuse Shaping Community-Focused Educational Architecture
Adaptive reuse transforms fragmented structure into vibrant early learning center with playful façade, natural light, and community-focused sustainable design.
Free Architecture Competitions You Can Enter Right Now
No entry fees, real prizes. Here are the best free architecture competitions open for submissions in 2026.
The Ken Roberts Memorial Delineation Competition (Krob)
As the most senior architectural drawing competition currently in operation anywhere in the world, it draws hundreds of entries each year, awarding the very best submissions in a series of medium-based categories.
Alton Cliff House: A Harmonious Retreat by f2a Architecture in Lake Country, Canada
Alton Cliff House blends corten steel, prefabrication, and sustainable design, creating a luxurious, energy-efficient retreat perched on Canadian cliffs.
Similar Reads
You might also enjoy these articles
Free Architecture Competitions You Can Enter Right Now
No entry fees, real prizes. Here are the best free architecture competitions open for submissions in 2026.
Top 15 Architecture Competitions to Enter in 2026
From student-friendly idea competitions to prestigious international awards, here are the best architecture competitions open for entries in 2026. Updated regularly.
DIY & Engineering in Computational Design : Enter the BeeGraphy Design Awards
Showcase Your Creativity with Computational Design and Open Source Projects

Innovative Design Solutions: Award-Winning Projects from Recent Architecture Competitions
Exploring award-winning architectural projects shaping the future of design, sustainability, and community.
Explore Architecture Competitions
Discover active competitions in this discipline
The International Standard for Design Portfolios
The Global Benchmark for Architecture Dissertation Awards
The Global Benchmark for Graduation Excellence
Challenge to reimagine the Iron Throne
Comments (0)
Please login or sign up to add comments
No comments yet. Be the first to comment!