Iconic Theater Architecture in Buenos Aires: Unveiling the General San Martín Municipal Theater
Exploring the General San Martín Municipal Theater, a masterpiece of iconic theater architecture in Buenos Aires.
Nestled in the bustling heart of downtown Buenos Aires, the General San Martín Municipal Theater stands as a cornerstone of iconic theater architecture in Buenos Aires. Crafted by the visionary architects Mario Roberto Álvarez and Macedonio Oscar Ruiz in 1954, this architectural marvel has addressed the artistic and cultural vibrancy common to the Americas' metropolises. With its inauguration in 1960 under President Arturo Frondizi's tenure, the theater has since been an integral part of Argentina's cultural landscape, offering a diverse array of theatrical, cinematic, and artistic exhibitions.





Architectural Mastery and Innovation
Overcoming Spatial Challenges
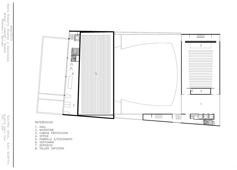
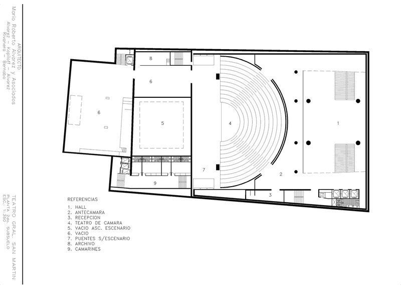
Faced with the constraints of the urban landscape, Álvarez and Ruiz embarked on a design journey that led to the creation of a complex of juxtaposed volumes. This strategic arrangement allowed for the theater's phased development, resulting in a structure that spans thirteen floors and four basement levels. The theater complex, complemented by the General San Martín Cultural Center, encapsulates three theaters, a photo gallery, a cinema, and numerous spaces dedicated to artistic production and administrative functions.






Aesthetic and Functional Harmony
Mario Roberto Álvarez's philosophy that "architecture is primarily about utility and function" is vividly reflected in the theater's design. The architects' meticulous planning ensured that every element, from the service areas to the positioning of the hall and stage, served a purpose beyond mere aesthetics. The resulting architecture is a testament to logical, functional, and straightforward design principles, with beauty emerging as a natural consequence.






A Comprehensive Cultural Venue
The Theaters and Halls
The General San Martín Municipal Theater is home to several performance spaces, each designed to cater to a wide range of artistic expressions. The Martín Coronado Hall, Casacuberta Hall, Cunill Cabanellas Hall, and Leopoldo Lugones Hall are equipped with state-of-the-art stage machinery and technology, making the theater one of the most comprehensive venues for performances in Buenos Aires.









Artistic Integration
Beyond its functional capabilities, the theater is a beacon of artistic integration, featuring murals, sculptures, and artworks that enhance the visual experience. The collaboration between architects, artists, and technicians has fostered a space that is not only a venue for performances but also a living museum of art and culture.







A Legacy of Architectural and Cultural Significance
The General San Martín Municipal Theater, through its innovative design and dedication to the arts, has firmly established itself as a symbol of iconic theater architecture in Buenos Aires. As it continues to host a plethora of performances and exhibitions, the theater remains a pivotal space for cultural expression, inviting audiences to engage with the arts in a setting that is both historically significant and architecturally inspiring.






All Photographs are the work of
Popular Articles
Popular articles from the community
On the Brooks House by Monsoon Collective – A Contemporary Kerala Home Rooted in Tradition
Kerala home blending tradition and modernity with water-inspired design, brick architecture, courtyard planning, and sustainable rainwater harvesting strategies.
Louis Malle Cinema: A Limestone Cultural Landmark Revitalizing Community Life in Prayssac
Limestone cinema extension with public forecourt, blending heritage and modern design to create flexible cultural spaces and strengthen community interaction.
A Contemporary Take on Iranian Residential Architecture
A modern interior design in Mashhad that reinterprets brick, light, and spatial flow to create a warm, contemporary residential architecture.
The Ken Roberts Memorial Delineation Competition (Krob)
As the most senior architectural drawing competition currently in operation anywhere in the world, it draws hundreds of entries each year, awarding the very best submissions in a series of medium-based categories.
Similar Reads
You might also enjoy these articles
Top 15 Architecture Competitions to Enter in 2026
From student-friendly idea competitions to prestigious international awards, here are the best architecture competitions open for entries in 2026. Updated regularly.
DIY & Engineering in Computational Design : Enter the BeeGraphy Design Awards
Showcase Your Creativity with Computational Design and Open Source Projects

Innovative Design Solutions: Award-Winning Projects from Recent Architecture Competitions
Exploring award-winning architectural projects shaping the future of design, sustainability, and community.
Explore Architecture Competitions
Discover active competitions in this discipline
The International Standard for Design Portfolios
The Global Benchmark for Architecture Dissertation Awards
The Global Benchmark for Graduation Excellence
Challenge to reimagine the Iron Throne
Comments (0)
Please login or sign up to add comments
No comments yet. Be the first to comment!