Ikigai Restaurant by Hiero Arc: A Sanctuary of Gastronomy and Gardening in Anápolis, Brazil
Ikigai Restaurant in Anápolis blends gastronomy with gardening, creating a serene, nature-connected dining experience.
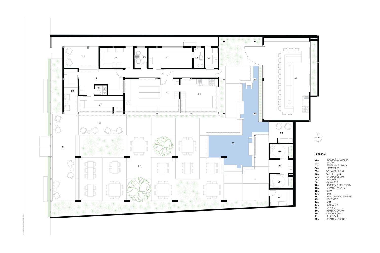
Nestled in the heart of Brazil's Midwest region, the Ikigai Restaurant in Anápolis, Goiás, emerges as a unique blend of gastronomy and gardening, conceptualized by Hiero Arc. Spanning 6028 ft², this project, beautifully captured by Igor Carvalho, is a testament to creating serene environments that allow visitors to escape urban chaos and connect with the tranquility of nature. Through the thoughtful design led by architects Samara Almeida and Guilherme Castro, Ikigai Restaurant becomes a space where simplicity, peace, and natural beauty converge.




Design Philosophy: Authenticity and Naturalness
The restaurant's design is deeply rooted in the pursuit of authenticity, with raw materials, exposed installations, and the simplistic elegance of the furniture mirroring the local culture's identity. Wire chairs and the prominent use of plants throughout the space underscore the connection to nature and the owners' passion for gardening. A water mirror enhances the ambiance, offering contemplative spaces that invite relaxation and immersion in the natural environment.





Transforming Spaces: From Old House to Gastronomic Haven
Ikigai Restaurant's operational heart is an old house, ingeniously adapted to accommodate the kitchen and technical areas. The design choice to visually integrate the kitchen with the main dining hall fosters a dynamic interaction between chefs and patrons. Large glass openings ensure a seamless visual connection, turning the gastronomic process into an engaging spectacle for all.




Expanding the Experience: A Restaurant-Nursery Hybrid
Adjacent plots incorporated into the project house the reception, waiting area, and dining hall, with metal mesh defining the covered spaces and courtyards punctuated by voids. The landscape, characterized by a geometric system of tables, landscaping, and water features, introduces complexity to the construction's apparent simplicity. The owner's hobby of planting and nurturing transforms part of the restaurant into a nursery, where seedlings are sold to customers, ensuring the landscape's constant evolution.




Exclusive Gastronomic Services: The Omakasse Kitchen
The restaurant also features an Omakasse-style kitchen, offering exclusive gastronomic services and a unique dining experience. The centralized counter not only serves as a welcoming space for customers but also as a culinary laboratory for the chef to experiment with signature dishes, conduct courses, and produce virtual content. A solitary wooden pendant light, reminiscent of a lantern, dramatizes the culinary scene, focusing exclusively on the dishes and their preparation.






A Culinary and Botanical Retreat
Ikigai Restaurant stands as a remarkable realization of a dual-function space that marries the culinary and botanical worlds. It offers not just a dining experience but a retreat into a world where gastronomy and gardening coexist harmoniously, reflecting the owners' dual passions. Through its innovative design and immersive environment, the restaurant invites patrons to partake in a journey that is as much about savoring exquisite cuisine as it is about appreciating the beauty of nature.





All photographs are work of Igor Carvalho
Popular Articles
Popular articles from the community
Flamboyant House by Juliana Camargo + Prumo Projetos
Modern Brazilian house integrating existing tree, pool, and volumes with glass, wood, and transitional spaces blending interior, exterior, and landscape seamlessly.
The Ken Roberts Memorial Delineation Competition (Krob)
As the most senior architectural drawing competition currently in operation anywhere in the world, it draws hundreds of entries each year, awarding the very best submissions in a series of medium-based categories.
Atelier Macri Concept Store Interior Design by CASE-REAL
Atelier Macri store features a "ko" counter, walnut wood details, cork displays, blending retail, gallery, and seamless customer experiences.
Treehouse Apartment: A Warm Timber Interior Blending Craft, Play, and Contemporary Living
Warm timber apartment with integrated treehouse, combining natural materials, craftsmanship, and playful design to create a flexible, family-oriented living environment.
Similar Reads
You might also enjoy these articles
The Ken Roberts Memorial Delineation Competition (Krob)
As the most senior architectural drawing competition currently in operation anywhere in the world, it draws hundreds of entries each year, awarding the very best submissions in a series of medium-based categories.
Waterfront Redevelopment and Urban Revitalization in Mumbai: Forging a New Dawn for Darukhana
A transformative waterfront redevelopment project reimagining Darukhana’s shipbreaking heritage into an inclusive urban future.
OUT-OF-MAP: A Call for Postcards on Feminist Narratives of Public Space
Rhizoma Design and Research Lab invites artists, designers, architects, researchers, and students to reflect on how feminist perspectives can reshape public space. Selected works will be exhibited in Barcelona, October 2026. Submissions open until 15 April 2026.
Documentation Work on Buddhist Wooden Temple
Architectural syncretism and cultural hybridity: A comparative study of the Buddhist temples in Chattogram Hill tracks
Explore Architecture Competitions
Discover active competitions in this discipline
The International Standard for Design Portfolios
The Global Benchmark for Architecture Dissertation Awards
The Global Benchmark for Graduation Excellence
Challenge to reimagine the Iron Throne
Comments (0)
Please login or sign up to add comments
No comments yet. Be the first to comment!