Innovative Educational Architecture in Baghdad: International Community School by Studio Muduni
Studio Muduni redefines educational spaces in Baghdad, merging security with open, culturally integrated architectural design.
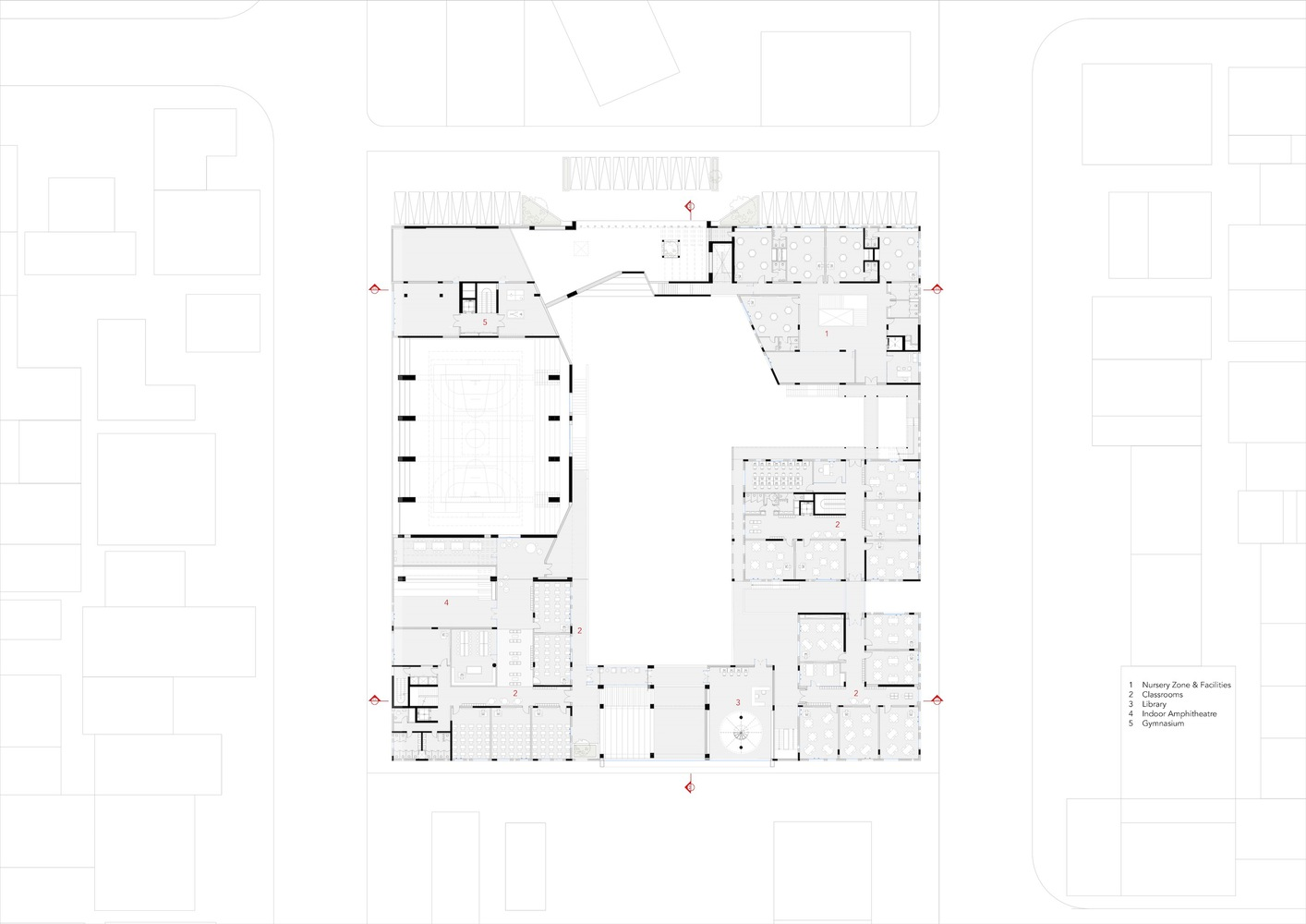
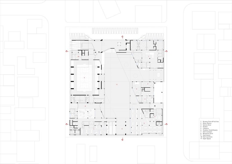
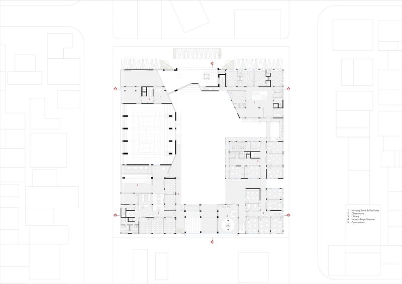
In the heart of Baghdad, Iraq, the International Community School stands as a beacon of innovative educational architecture. Designed by Studio Muduni and slated for completion in 2024, this 15,000 square meter project reimagines the traditional school environment, integrating security, communal spaces, and a deep respect for Baghdad's architectural heritage.





Design Philosophy and Security Integration
The school's design transcends the conventional concept of walls as mere barriers, transforming them into multifunctional elements that convey security and openness. By incorporating security measures into the architecture, Studio Muduni addresses the educational facility's safety needs without sacrificing its inviting atmosphere. The project's approach to security, including thickened ground floor walls and strategically placed windows, showcases a commitment to creating a protected yet accessible learning environment.








Material Selection and Construction Techniques
Adapting to budget constraints, the construction utilizes cost-effective materials like stucco and locally sourced pink terrazzo cladding. This material strategy not only ensures economic efficiency but also contributes to the school's vibrant aesthetic, with color coding used to navigate and delineate different functional areas within the school.





Spatial Configuration
The school's layout is characterized by three distinct circulation systems: an architectural promenade that acts as the main artery of movement, a secondary loop connecting the four departments, and a tertiary network of staircases and elevators for efficient vertical movement. This thoughtful spatial organization fosters a sense of interconnectedness and community, encouraging exploration and discovery among students.
The International Community School of Baghdad by Studio Muduni exemplifies how contemporary educational facilities can embrace cultural heritage, security, and community engagement through innovative architecture. Set against the backdrop of Baghdad's urban fabric, the project offers a forward-thinking model for schools worldwide, blending functionality with meaningful design.










All Photographs are the work of Bahaa Ghoussainy
Popular Articles
Popular articles from the community
Solar Steam: A Climate-Responsive Architecture That Redefines the Monument
A climate-responsive memorial architecture that transforms heat, decay, and time into a living system reflecting humanity’s ecological impact.
Inverted Architecture Installation by Studio Link-Arc: Exploring the Intersection of Architecture and Living Organisms
Inverted Architecture Installation by Studio Link-Arc blends mycelium, sustainability, inverted design, ecological cycles, and urban adaptive architecture in Shenzhen.
The Ken Roberts Memorial Delineation Competition (Krob)
As the most senior architectural drawing competition currently in operation anywhere in the world, it draws hundreds of entries each year, awarding the very best submissions in a series of medium-based categories.
Treehouse Apartment: A Warm Timber Interior Blending Craft, Play, and Contemporary Living
Warm timber apartment with integrated treehouse, combining natural materials, craftsmanship, and playful design to create a flexible, family-oriented living environment.
Similar Reads
You might also enjoy these articles
Top 15 Architecture Competitions to Enter in 2026
From student-friendly idea competitions to prestigious international awards, here are the best architecture competitions open for entries in 2026. Updated regularly.
DIY & Engineering in Computational Design : Enter the BeeGraphy Design Awards
Showcase Your Creativity with Computational Design and Open Source Projects

Innovative Design Solutions: Award-Winning Projects from Recent Architecture Competitions
Exploring award-winning architectural projects shaping the future of design, sustainability, and community.
Explore Architecture Competitions
Discover active competitions in this discipline
The International Standard for Design Portfolios
The Global Benchmark for Architecture Dissertation Awards
The Global Benchmark for Graduation Excellence
Challenge to design luxury tourism on rails
Comments (0)
Please login or sign up to add comments
No comments yet. Be the first to comment!