Innovative High-Rise Office Design: Zigzag Tower by Atelier FCJZ
Zigzag Tower redefines high-rise office design through innovative geometry, structural efficiency, and seamless integration with its unique site.
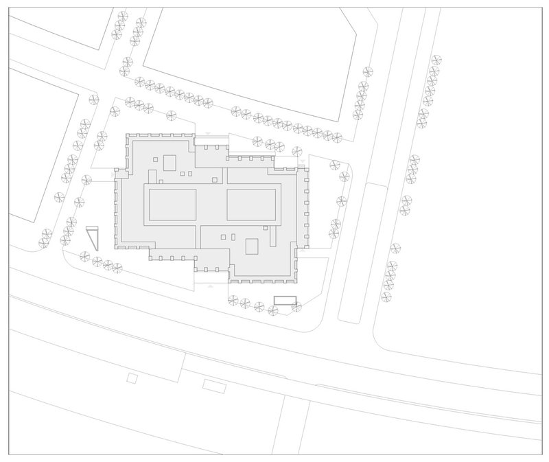
Zigzag Tower, a striking office building in Zhengdong New District, Zhengzhou, China, redefines high-rise design with its bold geometry and efficient structural innovations. Designed by Atelier FCJZ, this 39,172-square-meter tower leverages its unique site and structural features to create a landmark of contemporary architecture.






A Geometry Inspired by the Site
The conceptualization of Zigzag Tower began with a response to its unique site. Situated on a subtly curved parcel within a monumental ring surrounding an artificial lake, the design transforms the conventional rectilinear office tower plan into a dynamic zigzag configuration. This adaptation respects the curvature of the site and introduces a sense of verticality, breaking away from the monotony of typical block-like volumes.
The zigzag geometry not only enhances the tower's aesthetic appeal but also provides practical benefits. The floor plan gains additional corners, offering improved views and a sense of spatial aggregation. This innovative layout makes each level more engaging and functional for its occupants.





Enhancing Verticality with Atriums
In the sectional design, the tower integrates a vertical atrium that spans all floors, connecting spaces and emphasizing its dramatic verticality. The atrium, complete with footbridges, offers a dynamic spatial experience, transforming what could be a rigid office environment into a visually stimulating and interconnected space.
This vertical atrium acts as the building’s core, promoting natural light and facilitating interaction between different levels. It serves as a physical and visual anchor, reinforcing the tower’s innovative approach to high-rise office design.



Beam-Free Structural System
The Zigzag Tower employs a beam-free reinforced-concrete structural system with centralized cores and peripheral columns. This structural innovation creates open, flexible floor plans, allowing for varied configurations based on tenant needs. By eliminating beams, the floor-to-floor height is reduced without compromising ceiling height, enabling the inclusion of an additional floor within the building's height limit.
The peripheral columns not only bear loads but also enhance the building's visual composition. These columns alternate outside the enclosure, emphasizing verticality while facilitating natural ventilation, further blurring the line between indoor and outdoor spaces.



Facade as a Vertical Sculpture
The tower’s facade is a masterful composition of structure and design. Peripheral columns twist and converge as they descend, creating a dynamic interplay of lines that complements the zigzag form. This design ensures a harmonious transition between the upper and lower floors while reinforcing the tower’s distinctive architectural identity.
The interaction of columns with the facade creates a rhythm that is both structural and aesthetic, serving as a visual signature of the Zigzag Tower.



Economy Meets Innovation
Zigzag Tower exemplifies how thoughtful design can align with economic considerations. The beam-free system not only optimizes space but also reduces material usage, demonstrating a balance between sustainability and functionality. The strategic incorporation of natural ventilation and flexible layouts ensures long-term adaptability and energy efficiency, making the tower a model for future office buildings.


A Visionary Landmark
Zigzag Tower stands as a testament to the transformative potential of architecture. By challenging conventions and embracing site-specific solutions, Atelier FCJZ has created a high-rise office building that is as functional as it is iconic. Its bold geometry, structural innovations, and seamless integration with its surroundings position it as a benchmark for innovative high-rise office design.

Zigzag Tower by Atelier FCJZ reimagines the possibilities of speculative office towers. Through its adaptive geometry, structural efficiency, and aesthetic elegance, it establishes a new standard for how high-rise buildings can engage with their environment while meeting contemporary functional needs.


All Photographs are work of Fangfang Tian
Popular Articles
Popular articles from the community
Fifth NRE Jazz Club – De Bever Architecten: Eindhoven’s Revitalized Cultural Hub
Historic gas factory transformed into Fifth NRE Jazz Club blending modern sustainability, jazz culture, dining, and heritage architecture seamlessly.
Inverted Architecture Installation by Studio Link-Arc: Exploring the Intersection of Architecture and Living Organisms
Inverted Architecture Installation by Studio Link-Arc blends mycelium, sustainability, inverted design, ecological cycles, and urban adaptive architecture in Shenzhen.
Solar Steam: A Climate-Responsive Architecture That Redefines the Monument
A climate-responsive memorial architecture that transforms heat, decay, and time into a living system reflecting humanity’s ecological impact.
Split House: A Compact Urban Home Blending Privacy, Light, and Flexible Living in Japan
Compact Japanese home featuring DOMA space, flexible café potential, passive lighting, privacy zoning, and sustainable urban living design.
Similar Reads
You might also enjoy these articles
The Ken Roberts Memorial Delineation Competition (Krob)
As the most senior architectural drawing competition currently in operation anywhere in the world, it draws hundreds of entries each year, awarding the very best submissions in a series of medium-based categories.
Waterfront Redevelopment and Urban Revitalization in Mumbai: Forging a New Dawn for Darukhana
A transformative waterfront redevelopment project reimagining Darukhana’s shipbreaking heritage into an inclusive urban future.
OUT-OF-MAP: A Call for Postcards on Feminist Narratives of Public Space
Rhizoma Design and Research Lab invites artists, designers, architects, researchers, and students to reflect on how feminist perspectives can reshape public space. Selected works will be exhibited in Barcelona, October 2026. Submissions open until 15 April 2026.
Documentation Work on Buddhist Wooden Temple
Architectural syncretism and cultural hybridity: A comparative study of the Buddhist temples in Chattogram Hill tracks
Explore Architecture Competitions
Discover active competitions in this discipline
The International Standard for Design Portfolios
The Global Benchmark for Architecture Dissertation Awards
The Global Benchmark for Graduation Excellence
Challenge to reimagine the Iron Throne
Comments (0)
Please login or sign up to add comments
No comments yet. Be the first to comment!