Innovative Kindergarten Design: A Closer Look at Shanghai Blue Bay Kindergarten by ECADI
Shanghai Blue Bay Kindergarten blends innovative design with nature to nurture exploration and learning in children.
In the burgeoning suburbs of Fengxian District, the Shanghai Blue Bay Kindergarten stands as a beacon of innovative kindergarten design. Conceived by ECADI, this project transcends traditional educational architecture, crafting a space that nurtures curiosity, creativity, and a seamless bond with nature. Through the vision of creating a "Cloud House on the Forest," ECADI introduces a new paradigm for preschool education that harmonizes with its surroundings while sparking children's imaginations.

Design Philosophy
A Village of Exploration
Embracing an orderly, village-like layout, Shanghai Blue Bay Kindergarten addresses the challenges of sunlight exposure and functional requirements within a dense urban context. The design philosophy prioritizes natural elements—sunlight, greenery, and gentle breezes—allowing children to experience nature's essence firsthand. The permeable and interwoven spaces are crafted to ignite the innate curiosity of children, encouraging endless exploration.



Architecture That Encourages Curiosity
The kindergarten's architecture is a tale of two realities: the grounded wooden houses with earthy textures and the upper sections enveloped in perforated corrugated aluminum sheets, resembling castles floating in the clouds. This dual concept not only enriches the visual experience but also ensures optimal sunlight and ventilation, thanks to strategically placed windows of varying sizes.



Key Features
Integration with Nature
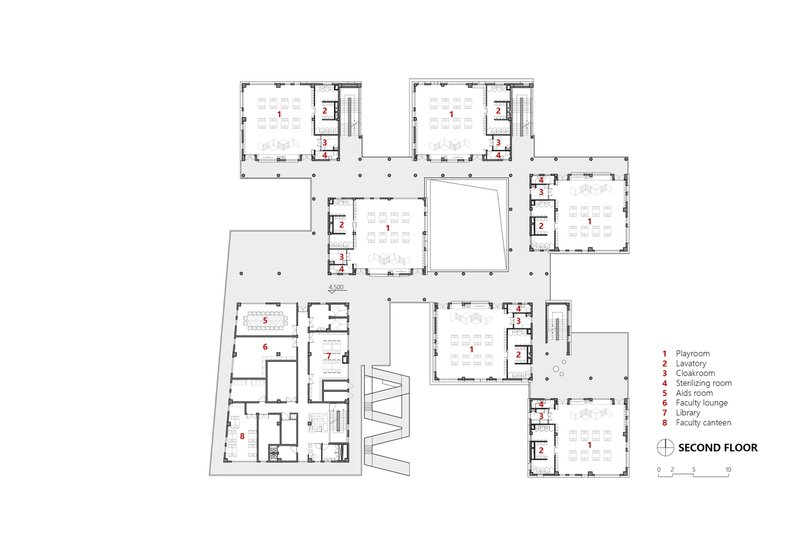
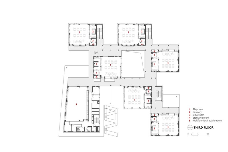
The design thoughtfully integrates indoor and outdoor environments, blurring the boundaries between the two. Activity rooms on the first floor can fully open up to the gardens, extending the learning space into nature and fostering a dynamic and adaptable environment for education and play.





Characterized Courtyards
At the heart of the kindergarten are six themed courtyards, each with its unique atmosphere. These miniature worlds offer diverse experiences, from the flourishing of plants to the presence of wildlife, aiding in the development of children's understanding of the natural world.





Warm and Poetic Interiors
The interior design mirrors the simplicity and brightness of the exterior. A minimalist approach to the playrooms allows for flexibility in furniture arrangement and activities, effectively controlling costs while maintaining aesthetic consistency. The thoughtful placement of skylights and windows of various sizes and heights invites children to engage with the outside world from different perspectives, enhancing their sensory experiences.





Shanghai Blue Bay Kindergarten by ECADI exemplifies how innovative kindergarten design can transform early childhood education. By marrying architectural ingenuity with a deep respect for nature and child-centered learning, the project sets a new standard for educational spaces. It stands not just as a structure but as a living environment that evolves with its inhabitants, shaping young minds to appreciate the beauty of the natural world and the endless possibilities it holds.








All Photographs are the work of CreatAR Images