Innovative Kindergarten Design: Exploring KN Kindergarten by HIBINOSEKKEI + Youji no Shiro + KIDS DESIGN LABO
The article showcases KN Kindergarten by HIBINOSEKKEI, Youji no Shiro, KIDS DESIGN LABO, focusing on its innovative, nature-integrated, and culturally reflective design.
Kindergarten design has evolved from basic playrooms to innovative spaces that encourage exploration, learning, and physical activity. The KN Kindergarten in Minamikyushu, Japan, designed by HIBINOSEKKEI, Youji no Shiro, KIDS DESIGN LABO, is a prime example of this evolution, offering a unique learning environment that blends seamlessly with nature and local culture.


Design Philosophy and Environmental Integration
The architects designed KN Kindergarten with the concept of "a facility that enchants the original landscape and provides opportunities for authentic experiences." Located amidst the typical landscape of mountains and fields in Japan, the kindergarten is designed to make the children and the local community appreciate the natural beauty around them and understand the significance of their local environment.





Embracing the Local Landscape
The design of the kindergarten focuses on capturing the often-overlooked beauty of the local landscape. Large windows and open spaces allow children to observe the changing colors of nature throughout the day and seasons, fostering a connection with their environment and enhancing their appreciation for their hometown.




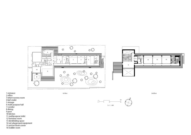
Architectural Strategy and Playful Learning
The structure of KN Kindergarten is divided into three main blocks, each serving a distinct purpose yet interconnected to form a cohesive whole. This layout not only supports the functional needs of the kindergarten but also encourages free movement and social interaction among the children.


Dynamic Play Areas and Safety
The kindergarten boasts dynamic play areas such as a grand staircase with climbing nets, slides, and observation platforms. These areas are designed to promote physical activity and allow children to engage with their environment safely. By incorporating elements of risk and challenge, the design encourages children to understand and navigate their surroundings confidently.


Cultural Integration and Sustainable Play
The playground at KN Kindergarten avoids conventional play equipment, opting instead for materials and designs that reflect the local culture, particularly the region's renowned Buddhist altars. This approach ensures that the play areas not only provide fun and engagement but also serve as educational tools that connect the children with their cultural heritage.



The Role of Nature and Community in Learning
The design of KN Kindergarten represents a shift towards educational spaces that value the role of nature and community. By fostering a deep connection with the local landscape and culture, the kindergarten aims to develop well-rounded individuals who appreciate their roots and the broader world.

Redefining Early Education through Design
KN Kindergarten by HIBINOSEKKEI + Youji no Shiro + KIDS DESIGN LABO sets a new standard for innovative kindergarten design. Through its thoughtful integration with the environment, emphasis on physical activity, and cultural relevance, it offers a model for future educational facilities that aim to nurture sensitive, aware, and active children.


All photographs are work of Ryuji Inoue
Popular Articles
Popular articles from the community
The Ken Roberts Memorial Delineation Competition (Krob)
As the most senior architectural drawing competition currently in operation anywhere in the world, it draws hundreds of entries each year, awarding the very best submissions in a series of medium-based categories.
An Miên Lumière Cafe by xưởng xép, Ho Chi Minh City, Vietnam
An industrial-inspired café where layered steel and warm light create a dynamic, immersive environment shaped by reflection, depth, and perception.
Flamboyant House by Juliana Camargo + Prumo Projetos
Modern Brazilian house integrating existing tree, pool, and volumes with glass, wood, and transitional spaces blending interior, exterior, and landscape seamlessly.
Solar Steam: A Climate-Responsive Architecture That Redefines the Monument
A climate-responsive memorial architecture that transforms heat, decay, and time into a living system reflecting humanity’s ecological impact.
Similar Reads
You might also enjoy these articles
The Ken Roberts Memorial Delineation Competition (Krob)
As the most senior architectural drawing competition currently in operation anywhere in the world, it draws hundreds of entries each year, awarding the very best submissions in a series of medium-based categories.
Waterfront Redevelopment and Urban Revitalization in Mumbai: Forging a New Dawn for Darukhana
A transformative waterfront redevelopment project reimagining Darukhana’s shipbreaking heritage into an inclusive urban future.
OUT-OF-MAP: A Call for Postcards on Feminist Narratives of Public Space
Rhizoma Design and Research Lab invites artists, designers, architects, researchers, and students to reflect on how feminist perspectives can reshape public space. Selected works will be exhibited in Barcelona, October 2026. Submissions open until 15 April 2026.
Documentation Work on Buddhist Wooden Temple
Architectural syncretism and cultural hybridity: A comparative study of the Buddhist temples in Chattogram Hill tracks
Explore Architecture Competitions
Discover active competitions in this discipline
The International Standard for Design Portfolios
The Global Benchmark for Architecture Dissertation Awards
The Global Benchmark for Graduation Excellence
Challenge to reimagine the Iron Throne
Comments (0)
Please login or sign up to add comments
No comments yet. Be the first to comment!