Innovative Residential Architecture in Jakarta: A Closer Look at R+J House by DP+HS Architects
This article explores R+J House in Jakarta, a masterpiece of innovative residential architecture blending art, nature, and design by DP+HS Architects.
Jakarta, Indonesia, is home to some of the most breathtaking examples of modern residential architecture, and the R+J House by DP+HS Architects stands out as a prime illustration. Completed in 2021, this masterpiece merges art, architecture, and nature in a seamless living experience for a young family. This article dives into the architectural marvel that is R+J House, epitomizing innovative residential architecture in Jakarta.


The Unique Setting of R+J House
Nestled at the far end of a gated community in Jakarta, R+J House benefits from its unparalleled location. Surrounded by lush greenery and positioned in a tranquil corner of the housing complex, it offers a serene oasis in the bustling city. The architects, Don Pieto and Henny Suwardi, leveraged this unique setting to create a home that stands as a beacon of innovative residential architecture in Jakarta.




Architectural Strategy and Design
The Challenge of Space and Art Integration
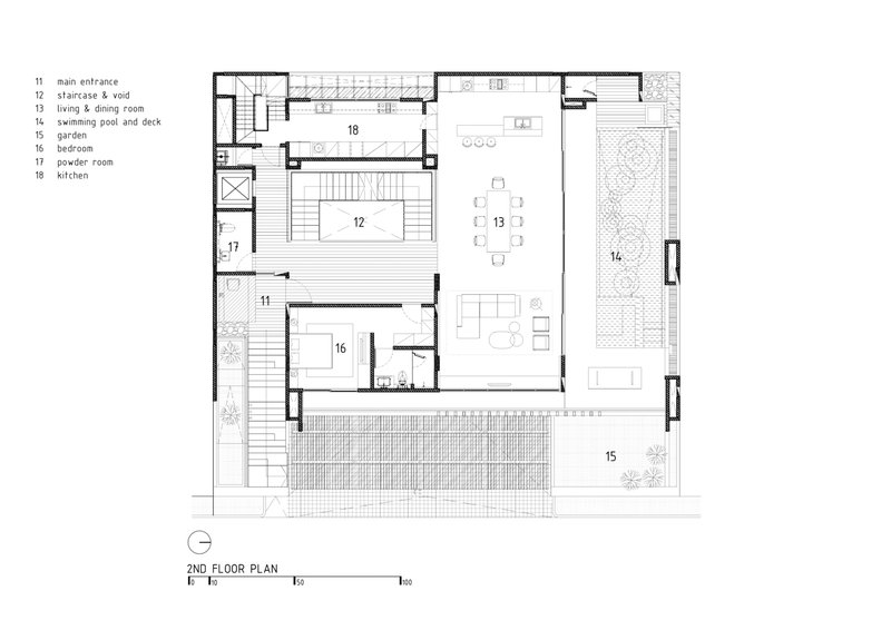
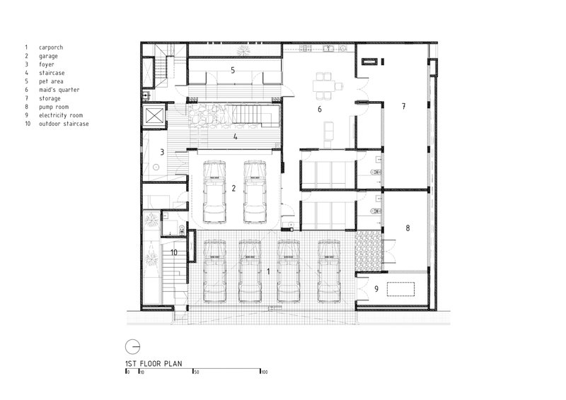
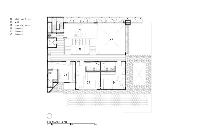
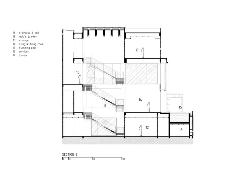
With a total area of 1200 m², the architects faced the challenge of incorporating the homeowners' extensive collection of contemporary art into the design. The solution was a museum-like experience within a residential setting, achieved through a thoughtful raumplan. This design strategy enables fluid movement between spaces while ensuring each area remains part of a cohesive whole.




The Atrium: A Central Piece of the Design
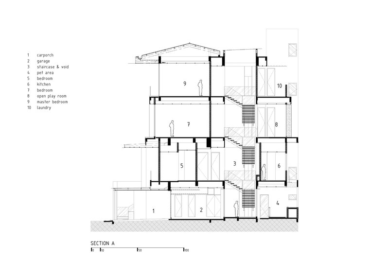
At the heart of R+J House is a grand atrium, inspired by traditional atrium spaces known for emphasizing openness and light. This central space not only enhances the home's sense of openness but also serves as a private sanctuary where art and architecture converge. The atrium's design, featuring a central staircase, allows for a 360-degree exploration of the space, promoting a unique interaction between the occupants and their surroundings.



Art and Nature: Blurring the Boundaries
One of the most striking features of R+J House is its ability to blend indoor and outdoor environments seamlessly. The architects achieved this through strategic openings and the use of glass, which extends the living space to the outdoors. The swimming pool area, visible from the house's central atrium, further exemplifies this concept, offering views of the surrounding greenery and creating a serene backdrop for the art pieces displayed throughout the home.



A Testament to Innovative Residential Architecture in Jakarta
R+J House by DP+HS Architects is more than just a residence; it's a testament to the possibilities of innovative residential architecture in Jakarta. Through its unique blend of art, nature, and architectural finesse, it offers a new perspective on what a home can be. As we explore more examples of innovative residential architecture in Jakarta, R+J House remains a beacon of creativity and inspiration.









All the photographs are work of Don Pieto
Popular Articles
Popular articles from the community
Flamboyant House by Juliana Camargo + Prumo Projetos
Modern Brazilian house integrating existing tree, pool, and volumes with glass, wood, and transitional spaces blending interior, exterior, and landscape seamlessly.
A Contemporary Take on Iranian Residential Architecture
A modern interior design in Mashhad that reinterprets brick, light, and spatial flow to create a warm, contemporary residential architecture.
On the Brooks House by Monsoon Collective – A Contemporary Kerala Home Rooted in Tradition
Kerala home blending tradition and modernity with water-inspired design, brick architecture, courtyard planning, and sustainable rainwater harvesting strategies.
The Ken Roberts Memorial Delineation Competition (Krob)
As the most senior architectural drawing competition currently in operation anywhere in the world, it draws hundreds of entries each year, awarding the very best submissions in a series of medium-based categories.
Similar Reads
You might also enjoy these articles
Top 15 Architecture Competitions to Enter in 2026
From student-friendly idea competitions to prestigious international awards, here are the best architecture competitions open for entries in 2026. Updated regularly.
DIY & Engineering in Computational Design : Enter the BeeGraphy Design Awards
Showcase Your Creativity with Computational Design and Open Source Projects

Innovative Design Solutions: Award-Winning Projects from Recent Architecture Competitions
Exploring award-winning architectural projects shaping the future of design, sustainability, and community.
Explore Architecture Competitions
Discover active competitions in this discipline
The International Standard for Design Portfolios
The Global Benchmark for Architecture Dissertation Awards
The Global Benchmark for Graduation Excellence
Challenge to reimagine the Iron Throne
Comments (0)
Please login or sign up to add comments
No comments yet. Be the first to comment!