Innovative School Library Design: Transforming Learning Spaces at Vič Primary School
Explore the Open Library at Vič Primary School, a beacon of innovative school library design enhancing accessibility and learning in Ljubljana.
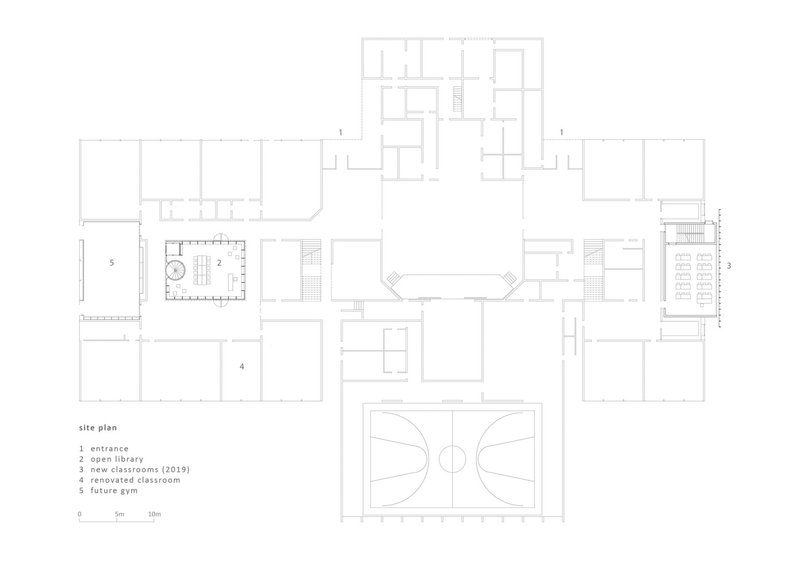
In the bustling educational landscape of Ljubljana, Slovenia, the Open Library stands as a pioneering example of innovative school library design. Created by ARP Studio, this project redefines the concept of a library within a primary school setting, integrating it seamlessly into the school’s central hall.



Conceptualization and Design Strategy
Adapting to Space Constraints
Faced with the challenge of increasing student numbers and limited space, ARP Studio proposed a creative solution that shifted the traditional classroom from the central hall to where the old library was located. This strategic move made room for the new Open Library, optimizing the use of space while enhancing accessibility and visibility of books to students throughout the school.


Designing for Visibility and Interaction
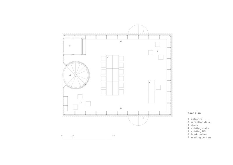
The Open Library is uniquely designed to encircle the perimeter of the two-story hall, allowing books to be visible from various points within the school. This layout not only makes the library the focal point of the school but also maintains the hall’s role as a communal space, now enriched with the presence of books.



Architectural Features and Functionality
Structural Ingenuity
The library’s structure is characterized by a lightweight, translucent design, incorporating primary timber elements and metal frames that form a distinctive spatial grid. This clear structural arrangement not only facilitates quick construction but also contributes to the overall aesthetic of the library.



Multifunctional Library Space
Beyond serving as a conventional library, the space is designed to be multifunctional, adapting to various school activities such as classes, storytelling sessions, book presentations, and social gatherings. The adaptability of the library makes it a versatile asset to the school, promoting a dynamic learning environment.


Impact on Student Learning and School Culture
Fostering a Reading Culture
The Open Library is more than just a physical space; it’s a catalyst for cultural change within the school. By making books constantly accessible and visible, it invites students to engage with reading in both structured and casual settings. This exposure helps cultivate reading habits and a deeper appreciation for literature among students.


Enhancing Educational Experiences
The integration of the library into the school's central communal area allows for continuous interaction with educational resources, transforming the way students perceive and engage with the library. It becomes a living part of their daily school life, significantly enhancing their educational experience.



The Open Library at Vič Primary School, designed by ARP Studio, is a prime example of innovative school library design that responds to spatial and educational challenges with creativity and efficiency. This project not only transforms a traditional space into a vibrant educational hub but also sets a benchmark for future school library designs worldwide.


All photographs are work of Ana Skobe
Popular Articles
Popular articles from the community
Ippolito Fleitz Group Identity Architects Turn Eight Floors in Shanghai into a Vertical Creative City
Publicis Groupe's new headquarters in Xintiandi reimagines the office as a courtyard-driven urban landscape stacked across eight floors.
20 Most Popular Office Building Projects of 2025
From biophilic workspaces in India to net-positive energy offices in New Delhi, 20 office building projects that defined architecture in 2025.
Takeshi Hosaka Architects Suspends a Concrete Cross Above a Yokohama Cemetery
A 28-square-meter burial renovation in Yokohama lifts the symbol of resurrection into the sky so mourners see it against heaven.
RDTH architekti Rips Out Nearly Every Wall in a Prague Apartment and Replaces Them with Furniture
A 101-square-meter post-war flat in Prague trades rigid partitions for a single rotated furniture block, curtains, and glass concrete.
Similar Reads
You might also enjoy these articles
Olio Towers: A Mid-Rise for Performers That Fuses Housing, Rehearsal, and Stage
Located blocks from Houston's Theater District, this modular tower stacks living units around a central performance atrium.
Oasis: Modular Green Housing Carved into Dhaka's Urban Fabric
A shortlisted Plugin Housing entry reclaims unauthorized settlements in Dhaka with stepped concrete volumes, green roofs, and ventilation-driven design.
Black Hole: A Floating Megastructure for the Post-Physical Era
Emiliano Mazzarotto envisions a spherical, self-scaling arena where e-sports, digital hotels, and holographic stadiums replace traditional public space.
Compact & Sustainable Living in Piraeus: A Four-Level Family Home Built Around Light and Air
A narrow townhouse in one of Greece's densest port cities uses a central atrium and passive strategies to house three generations under one roof.
Explore Architecture Competitions
Discover active competitions in this discipline
The International Standard for Design Portfolios
The Global Benchmark for Architecture Dissertation Awards
The Global Benchmark for Graduation Excellence
Challenge to design public laboratory
Comments (0)
Please login or sign up to add comments
No comments yet. Be the first to comment!