Innovative STEAM Design Center Architecture: Flansburgh Architects' New Middle School and STEAM Center
This article explores Flansburgh Architects' innovative design of a Middle School and STEAM Center focused on sustainability and creativity.
Flansburgh Architects have redefined educational architecture with their latest project in Vietnam: the New Middle School and STEAM Design Center. Situated within the Saigon South International School campus, these two distinct yet harmonious buildings blend cutting-edge design with sustainability to create a transformative learning environment. Completed in 2024, the project spans 277,723 square feet, offering state-of-the-art facilities tailored to the intellectual, emotional, and physical development of students.






Vision and Purpose
A Hub for STEAM Education
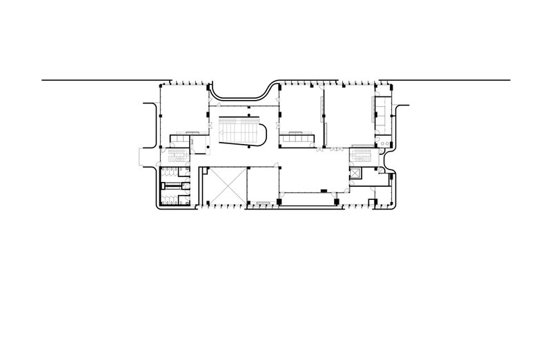
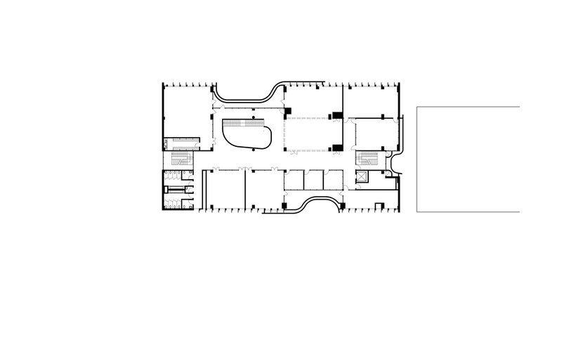
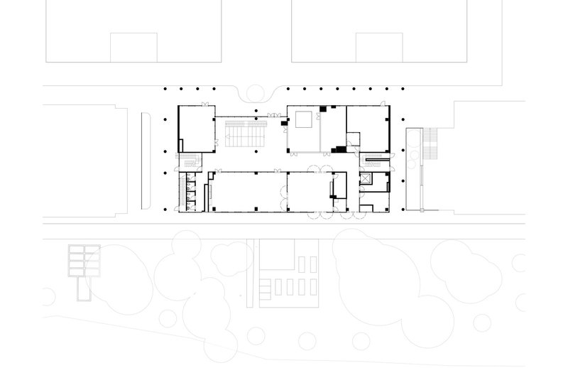
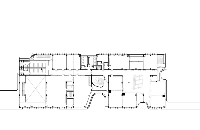
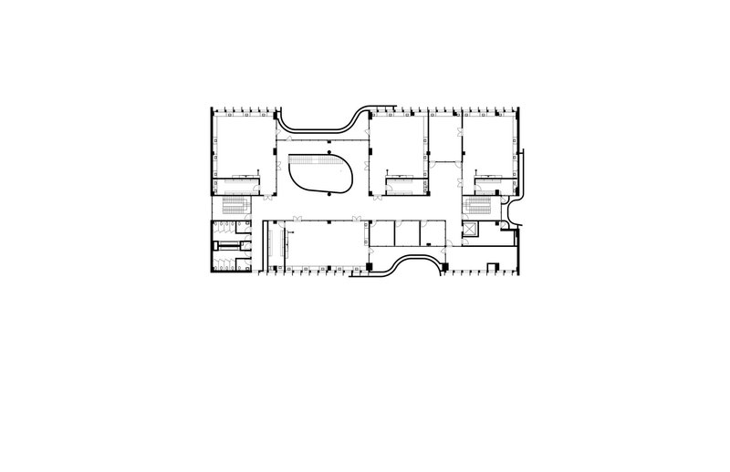
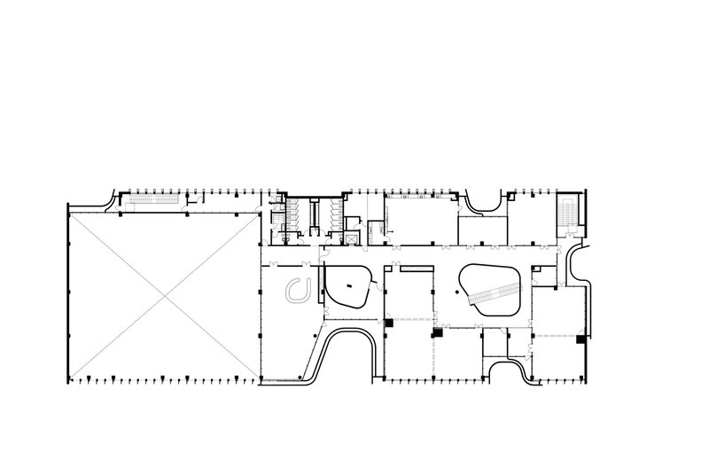
The STEAM Design Center is a vibrant space that inspires creativity and innovation. Housing five science labs, two art rooms, independent art studios, a 3D art and printmaking room, and an indoor/outdoor art gallery, the center supports high school students in exploring cross-disciplinary learning. Transparent and adaptable, the design encourages collaboration and future-ready skill development, essential for the modern academic landscape.





Middle School Designed for Growth
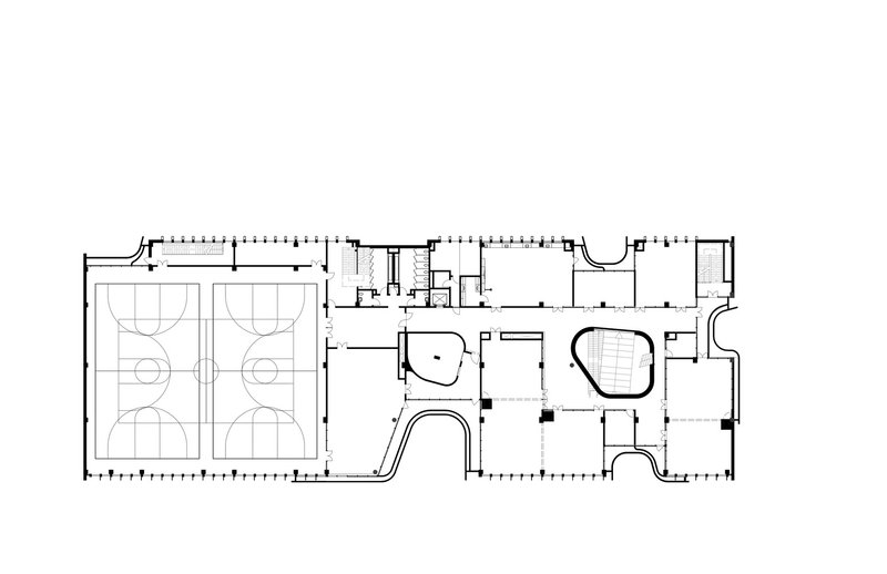
The Middle School caters to grades 6-8, with a focus on fostering emotional, creative, and physical development. Bright, skylit atria encourage collaboration and provide a sense of belonging. Facilities include a 220-square-meter black box theater, dance room, classrooms, science labs, breakout rooms, maker spaces, a library, and a gymnasium, each designed to promote hands-on learning and community building.






Architectural Features
Harmonious Design and Placement
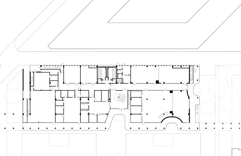
The Middle School and STEAM Design Center are strategically positioned on either side of a central athletic field and green space. The light-colored facades and undulating curves of both buildings complement their gridded structures, creating a visual dialogue. The use of planters inspired by Sa Pa's terraced rice fields introduces cascading greenery that interacts dynamically with wind and rain, adding a sense of movement and life.





Seamless Integration with Nature
The atria interiors feature bamboo, emphasizing local aesthetics and sustainability. Daylight floods these spaces, creating a warm and inviting atmosphere. Garden balconies on each level extend educational spaces outward, connecting students with the lush green surroundings and the nearby river. These features reinforce a sense of harmony between the built environment and the natural world.





Location and Accessibility
A Campus of Islands
Situated in a city of islands defined by rivers, the project is part of a walkable, mixed-use neighborhood. The school’s location along the Dia Canal strengthens its identity and visibility. Pathways weave through the campus, offering a visually engaging 10-minute stroll to the facilities. The placement of the new buildings fills underutilized gaps, creating a central green hub that enhances the overall campus experience.




Dynamic Balconies and Serpentine Views
Curving balconies mimic the serpentine waterway, offering stunning views of the surrounding landscape. This design element not only maximizes the connection to nature but also provides a serene backdrop for educational activities.



Sustainability and Local Influence
Commitment to Green Design
Flansburgh Architects prioritized sustainability in every aspect of the design. The use of bamboo, cascading planters, and natural light reduces the environmental footprint while creating a healthy and inspiring learning environment. These features reflect a deep respect for local culture and ecology, blending modern architecture with traditional influences.






Enhancing Community Engagement
The project’s design fosters a sense of community through shared spaces like the library and gymnasium. These hubs promote interaction among students, staff, and the broader community, reinforcing the school’s role as an educational and cultural landmark.




The New Middle School and STEAM Design Center by Flansburgh Architects is more than just a pair of buildings—it is a testament to the transformative power of architecture in education. By integrating sustainability, functionality, and aesthetic harmony, this project sets a new benchmark for educational facilities worldwide.





All Photographs are works of Matthew Millman, Jonathan Mitchell
Popular Articles
Popular articles from the community
A Contemporary Take on Iranian Residential Architecture
A modern interior design in Mashhad that reinterprets brick, light, and spatial flow to create a warm, contemporary residential architecture.
An Miên Lumière Cafe by xưởng xép, Ho Chi Minh City, Vietnam
An industrial-inspired café where layered steel and warm light create a dynamic, immersive environment shaped by reflection, depth, and perception.
On the Brooks House by Monsoon Collective – A Contemporary Kerala Home Rooted in Tradition
Kerala home blending tradition and modernity with water-inspired design, brick architecture, courtyard planning, and sustainable rainwater harvesting strategies.
Inverted Architecture Installation by Studio Link-Arc: Exploring the Intersection of Architecture and Living Organisms
Inverted Architecture Installation by Studio Link-Arc blends mycelium, sustainability, inverted design, ecological cycles, and urban adaptive architecture in Shenzhen.
Similar Reads
You might also enjoy these articles
The Ken Roberts Memorial Delineation Competition (Krob)
As the most senior architectural drawing competition currently in operation anywhere in the world, it draws hundreds of entries each year, awarding the very best submissions in a series of medium-based categories.
Waterfront Redevelopment and Urban Revitalization in Mumbai: Forging a New Dawn for Darukhana
A transformative waterfront redevelopment project reimagining Darukhana’s shipbreaking heritage into an inclusive urban future.
OUT-OF-MAP: A Call for Postcards on Feminist Narratives of Public Space
Rhizoma Design and Research Lab invites artists, designers, architects, researchers, and students to reflect on how feminist perspectives can reshape public space. Selected works will be exhibited in Barcelona, October 2026. Submissions open until 15 April 2026.
Documentation Work on Buddhist Wooden Temple
Architectural syncretism and cultural hybridity: A comparative study of the Buddhist temples in Chattogram Hill tracks
Explore Architecture Competitions
Discover active competitions in this discipline
The International Standard for Design Portfolios
The Global Benchmark for Architecture Dissertation Awards
The Global Benchmark for Graduation Excellence
Challenge to reimagine the Iron Throne
Comments (0)
Please login or sign up to add comments
No comments yet. Be the first to comment!