Innovative Sustainable Homes in Indonesia: Unveiling Grande House by Patio Livity
Discover Grande House in Indonesia, a masterpiece of sustainable architecture by Patio Livity, blending eco-innovation with security and luxury living.
In the evolving landscape of residential architecture, the Grande House in Bandung, Indonesia, emerges as a pinnacle of sustainability and innovation. Designed by Patio Livity, this 1,456 square meter property sets a new standard for eco-friendly living, blending advanced green technologies with aesthetic elegance. This article explores the sustainable design principles and innovative features that define the Grande House.


A Vision for Sustainability
Embracing Natural Elements
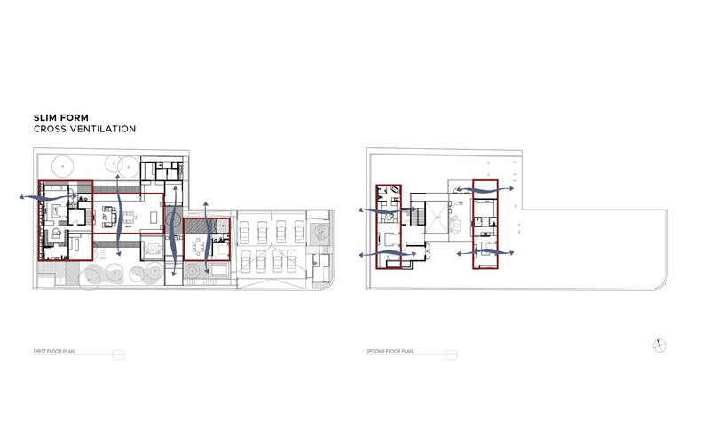
The Grande House stands as a testament to the harmonious balance between architectural innovation and the natural environment. With a 56-meter façade that welcomes sunlight and promotes natural ventilation, the design focuses on creating a comfortable living space that reduces energy consumption. The house's orientation and structure are meticulously planned to harness the south winds, enhancing the natural cooling effect throughout the property.



Sustainable Design Features
Innovative solutions like adjustable louvers, green walls, and strategic landscaping are integral to the house's design, offering shade and privacy while minimizing the urban heat island effect. A reflective pool adds to the cooling, further reducing the reliance on air conditioning. The use of renewable energy sources and a greywater recycling system for garden irrigation underscore the commitment to sustainability.





Security and Privacy in Design
A Multi-Layered Approach
Grande House addresses urban living challenges with a unique security strategy. A dual-fence system ensures privacy and security, integrating smart alarms and anti-climb features. This approach not only deters unauthorized access but also preserves the aesthetic appeal of the property.


Fire Safety and Evacuation
The layout of Grande House prioritizes the safety of its inhabitants. Each room is designed for quick evacuation, with direct access to outdoor spaces. This thoughtful planning ensures a swift and safe exit in emergency situations, demonstrating a comprehensive approach to security and safety.


Integrating with the Local Ecosystem
Enhancing Biodiversity
The project's landscaping strategy focuses on enhancing local biodiversity. By removing invasive species and introducing native flora, the Grande House contributes to the ecological balance of the area. The inclusion of bat and bird boxes further supports local wildlife, making the property a haven for biodiversity.


Supporting the Local Economy
By employing local craftsmen and using regionally sourced materials such as wood, natural stone, and travertine, Grande House not only sustains the local economy but also ensures that the construction process is environmentally responsible. This approach fosters a strong sense of community and regional identity.
Grande House by Patio Livity represents the future of sustainable living in Indonesia. Through its innovative use of technology, commitment to green building practices, and thoughtful integration with the local environment, the project offers a blueprint for eco-friendly homes that do not compromise on luxury or security. As the demand for sustainable living spaces grows, Grande House stands as a benchmark for innovative sustainable homes in Indonesia, offering insights and inspiration for future projects.







All photographs are work of KIE