Intergenerational Living Architecture: A New Paradigm in Housing
Exploring Beyond-the-family Kin Housing's innovative approach to Intergenerational Living Architecture in Madrid, fostering community and sustainability.
Intergenerational Living Architecture
In the heart of Madrid, Spain, a groundbreaking project titled Beyond-the-family Kin Housing by Ignacio G. Galán and OF Architects is redefining the concept of living spaces. This innovative project not only challenges traditional family housing norms but also introduces a new paradigm in architecture: Intergenerational Living Architecture. With a focus on empowering aging populations while fostering community connections across generations, Beyond-the-family Kin Housing emerges as a beacon of architectural innovation and social inclusivity.


The Vision Behind Beyond-the-family Kin Housing
Empowering Aging in Place
At its core, Intergenerational Living Architecture is about creating spaces that accommodate the needs and aspirations of all age groups, particularly the elderly. Beyond-the-family Kin Housing is designed as a platform that counters the isolation often experienced by older residents and the limitations of institutionalized residences. Through a network of infrastructures, the project facilitates diverse forms of care and interaction among residents, extending beyond the nuclear family model.

Design That Bridges Generations
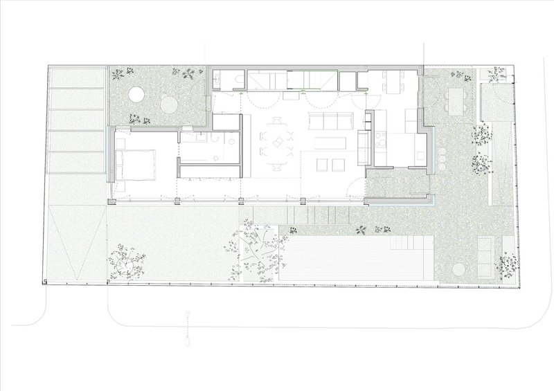
The architecture of Beyond-the-family Kin Housing is a testament to the project's commitment to fostering kinship and support across generations. The building is strategically divided into three floors, each offering different living arrangements that promote autonomy and interdependence. From spaces designed for aging couples with mobility challenges to areas intended for extended family visits and potential rental opportunities, the project encapsulates the essence of Intergenerational Living Architecture.


Sustainable and Socially Engaged Community Living
Cascading Terraces and Urban Ecology
A hallmark of the project is its cascading terraces, which enhance the house's integration with the neighborhood's ecological and social networks. These terraces facilitate socialization among residents and connect the project to the community, challenging the trend of secluded backyards. The inclusion of urban farms, a beehive, and gardening spaces underscores a commitment to sustainability and community engagement.


Architectural Strategies for Energy Efficiency
Beyond-the-family Kin Housing incorporates several formal and technological strategies aimed at maximizing energy efficiency and environmental quality. From cross ventilation facilitated by the building's complex volume to the utilization of solar panels and advanced heating and cooling systems, the project is designed to thrive without air conditioning, even in Madrid's extreme weather. This approach not only enhances the quality of life for its aging residents but also preserves resources for future generations.


A New Direction in Architecture
Beyond-the-family Kin Housing by Ignacio G. Galán and OF Architects is more than just a building; it's a pioneering movement in Intergenerational Living Architecture. By blending innovative design with sustainability and social inclusivity, the project sets a new standard for living spaces that cater to the needs of all generations. As we look to the future, projects like Beyond-the-family Kin Housing offer a glimpse into the potential of architecture to create more connected, supportive, and sustainable communities.


In embracing Intergenerational Living Architecture, we not only address the immediate needs of our aging population but also lay the groundwork for a future where architecture fosters genuine connections and care across all ages. Beyond-the-family Kin Housing stands as a shining example of this vision, heralding a new era in architectural design and community living.


All photographs are work of Imagen Subliminal (Miguel de Guzmán + Rocío Romero)
Popular Articles
Popular articles from the community
A Contemporary Take on Iranian Residential Architecture
A modern interior design in Mashhad that reinterprets brick, light, and spatial flow to create a warm, contemporary residential architecture.
Atelier Macri Concept Store Interior Design by CASE-REAL
Atelier Macri store features a "ko" counter, walnut wood details, cork displays, blending retail, gallery, and seamless customer experiences.
Inverted Architecture Installation by Studio Link-Arc: Exploring the Intersection of Architecture and Living Organisms
Inverted Architecture Installation by Studio Link-Arc blends mycelium, sustainability, inverted design, ecological cycles, and urban adaptive architecture in Shenzhen.
On the Brooks House by Monsoon Collective – A Contemporary Kerala Home Rooted in Tradition
Kerala home blending tradition and modernity with water-inspired design, brick architecture, courtyard planning, and sustainable rainwater harvesting strategies.
Similar Reads
You might also enjoy these articles
Top 15 Architecture Competitions to Enter in 2026
From student-friendly idea competitions to prestigious international awards, here are the best architecture competitions open for entries in 2026. Updated regularly.
DIY & Engineering in Computational Design : Enter the BeeGraphy Design Awards
Showcase Your Creativity with Computational Design and Open Source Projects

Innovative Design Solutions: Award-Winning Projects from Recent Architecture Competitions
Exploring award-winning architectural projects shaping the future of design, sustainability, and community.
Explore Architecture Competitions
Discover active competitions in this discipline
The International Standard for Design Portfolios
The Global Benchmark for Architecture Dissertation Awards
The Global Benchmark for Graduation Excellence
Challenge to design mud housing for contemporary communities
Comments (0)
Please login or sign up to add comments
No comments yet. Be the first to comment!