International Guest House at IIT Hyderabad
A Tokyo-Indian team built a 30,123 m² guest house at IIT Hyderabad, layering concrete, red columns and stepped balconies around shaded courtyards.
The Indian Institute of Technology Hyderabad sits on a flat, hot piece of land in the new town of Kandi, west of the city. The campus is one of the new generation of IITs, founded in 2008, and it has been growing steadily ever since. The International Guest House, completed in 2022 by the IITH Campus Design Team of the University of Tokyo with NIHON SEKKEI and APL design workshop, is one of the larger and more interesting buildings on the campus. At 30,123 square metres, it is also one of the few examples of a Japanese-led design that has been built at full scale in India.
The brief was to provide accommodation, dining, and meeting facilities for visiting researchers, faculty, and conference attendees. The lead architect on the schematic side was Hidetoshi Ohno, working with a team that has been involved in the master plan and several buildings on the IITH campus over the years. The result is a building that draws on Japanese campus thinking, on Hyderabad's climate, and on a particular tradition of muscular concrete-and-colour modernism that India has been producing since the 1960s.
A Building That Reads as a Composition



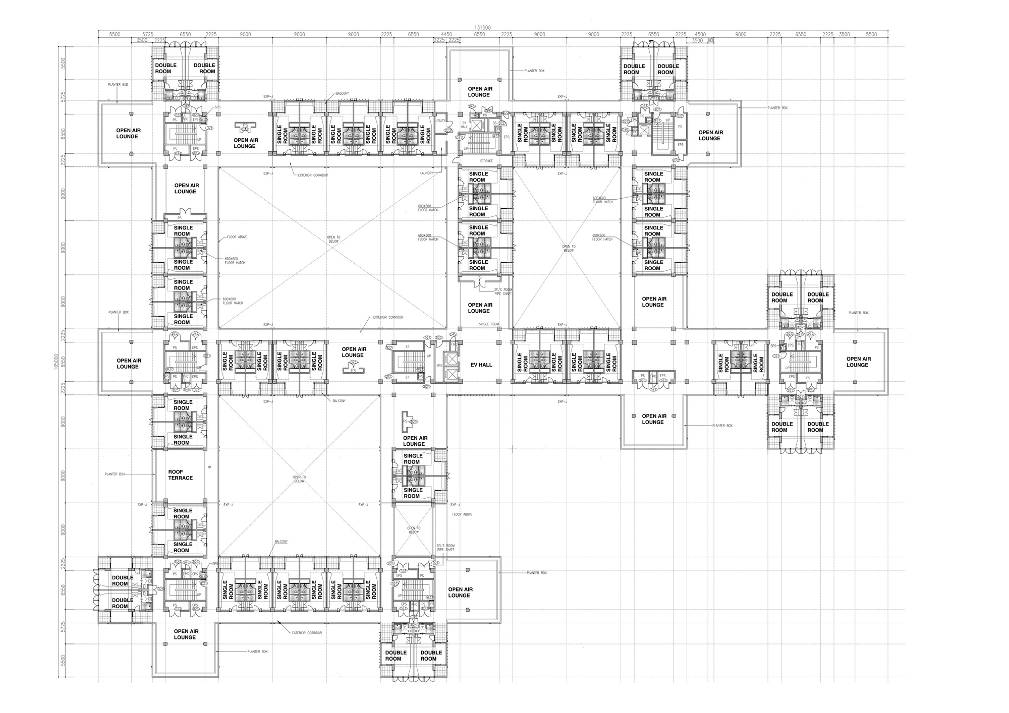
From the air, the guest house resolves into a clear orthogonal plan: a series of bar buildings arranged around courtyards, with a long ornamental lake to one side. The geometry is calm and rational. There is no attempt at a hero form. Each wing carries the same architectural language so that the project reads as a single composition rather than a collection of objects.
This is the right approach for an institutional brief at this scale. A 30,000 square metre guest house could easily have become a complex of disparate buildings stitched together. The architects chose discipline instead. The plan is read most clearly from the top-down aerial: a few rectangular bars, a few courtyards, a lake, and the surrounding parking. Nothing wasted.
Concrete and Red



The material palette is the project's signature. The structure is exposed concrete, with deep horizontal slabs and brise-soleil screens cast directly on the formwork. Set against this concrete, a saturated terracotta red runs across the underside of the slabs, the structural columns at the entrances, and the inner walls of the circulation balconies.
The colour pairing is unusually confident. Red and grey concrete is a combination most architects avoid because it is hard to control, but here the proportion of red is held tightly and the concrete carries the weight. The result is a building that is recognisably modernist in lineage, with clear echoes of post-independence Indian institutional architecture, but tuned to a contemporary sense of restraint.

Stepped Section, Stepped Light


Seen from the lake, the building reveals its section. Each floor steps slightly outward from the one below, so the upper levels project over the lower ones and create deep horizontal shadows along the elevation. This is climate architecture: in Hyderabad, where summer temperatures regularly exceed 40 degrees, deep shade is the most valuable thing a building can offer.
The stepped section also gives the building its visual rhythm. Each balcony casts a hard line on the one below, and the whole elevation reads as a stack of horizontal layers. A flat curtain wall would have been faster to build and far less interesting. The architects clearly believed the section was worth the extra labour.
Courtyards as the Real Public Rooms



Inside the perimeter wings, the project opens into a sequence of landscaped courtyards. These are the real public rooms of the building. Bamboo and palms break up the harsh midday light. Outdoor tables and chairs sit on the lawn. Covered colonnades along the inner edges connect the wings without forcing visitors back into corridors.
This is a Japanese instinct applied to an Indian climate. Japanese campus architecture has always treated the outdoor space between buildings as architecture, not as residual landscape. Translated to Hyderabad, that instinct produces courtyards that are usable for nine months of the year and shaded enough to be tolerable for the other three.
The Entrance and the Porte Cochère


The entrance is handled with a deep red porte cochère: concrete columns wrapped in colour, a circular planter at the centre, a clear datum line for vehicles dropping off guests. This is the moment the project's identity is loudest. The colour signals arrival without needing signage.
Around the entrance, the brise-soleil screens become smaller and tighter, almost decorative. A red wall at the side absorbs the warm afternoon light and bounces it through small punched openings in the screen. These are the kinds of details that take more time than they should and that visitors notice without being able to say why.
Inside: Lobby, Dining, Circulation



The lobby is a double-height room with a terrazzo floor, sofas around the perimeter, and full-height glazing on two sides. From the seating, you look directly into the courtyard. This is what a hotel-style guest house lobby should be: a buffer between the city and the room, with a clear view of the building's better self.
The dining hall is the project's warmest interior. A timber-slatted ceiling brings a softer scale to a large room, and the red columns from the exterior continue inside, holding up the ceiling as if the building were continuing without interruption. The light is warm, the ceiling absorbs sound, and the proportions feel like a serious dining hall rather than an institutional canteen.

Circulation as Architecture

The internal circulation is treated as a designed condition rather than a service afterthought. The access balconies are deep enough to be inhabited as well as walked through. The inner walls are red and the soffits above are dark, which makes them visually quiet rather than blank. People standing on the upper balconies can look down at the courtyard and across at each other.
This is the kind of design move that separates a building people enjoy living in from a building they merely tolerate. Circulation is the part of any large guest house that visitors experience the most. Treating it as architecture, rather than as plumbing for moving bodies through a plan, is a small decision with a large impact.
Drawings and Sketch



The plans and the wall section confirm the building's discipline. The orthogonal grid, the courtyards, and the deep stepped facade all show up clearly in the drawings. The hand-drawn sketch by Hidetoshi Ohno is a useful reminder that the project began as a quick study of the section and the layered shade strategy, not as a render.
Why This Project Matters
Indian campus architecture has been quietly excellent for decades, from the IITs of the 1960s and 70s to the more recent generation of new institutions in Hyderabad, Gandhinagar, Mandi, and elsewhere. The International Guest House at IIT Hyderabad joins that tradition rather than disrupting it. It is muscular, climate-responsive, and clearly part of a campus rather than a single object on a plot.
The lessons are useful for anyone working on institutional architecture in a hot climate: design the section before the elevation, treat the courtyards as the real public space, choose a material palette that ages well in the sun and the monsoon, and use colour with discipline. The Japanese-Indian collaboration here is also worth noting. Cross-cultural design work usually produces compromise. Occasionally, as in this case, it produces a building that is better than what either side would have built alone.
About the Studios
Share Your Own Work on uni.xyz
If you are working on educational architecture, campus design, or institutional buildings in hot climates, uni.xyz is a place to publish your work, find collaborators, and enter design competitions.
Project credits: International Guest House, IIT Hyderabad. Hyderabad, India. 30,123 m². Completed 2022. Schematic design: IITH Campus Design Team of the University of Tokyo (Hidetoshi Ohno, Design Director). Schematic support and design development: NIHON SEKKEI, APL design workshop. Photographs: Masaki Hamada (kkpo), Hidetoshi Ohno.
Popular Articles
Popular articles from the community
Filtering Space: A Gradual Spatial Experience
From urban intensity to spatial calm.
Free Architecture Competitions You Can Enter Right Now
No entry fees, real prizes. Here are the best free architecture competitions open for submissions in 2026.
Split House: A Compact Urban Home Blending Privacy, Light, and Flexible Living in Japan
Compact Japanese home featuring DOMA space, flexible café potential, passive lighting, privacy zoning, and sustainable urban living design.
Similar Reads
You might also enjoy these articles
20 Most Popular Commercial Architecture Projects of 2025
From sustainable market concepts to heritage factories, the commercial buildings and proposals that drew the most attention on uni.xyz this year.
Magic Box Office Barcelona Innovative Sustainable Workplace Design
Innovative sustainable office design featuring triangular form, ceramic façade, flexible interiors, natural light optimization, and creative workspace for modern work culture.
Mantiqueira House by SysHaus and M Magalhães Estúdio
A linear modular house embedded in Serra da Mantiqueira, integrating panoramic views, sustainable prefabrication, minimal terrain impact, and contemporary interiors.
Guardia di Finanza Office Building by DEMOGO
Stepped institutional office in Bologna integrates terraces, red-toned facade, and linear staircase, reconnecting military complex with surrounding urban landscape.
Explore Architecture Competitions
Discover active competitions in this discipline
The International Standard for Design Portfolios
The Global Benchmark for Architecture Dissertation Awards
The Global Benchmark for Graduation Excellence
Challenge to design locus for the upliftment of human rights
Comments (0)
Please login or sign up to add comments
No comments yet. Be the first to comment!