Istituto Marangoni Design School: A Landmark of Paris Design School Architecture by Clément Blanchet Architecture
A bold fusion of heritage and innovation, this Paris design school redefines architectural space for creative learning and collaboration.
Transforming Heritage: A New Chapter in Paris Design School Architecture
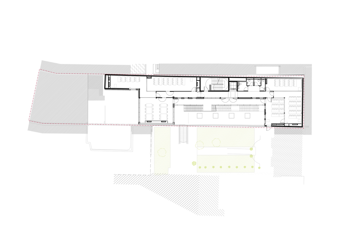
In the 16th arrondissement of Paris, where rue de Lubeck meets rue Boissière, Clément Blanchet Architecture has reshaped an emblematic 19th-century structure into a contemporary beacon of educational design: the new campus of the Istituto Marangoni Design School. Encompassing 1500 square meters, the intervention transforms the historic into the modern, anchoring the project in a narrative of spatial innovation that speaks directly to the future of Paris design school architecture.


The architectural gesture respects legal parameters for open space and sightlines by introducing a U-shaped extension that frames a newly crafted courtyard. This strategic configuration creates dialogue between old and new, placing the school in a setting that invites both introspection and expression. The courtyard, once a secondary urban void, is now a landscaped heart of the campus—an arena for interaction, connection, and creative display.


Architectural Dialogue Between Old and New
What distinguishes this project within the landscape of Parisian educational architecture is its sensitivity to urban context. The design doesn’t impose; it converses. Concrete volumes and a rhythm of full-height glass and textured corrugated steel panels shape the façade. Varying shades of grey and tactile textures provide subtle sophistication, creating a visual cadence that echoes both the surrounding urban grain and the academic rigor within.


Natural light flows generously into the interiors through expansive glass panels, ensuring ventilation and transparency, essential qualities in both educational and architectural environments. The interplay of opacity and translucency, heaviness and lightness, builds a sense of architectural narrative that supports the school's identity as a crucible for creativity.


A Campus as an Ecosystem of Creativity
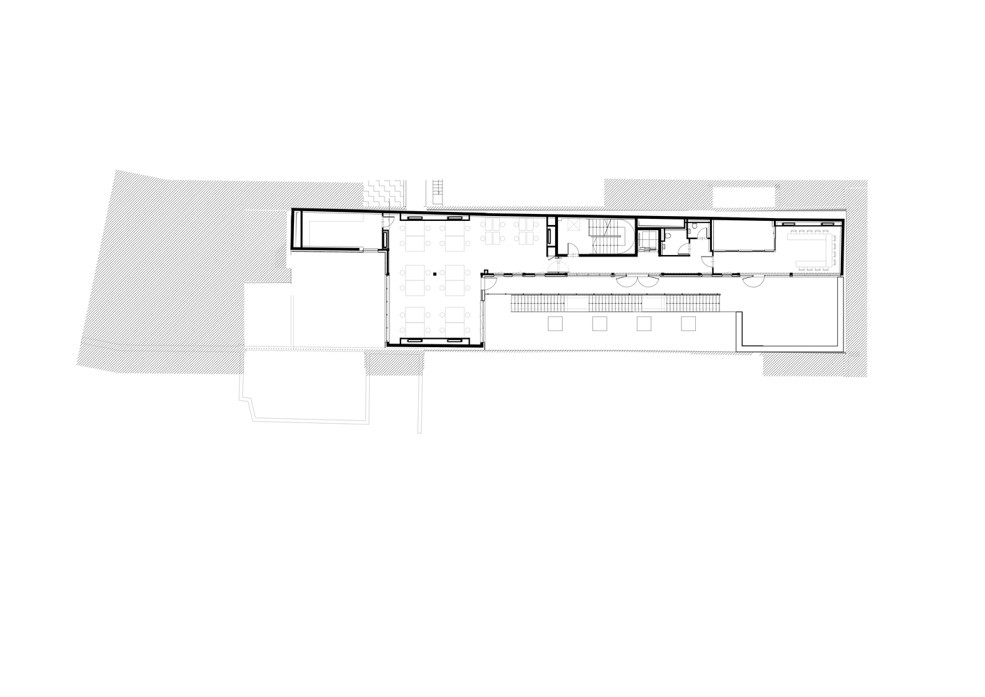
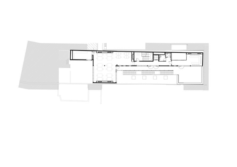
More than a collection of classrooms, the Istituto Marangoni campus is conceived as a dynamic and multi-layered environment where design, art, and fashion converge. A sculptural staircase—projected toward the garden—becomes the vertical spine of the project, binding the levels into a fluid sequence. This gesture is more than circulation; it is a spatial experience of transition and transformation. It fosters movement, visual connections, and encounters—key to a design school’s creative ethos.



The rooftop design continues this spatial choreography, offering a blend of green roof, terraces, and sloped roofs that provide diverse experiential zones. Each level of the building is therefore in conversation with the city, the garden, and the users—students, professors, and visiting artists alike.


A Living Framework for Expression
The project doesn’t treat architecture as static. Rather, it frames it as a living infrastructure, adaptable to the evolving dynamics of creative education. External walkways serve as curated exhibition spaces. The central courtyard becomes an open-air gallery. The staircase doubles as an informal amphitheater for presentations, performance, or pause.



This synergy between movement and stillness, structure and spontaneity, allows the school to serve not only as a learning environment but also as a cultural platform. Fashion shows, installations, and design critiques are seamlessly embedded into the very fabric of the architecture. Every corridor, corner, and threshold becomes an opportunity for showcasing student work, stimulating dialogue, and fostering a strong sense of community.


Reimagining Educational Architecture in Paris
The Istituto Marangoni Design School is a bold statement in the evolution of Paris design school architecture. It brings together historical respect and contemporary experimentation, providing a framework that is both rooted and visionary. The project reveals how adaptive reuse—when approached with clarity and creativity—can generate new possibilities for learning, making, and being.

As Paris continues to affirm its global role as a hub of fashion and design, this campus stands not merely as a backdrop, but as an active participant. With its layered spatial logic and artistic sensibility, it invites exploration and provokes imagination—qualities that define not just the school, but the city it inhabits.

All photographs are works of Frans Parthesius
Popular Articles
Popular articles from the community
HCCH Studio Wraps a Shanghai High-Rise Office in Curved Walls of Translucent Glass
A 1,000 square meter fit-out in Lujiazui replaces the typical tech-office palette with layered glass, micro-cement, and quiet rigor.
20 Most Popular Office Building Projects of 2025
From biophilic workspaces in India to net-positive energy offices in New Delhi, 20 office building projects that defined architecture in 2025.
YOAP Architects Round a Corner in Yeongcheon with a Cylindrical Community Hub
A 197-square-meter brick and ribbed-clad tower turns a forgotten alley corner in South Korea into a public garden with a low threshold.
RDTH architekti Rips Out Nearly Every Wall in a Prague Apartment and Replaces Them with Furniture
A 101-square-meter post-war flat in Prague trades rigid partitions for a single rotated furniture block, curtains, and glass concrete.
Similar Reads
You might also enjoy these articles
CSADI Carves a Jade Blade into the Qinling Mountains for China's First Ecology Museum
A 43,788 square meter terraced museum in Shangluo draws its form from a Xia Dynasty artifact and steps down toward the valley below.
Ippolito Fleitz Group Identity Architects Turn Eight Floors in Shanghai into a Vertical Creative City
Publicis Groupe's new headquarters in Xintiandi reimagines the office as a courtyard-driven urban landscape stacked across eight floors.
Díaz Webster Arquitectura Carves Light and Air into a Compact Zapopan House
A 237-square-meter residence in western Zapopan uses courtyards and double-height voids to dissolve the boundary between interior and garden.
BAST Slots a Four-Story Glass House into a Narrow Gap Between Toulouse Townhouses
In the dense Bonnefoy district, a stepped infill building merges home and office while preserving a majestic hackberry tree.
Explore Architecture Competitions
Discover active competitions in this discipline
The International Standard for Design Portfolios
The Global Benchmark for Architecture Dissertation Awards
The Global Benchmark for Graduation Excellence
Challenge to reimagine the Iron Throne
Comments (0)
Please login or sign up to add comments
No comments yet. Be the first to comment!