Italian Villa Renovation Architecture: Villa Il Bel Canto by CLAB Architettura
A refined Italian villa renovation blending historical elements with contemporary interiors by CLAB Architettura in Cavaion Veronese, Italy.
A Contemporary Restoration Rooted in History
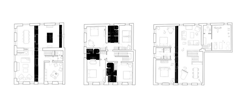
Nestled in the verdant hills of Cavaion Veronese, Italy, Villa Il Bel Canto is a refined example of Italian villa renovation architecture, where past and present meet in a thoughtful dialogue. Designed by CLAB Architettura, this 500-square-meter family home lies at the heart of a rural estate rich with vineyards, olive groves, and woodlands—its main nucleus dating back to the mid-18th century. The project reinterprets the historical character of the villa with a contemporary vision, focusing on the interiors while preserving the building’s authentic soul.





Embracing Architectural Heritage with Subtle Interventions
The renovation centers on the villa’s main residence, where CLAB Architettura draws from the building’s original typologies—arched thresholds, porch corridors, and courtyard spaces. Rather than dramatically altering the structure, the architects embed their interventions as a form of quiet enhancement. Two newly introduced design elements—one on the ground floor and another on the top level—anchor the reconfigured interiors. These custom-crafted features serve as both sculptural and functional forms, acting as a bar, pantry, wardrobe, and bookshelf while framing views and creating visual continuity between rooms.





Materials and Landscape in Harmony
The material palette is warm and grounded, composed of natural oak wood, deep red tones, and polished resin flooring that subtly contrasts and connects the renovated areas. Copper cladding wraps the central kitchen island, creating a focal point that radiates warmth and sophistication. These new materials establish a dialogue with the villa’s existing features—such as the marble fireplaces and traditional terracotta floors—ensuring continuity across eras. By harmonizing with the surrounding vineyards and olive fields, the interiors respond to the rhythm of the seasons and the tactile essence of countryside living.





Interior Design as Cultural Expression
At its core, Villa Il Bel Canto is a space for family, art, and conviviality. The design curates and showcases the family’s collection of artworks, prints, and objects within architectural insertions that enhance their presence. Every detail of the renovation balances the functional with the poetic: open shelving blends storage with display, deep hues contrast natural daylight, and every surface is an invitation to experience the home’s layered story. These gestures reflect a broader philosophy—where living is intertwined with beauty, memory, and meaning.





Reclaiming the Soul of Italian Domestic Architecture
This intervention by CLAB Architettura exemplifies how Italian villa renovation architecture can preserve historical context while bringing spaces into contemporary use. Rather than erasing time, the design makes time visible—revealing the villa’s evolution as a lived-in, adaptive, and expressive home. The result is a nuanced composition of textures, volumes, and functions that honors the past and supports modern life.






A Model for Timeless Renovation
Villa Il Bel Canto offers more than aesthetic charm—it sets a precedent for future countryside restorations. It showcases how architects can engage with tradition without mimicry, using subtlety and craftsmanship to shape new spatial narratives. This is not only a renovation but a revival—a return to the essence of Italian domesticity, reimagined through contemporary design thinking.





All Photographs are works of Andrea Ceriani
Popular Articles
Popular articles from the community
Solar Steam: A Climate-Responsive Architecture That Redefines the Monument
A climate-responsive memorial architecture that transforms heat, decay, and time into a living system reflecting humanity’s ecological impact.
Atelier Macri Concept Store Interior Design by CASE-REAL
Atelier Macri store features a "ko" counter, walnut wood details, cork displays, blending retail, gallery, and seamless customer experiences.
Inverted Architecture Installation by Studio Link-Arc: Exploring the Intersection of Architecture and Living Organisms
Inverted Architecture Installation by Studio Link-Arc blends mycelium, sustainability, inverted design, ecological cycles, and urban adaptive architecture in Shenzhen.
Similar Reads
You might also enjoy these articles
Free Architecture Competitions You Can Enter Right Now
No entry fees, real prizes. Here are the best free architecture competitions open for submissions in 2026.
Top 15 Architecture Competitions to Enter in 2026
From student-friendly idea competitions to prestigious international awards, here are the best architecture competitions open for entries in 2026. Updated regularly.
DIY & Engineering in Computational Design : Enter the BeeGraphy Design Awards
Showcase Your Creativity with Computational Design and Open Source Projects

Innovative Design Solutions: Award-Winning Projects from Recent Architecture Competitions
Exploring award-winning architectural projects shaping the future of design, sustainability, and community.
Explore Architecture Competitions
Discover active competitions in this discipline
The International Standard for Design Portfolios
The Global Benchmark for Architecture Dissertation Awards
The Global Benchmark for Graduation Excellence
Challenge to reimagine the Iron Throne
Comments (0)
Please login or sign up to add comments
No comments yet. Be the first to comment!