JA House: A Modern Tropical House Design That Embraces Climate and Context
JA House exemplifies modern tropical house design by integrating passive cooling, natural ventilation, and contextual aesthetics for climate-responsive living.
Introduction to Modern Tropical House Design
Modern tropical house design is an architectural approach that harmonizes contemporary aesthetics with the climatic conditions of tropical regions. JA House, designed by STUDIOKAS in Indonesia, is an exemplary residence that seamlessly integrates passive design strategies, spatial transparency, and natural ventilation to create a comfortable and energy-efficient home. Positioned as a sanctuary for a young family, JA House transforms its environmental challenges into design opportunities, setting a benchmark for sustainable and climate-responsive living.



Climate-Responsive Architecture: Embracing Nature and Comfort
The architectural language of JA House is deeply influenced by its tropical context, where heat, humidity, and monsoon winds play a significant role in shaping the built environment. The house is oriented to mitigate direct solar heat gain, employing strategic massing and shading elements to maintain indoor comfort. The western façade, which receives intense afternoon sunlight, is protected by a steeply sloped roof with a wide overhang, effectively shielding interior spaces from excessive heat.



A large existing tree at the front of the property serves as a natural cooling element, creating a shaded reception terrace that enhances passive cooling. The design strategically incorporates cross-ventilation through well-placed openings, allowing warm air to escape while ensuring a continuous flow of fresh air throughout the home.


Spatial Organization: A Balance of Openness and Privacy
JA House is designed as an interconnected composition of four spatial zones, separated by a central void that facilitates airflow and natural light distribution. This core element functions as a light well, channeling daylight deep into the home while promoting stack ventilation to expel warm air. The transparent spatial arrangement encourages interaction among family members while maintaining functional separation for privacy and comfort.



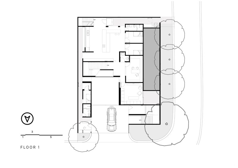
On the ground floor, an open-plan living area seamlessly transitions into the office and service zones, with dedicated access points for privacy. The dining area and kitchen, positioned at the heart of the home, open onto a wooden terrace that extends towards the swimming pool, creating a fluid indoor-outdoor connection. A split-level design subtly differentiates spaces, offering varied ceiling heights that enhance the perception of openness and intimacy within different areas.



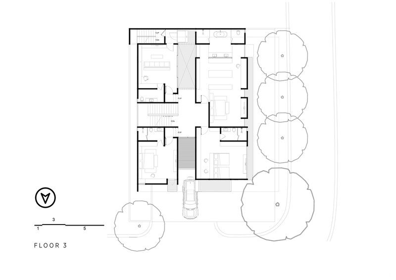
The upper floors are designed to accommodate private functions while maintaining visual and spatial connectivity. The second floor houses bedrooms and family spaces, each benefiting from natural ventilation and well-calibrated daylighting. The third floor, which includes a multifunctional room and master suite, is designed with wide windows that capture panoramic sunset views while being shaded by deep roof eaves, preventing glare and overheating.


Passive Design Strategies and Sustainable Features
Modern tropical house design prioritizes passive cooling strategies to reduce reliance on artificial climate control. JA House integrates a series of environmentally responsive elements that optimize comfort while minimizing energy consumption.

A primary feature is the roof’s strategically placed void, which allows natural light to filter down into the central core, reducing the need for artificial lighting. The open-plan layout and cross-ventilation strategies enhance indoor air quality, creating a naturally comfortable environment without excessive energy use.

The use of flexible panel dividers blurs the boundaries between interior and exterior spaces, allowing occupants to adapt their living environment according to climatic conditions. The combination of perforated walls and operable partitions reinforces the house’s ability to breathe, embodying the essence of vernacular tropical architecture while maintaining a contemporary aesthetic.

Redefining Luxury Through Contextual Design
JA House challenges conventional perceptions of luxury by prioritizing contextual sensitivity and environmental responsiveness over excessive ornamentation. The material palette emphasizes natural elements such as wood and stone, grounding the design in its tropical setting. The interplay between open and enclosed spaces fosters a dynamic living experience, where the house adapts to changing seasons and daily rhythms.

By integrating nature into its design, JA House transforms into a living entity that responds to its surroundings rather than imposing upon them. This approach aligns with the principles of modern tropical house design, where the goal is to create a sustainable, climate-conscious home that enhances well-being while celebrating the beauty of its environment.

A Model for Climate-Responsive Living
STUDIOKAS’s JA House exemplifies the principles of modern tropical house design, offering a refined balance between aesthetics, functionality, and sustainability. Through passive cooling strategies, thoughtful spatial planning, and an intrinsic connection to nature, the house sets a new standard for contemporary tropical living. As climate change continues to influence architectural priorities, JA House serves as an inspiring model for future homes in tropical regions, demonstrating how design can be both beautiful and environmentally responsible.


All photographs are works of Mario Wibowo Photography Studio
Popular Articles
Popular articles from the community
Free Architecture Competitions You Can Enter Right Now
No entry fees, real prizes. Here are the best free architecture competitions open for submissions in 2026.
The Ken Roberts Memorial Delineation Competition (Krob)
As the most senior architectural drawing competition currently in operation anywhere in the world, it draws hundreds of entries each year, awarding the very best submissions in a series of medium-based categories.
Split House: A Compact Urban Home Blending Privacy, Light, and Flexible Living in Japan
Compact Japanese home featuring DOMA space, flexible café potential, passive lighting, privacy zoning, and sustainable urban living design.
Similar Reads
You might also enjoy these articles
The Ken Roberts Memorial Delineation Competition (Krob)
As the most senior architectural drawing competition currently in operation anywhere in the world, it draws hundreds of entries each year, awarding the very best submissions in a series of medium-based categories.
Waterfront Redevelopment and Urban Revitalization in Mumbai: Forging a New Dawn for Darukhana
A transformative waterfront redevelopment project reimagining Darukhana’s shipbreaking heritage into an inclusive urban future.
OUT-OF-MAP: A Call for Postcards on Feminist Narratives of Public Space
Rhizoma Design and Research Lab invites artists, designers, architects, researchers, and students to reflect on how feminist perspectives can reshape public space. Selected works will be exhibited in Barcelona, October 2026. Submissions open until 15 April 2026.
Documentation Work on Buddhist Wooden Temple
Architectural syncretism and cultural hybridity: A comparative study of the Buddhist temples in Chattogram Hill tracks
Explore Architecture Competitions
Discover active competitions in this discipline
The International Standard for Design Portfolios
The Global Benchmark for Architecture Dissertation Awards
The Global Benchmark for Graduation Excellence
Challenge to reimagine the Iron Throne
Comments (0)
Please login or sign up to add comments
No comments yet. Be the first to comment!