JAX Creative District Public Space Design: A Cultural Hub in DiriyahJAX Creative District Public Space Design: A Cultural Hub in Diriyah

JAX Creative District Public Space Design: A Cultural Hub in Diriyah

UNI Editorial
UNI Editorial published Story under Architecture on

The JAX Creative District in Diriyah, Saudi Arabia, represents a transformative milestone in urban design and cultural reinvention. Initially a neglected industrial zone, this area has been reimagined into a vibrant hub for creativity and public engagement. Designed by BRICKLAB in collaboration with other creative entities, the district integrates public plazas, artist spaces, and adaptive warehouses, fostering a community-driven atmosphere that celebrates Saudi Arabia’s cultural heritage.

Article image
Article image
Article image
Article image

Origins of JAX Creative District

In 2015, a group of visionary artists, led by Ahmed Mater, sought to break away from conventional cultural norms and establish a space for creative innovation. They identified a declining industrial zone in Diriyah, the historical heart of the Saudi state, as the ideal location. This area, located along Wadi Hanifa—a fertile valley in Central Arabia—offered both historical significance and strategic potential.

Article image
Article image
Article image
Article image

With initiatives like the Diriyah Biennale Foundation, SAMOCA, and Noor Riyadh, JAX has evolved into a central hub for the creative industries, hosting art events, exhibitions, and subsidized workspaces for artists and designers.

Article image
Article image
Article image
Article image

Design Principles and Approach

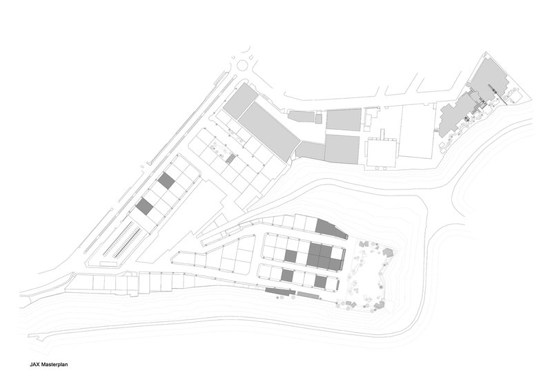
The design vision for the JAX Public Realm, led by BRICKLAB since 2021, centers on principles of rehabilitation and adaptive reuse. The design guidelines developed for the district prioritize ecological and cultural continuity, reflecting the natural landscape of Wadi Hanifa and Diriyah’s industrial history.

  • Materiality and Color Palette: The architectural language incorporates industrial materials and muted tones that harmonize with the site’s existing structures. Mindful paving and thoughtful landscaping integrate seamlessly into the area.
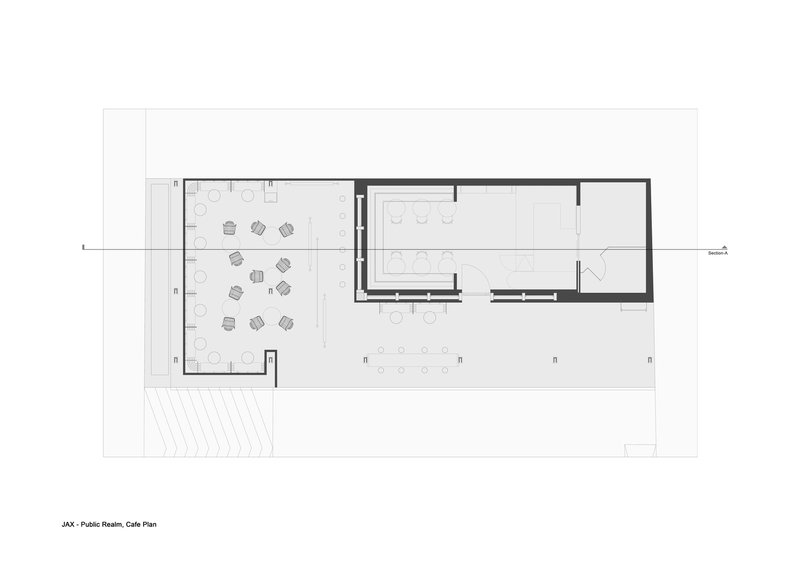
  • Urban Interventions: The project transforms the utilitarian grid of warehouses into pedestrian-friendly thoroughfares, public plazas, and landscaped nodes of activity. These spaces foster public engagement and serve as venues for artistic interventions, markets, and cafes.
Article image
Article image
Article image
Article image
Article image
Article image

Ecological Integration

The integration of native flora, curated from Wadi Hanifa, establishes ecological continuity and provides a natural respite from Diriyah’s hot climate. These green spaces are critical to enhancing the district's livability, creating shaded pockets for gathering and reflection.

Article image
Article image
Article image
Article image
Article image

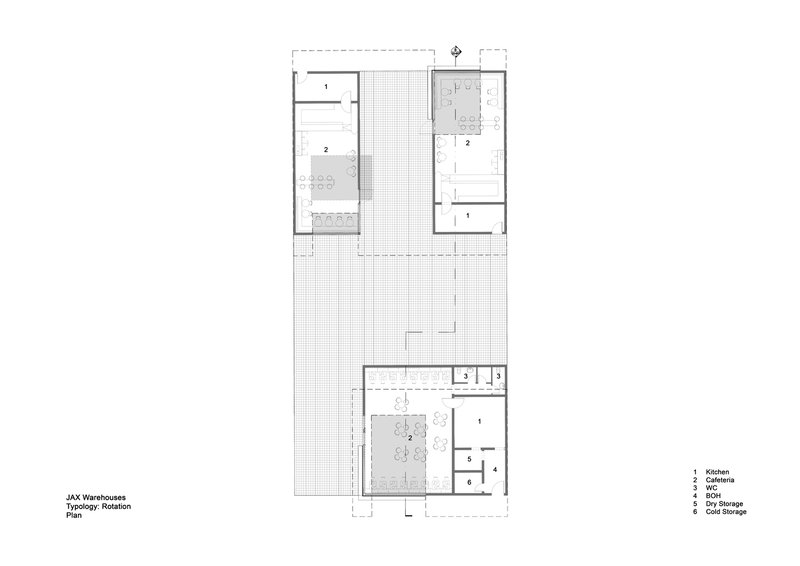
Adaptive Architectural Typologies

The architectural interventions on existing warehouses demonstrate a subtle yet impactful approach:

  • Rotations: Some warehouses were rotated to create new pathways and thoroughfares, enhancing pedestrian connectivity.
  • Facade Alterations: Portions of facades were hollowed out to create visual and physical connections between the street and interior spaces.
  • Scaled-down Sheds: New structures were introduced as cafes and small shops, animating the streetscape with commercial activity.

This flexible and minimalistic design approach ensures the district remains a blank canvas for the creative community to adapt and evolve over time.

Article image
Article image
Article image
Article image
Article image

A Thriving Cultural Ecosystem

Since its transformation, the JAX Creative District has become a bustling neighborhood in Riyadh, bridging the gap between fragmented creative networks. By merging public spaces, art, and design, it offers an inclusive environment where culture and community flourish. Seasonal events, exhibitions, and temporary installations continue to draw people to the district, reinforcing its role as a cultural epicenter.

Article image
Article image
Article image
Article image
Article image

The JAX Creative District exemplifies the power of adaptive reuse and thoughtful urban design in revitalizing industrial spaces. By integrating cultural heritage, ecological sensitivity, and creative innovation, BRICKLAB has established a public realm that celebrates Saudi Arabia’s evolving identity while fostering a collaborative, thriving community.

Article image
Article image
Article image
Article image

All Photographs are work of Laurian Ghinitoiu

UNI Editorial

UNI Editorial

Where architecture meets innovation, through curated news, insights, and reviews from around the globe.

Share your ideas with the world

Share your ideas with the world

Write about your design process, research, or opinions. Your voice matters in the architecture community.

Comments (0)

No comments yet. Be the first to comment!

Similar Reads

You might also enjoy these articles

publishedStory1 day ago
The Ken Roberts Memorial Delineation Competition (Krob)
publishedStory3 weeks ago
Waterfront Redevelopment and Urban Revitalization in Mumbai: Forging a New Dawn for Darukhana
publishedStory3 weeks ago
OUT-OF-MAP: A Call for Postcards on Feminist Narratives of Public Space
publishedStory1 month ago
Documentation Work on Buddhist Wooden  Temple

Explore Architecture Competitions

Discover active competitions in this discipline

UNI Editorial
Search in