Kadans Co-housing: Innovating Co-Housing Community Design in Wijnegem
The article discusses Kadans Co-housing by B-architecten, focusing on its integration of historic elements with modern co-housing community design in Wijnegem.
Kadans Co-housing in Wijnegem, Belgium, designed by B-architecten, exemplifies modern co-housing community design by integrating private living spaces with shared community facilities. Situated along the scenic Albert Canal and close to Antwerp, this project revitalizes a historic site while fostering a vibrant community lifestyle.



Historical Context and Site Integration
Embracing Local History
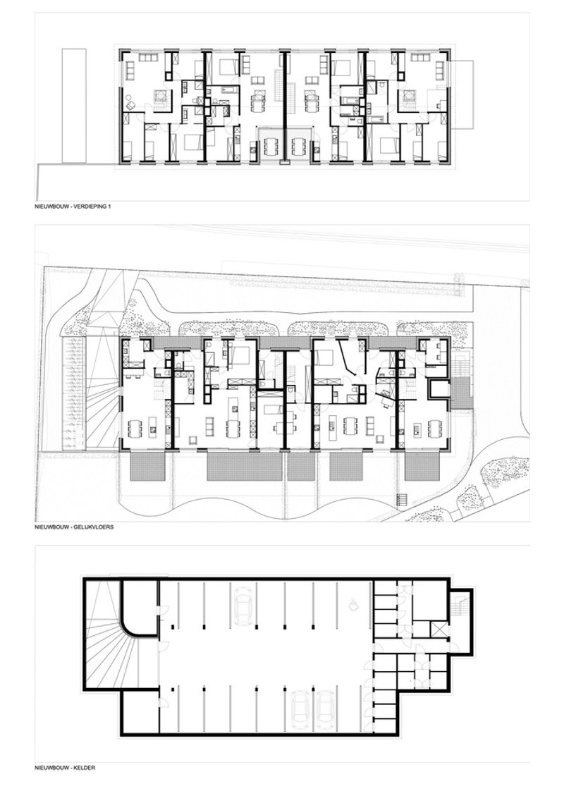
Located on a historic site, formerly the Royal Antwerp Rowing Club and adjacent to the protected Wijnegempark, Kadans Co-housing respects and incorporates the historical elements of its surroundings. The design team meticulously transformed the existing farmhouse into a central part of the co-housing scheme, preserving its architectural heritage.



Strategic Site Placement
The co-housing complex is strategically placed between significant local landmarks, including the Jan Vlemincktoren and the contemporary Kanaalsite of Axel Vervoordt, creating a harmonious balance between old and new architectural elements.



Architectural Features and Sustainable Design
Blending Old and New Structures
The project combines the refurbished farmhouse with a new construction of six dwellings. Both areas are designed to enhance the co-housing experience, featuring private terraces and gardens that transition into communal living spaces.



Sustainable Amenities
Kadans Co-housing is equipped with eco-friendly features such as a communal underground car park, bicycle storage annexes, an outdoor swimming pool, and a wadi for rainwater infiltration. These elements underscore the community’s commitment to sustainability and environmental responsibility.



Community Living and Shared Spaces
Enhancing Social Interaction
At the heart of Kadans Co-housing is the communal pavilion in the garden, designed to serve as a social hub for residents. This space, coupled with lush green footpaths and additional tree plantings, fosters a strong sense of community and encourages social interaction among residents.




Private and Public Harmony
Each unit is crafted to ensure privacy while promoting community engagement. The residences are designed with direct access to shared gardens, blending private and public spaces seamlessly and enhancing the communal living experience.




A Model for Future Co-Housing Projects
Kadans Co-housing by B-architecten represents a significant advancement in co-housing community design, providing a blueprint for future developments aiming to combine historical preservation with modern community living. This project not only revitalizes a historic site but also creates a sustainable, community-focused living environment that could serve as a model for similar initiatives globally.





All photographs are work of Lucid
Popular Articles
Popular articles from the community
Inverted Architecture Installation by Studio Link-Arc: Exploring the Intersection of Architecture and Living Organisms
Inverted Architecture Installation by Studio Link-Arc blends mycelium, sustainability, inverted design, ecological cycles, and urban adaptive architecture in Shenzhen.
Flamboyant House by Juliana Camargo + Prumo Projetos
Modern Brazilian house integrating existing tree, pool, and volumes with glass, wood, and transitional spaces blending interior, exterior, and landscape seamlessly.
Louis Malle Cinema: A Limestone Cultural Landmark Revitalizing Community Life in Prayssac
Limestone cinema extension with public forecourt, blending heritage and modern design to create flexible cultural spaces and strengthen community interaction.
Atelier Macri Concept Store Interior Design by CASE-REAL
Atelier Macri store features a "ko" counter, walnut wood details, cork displays, blending retail, gallery, and seamless customer experiences.
Similar Reads
You might also enjoy these articles
Top 15 Architecture Competitions to Enter in 2026
From student-friendly idea competitions to prestigious international awards, here are the best architecture competitions open for entries in 2026. Updated regularly.
DIY & Engineering in Computational Design : Enter the BeeGraphy Design Awards
Showcase Your Creativity with Computational Design and Open Source Projects

Innovative Design Solutions: Award-Winning Projects from Recent Architecture Competitions
Exploring award-winning architectural projects shaping the future of design, sustainability, and community.
Explore Architecture Competitions
Discover active competitions in this discipline
The International Standard for Design Portfolios
The Global Benchmark for Architecture Dissertation Awards
The Global Benchmark for Graduation Excellence
Challenge to reimagine the Iron Throne
Comments (0)
Please login or sign up to add comments
No comments yet. Be the first to comment!