Koba House Estúdio HAA: A Sustainable Retreat in the Mantiqueira Mountains
Koba House by Estúdio HAA is a sustainable retreat in Brazil's Mantiqueira Mountains, harmonizing architecture with nature through local materials.
The Koba House, designed by Estúdio HAA, is a stunning architectural retreat nestled in the high-altitude landscape of Gonçalves, Brazil. Situated 1,450 meters above sea level within the Mantiqueira Mountains, the house responds to the unique climate and steep terrain while seamlessly integrating local materials and traditional building techniques.



Designing with Nature in Mind
The initial site for the house was chosen based on careful studies of sunlight exposure and natural topography. The architects initially considered a plateau near the access road but found it would be shaded throughout the winter afternoons due to a nearby mountain. Instead, they relocated the structure to a site with better sunlight exposure and unobstructed views of the Pedra do Baú, a prominent landmark in São Bento do Sapucaí. This decision allowed the house to fully embrace its breathtaking surroundings while maximizing thermal comfort throughout the year.





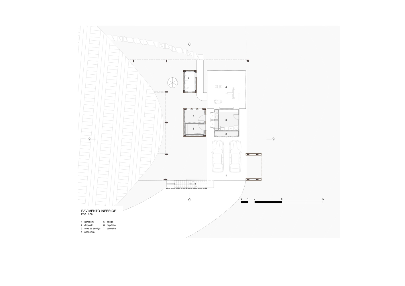
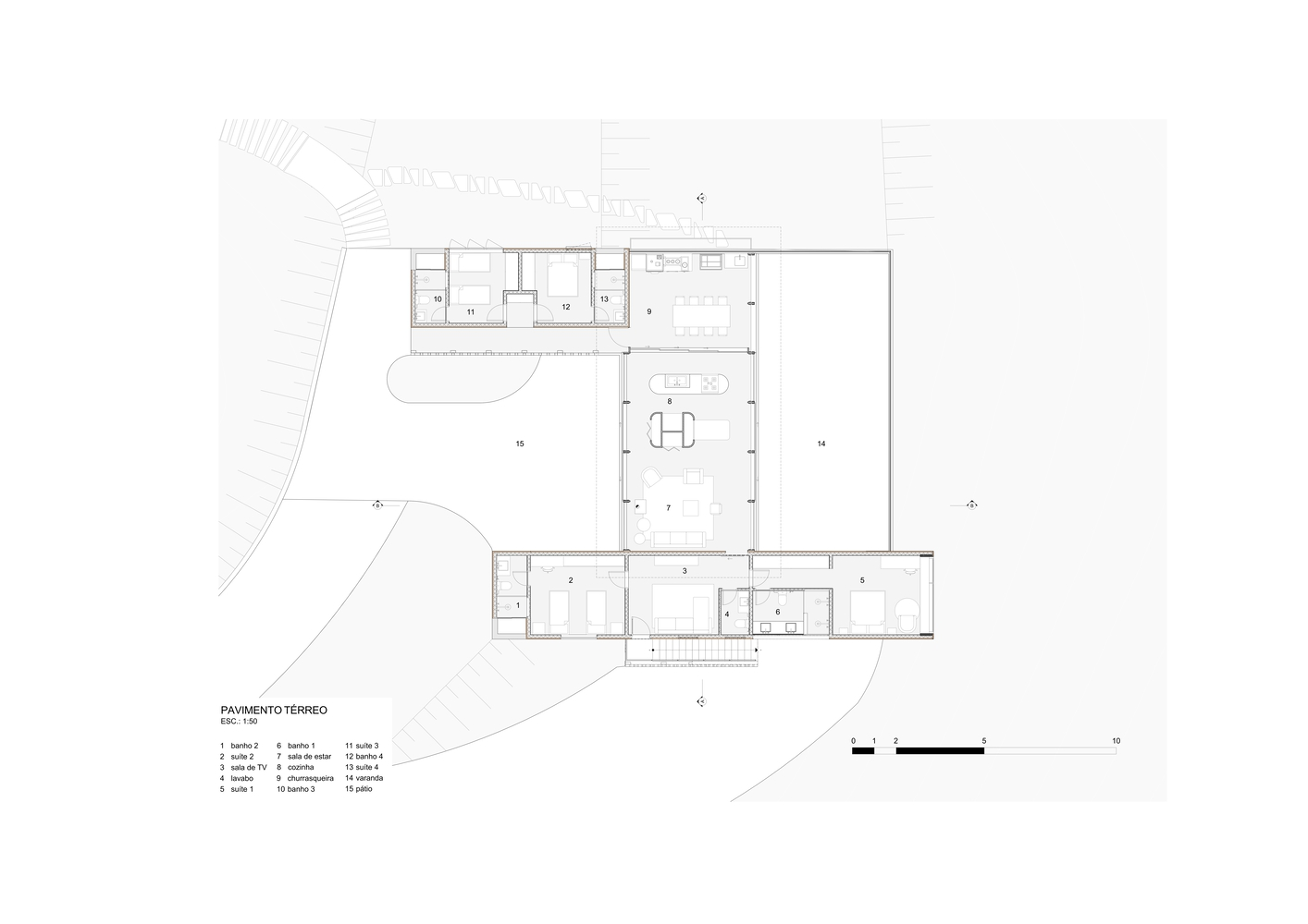
A Functional Layout Divided into Four Blocks
The Koba House is organized into four distinct yet interconnected functional blocks, each catering to different aspects of daily life. The first block houses the private family spaces, including the master suite, a secondary entrance through the TV room, and the children's suite. The second block is dedicated to guest accommodations, ensuring privacy and comfort for visitors. The third block serves as the social hub, containing the main living areas, including an open-plan living room, indoor and outdoor kitchens, and a spacious front porch that seamlessly connects the interior with the landscape. The fourth block, positioned at a lower level, features practical amenities such as a garage, storage rooms, a wine cellar, a gym, and an additional bathroom.






Architectural Concept and Materiality
A defining element of Koba House is its interplay between mass and lightness. The private living blocks are constructed from clay masonry, providing a sense of permanence and grounding. In contrast, the social block is distinguished by its curved wooden ceiling, which creates the sensation of being inside a vast shipyard, reminiscent of the hull of a suspended boat. The metal trusses were individually designed to achieve this effect while maintaining structural efficiency.





The house employs a mixed construction system, combining a wooden structure, steel trusses, ceramic structural masonry, and reinforced concrete. The material selection emphasizes sustainability and biophilic design principles, using wood and ceramics to establish a strong connection between the built environment and nature. This approach not only enhances aesthetic appeal but also fosters a sense of warmth and timelessness within the space.




A Retreat in Harmony with Its Landscape
One of the key achievements of Koba House is its seamless integration with the surrounding landscape. The design respects the site's steep topography while optimizing views and natural light. By employing local labor and materials, the architects ensured that the house remained contextually relevant and environmentally responsible. The result is a tranquil retreat that enhances the connection between inhabitants and nature, creating a living experience that is both functional and poetic.





Koba House by Estúdio HAA exemplifies how architecture can respond to its environment while maintaining a balance between tradition and innovation. Through careful planning, sustainable material choices, and a thoughtful layout, the house stands as a testament to contemporary design that respects the past while embracing the future.





All Photographs are works of Pedro Kok
Popular Articles
Popular articles from the community
boq architekti Fits a Gabled Family House onto a Tiny Moravian Hillside Plot with No Room for a Garden
A 115 square meter home in South Moravia trades a garden for a rooftop terrace and a fully glazed facade facing the village below.
Architects Group RAUM Stacks Offset White Volumes into a Compact Office Tower in Busan
A 524-square-meter building on a tight corner lot in Haeundae plays with sunlight rights and shifting floor plates to create generous terraces.
1-1 Architects Builds a Nagoya House and Office from Decades of Stockpiled Timber
A 69-square-meter tower in dense residential Nagoya transforms surplus lumber into a home and workplace for a construction company.
H&P Architects Stack a Vertical River of Brick and Greenery in Hanoi
A perforated terracotta tower in Dong Anh channels water, light, and air through eight staggered levels of domestic life.
Similar Reads
You might also enjoy these articles
Olio Towers: A Mid-Rise for Performers That Fuses Housing, Rehearsal, and Stage
Located blocks from Houston's Theater District, this modular tower stacks living units around a central performance atrium.
Oasis: Modular Green Housing Carved into Dhaka's Urban Fabric
A shortlisted Plugin Housing entry reclaims unauthorized settlements in Dhaka with stepped concrete volumes, green roofs, and ventilation-driven design.
Black Hole: A Floating Megastructure for the Post-Physical Era
Emiliano Mazzarotto envisions a spherical, self-scaling arena where e-sports, digital hotels, and holographic stadiums replace traditional public space.
Compact & Sustainable Living in Piraeus: A Four-Level Family Home Built Around Light and Air
A narrow townhouse in one of Greece's densest port cities uses a central atrium and passive strategies to house three generations under one roof.
Explore Architecture Competitions
Discover active competitions in this discipline
The International Standard for Design Portfolios
The Global Benchmark for Architecture Dissertation Awards
The Global Benchmark for Graduation Excellence
Challenge to reimagine the Iron Throne
Comments (0)
Please login or sign up to add comments
No comments yet. Be the first to comment!