Lagunen II Shopping Center by BIOSIS
Climate-adaptive Bergen mall expansion featuring cantilevered roof, luminous atrium, mixed-use programs, and sheltered public spaces supporting vibrant urban life.
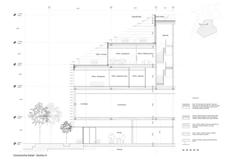
Completed in 2025 in Bergen, Norway, Lagunen II Shopping Center is a 15,000 m² climate-adaptive expansion of Lagunen Storsenter—Norway’s largest retail destination. Designed by Copenhagen-based BIOSIS, the project redefines contemporary shopping center architecture by transforming a traditional mall into a mixed-use, community-driven urban environment shaped by climate, light, and social interaction.
Situated in one of Europe’s rainiest cities, Lagunen II embraces Bergen’s coastal weather conditions as a generative design force rather than a limitation. The result is a resilient, light-filled extension that integrates retail, dining, offices, and public space into a cohesive architectural framework.


Climate-Adaptive Architecture in Bergen
Bergen’s heavy rainfall and low winter daylight were central considerations in the design strategy. Instead of shielding the building from its environment, BIOSIS developed an architectural language that works with the local climate.
A dramatic cantilevered roof defines the project’s identity. This sweeping canopy extends over public areas, forming a sheltered microclimate where pedestrians can gather, socialize, and move comfortably throughout the year. The warm timber soffits beneath the overhang cast a soft glow outward, reinforcing the building’s civic presence even during grey, rainy days.
Transparent façades, deep overhangs, and porous ground-floor edges dissolve the conventional boundaries between indoor and outdoor retail environments. Public squares, cafés, and pedestrian streets flow seamlessly into the shopping center, encouraging natural movement and social interaction.


Daylight-Driven Mixed-Use Design
At the heart of Lagunen II is a luminous central atrium that draws daylight deep into the building. In a region where winter daylight is limited, this vertical void ensures generous natural illumination and enhances spatial orientation.
The program is organized vertically to maximize activity throughout the day:
- Lower and middle floors: Retail spaces, including Bergen’s first Zara store
- Street level: Restaurants, cafés, and hospitality venues
- Upper levels: Flexible office environments with shared amenities
The office floors combine openness and privacy, maintaining visual connections to the retail and public areas below. This layered program transforms the extension into a true mixed-use development—where work, shopping, and leisure coexist within a single architectural ecosystem.


From Retail Box to Urban Anchor
Lagunen II moves beyond the conventional typology of the enclosed shopping mall. By integrating workplaces, dining, hospitality, and leisure, the project acts as a vibrant neighborhood hub serving the surrounding residential district.
With more than 200 businesses across the original mall and its expansion, Lagunen Storsenter attracts over eight million annual visitors. The new extension strengthens its role as both a regional destination and a daily community meeting place.
Rather than functioning as a standalone commercial object, Lagunen II supports activity from morning to evening—embedding itself into the everyday rhythms of Bergen’s urban life.


Sustainable Shopping Center Design and Environmental Performance
Sustainability is embedded throughout the project. Horizontal aluminum fins—partly fabricated from recycled materials—provide solar shading while adding texture to the façade. Planted terraces and green walls soften the building’s mass and promote biodiversity within the urban context.
The design prioritizes natural light, passive climate strategies, and energy efficiency, targeting Energy Class A and BREEAM In-Use certification. By integrating ecological performance with architectural expression, Lagunen II demonstrates how large-scale retail architecture can align with long-term environmental resilience.

A Model for Future-Ready Commercial Architecture
Lagunen II Shopping Center represents a forward-thinking approach to commercial and mixed-use development in Northern Europe. By designing with weather instead of against it, BIOSIS proposes a more open, socially connected, and climate-responsive model for retail architecture.
In an era of evolving urban patterns and environmental challenges, Lagunen II stands as a benchmark for sustainable shopping center design—where public life, economic vitality, and ecological awareness converge under one expansive, rain-sheltering roof.


All the photographs are works of
Elisabeth Heier
Popular Articles
Popular articles from the community
Gads Hill Early Learning Center by JGMA: Adaptive Reuse Shaping Community-Focused Educational Architecture
Adaptive reuse transforms fragmented structure into vibrant early learning center with playful façade, natural light, and community-focused sustainable design.
Atelier Macri Concept Store Interior Design by CASE-REAL
Atelier Macri store features a "ko" counter, walnut wood details, cork displays, blending retail, gallery, and seamless customer experiences.
Free Architecture Competitions You Can Enter Right Now
No entry fees, real prizes. Here are the best free architecture competitions open for submissions in 2026.
Split House: A Compact Urban Home Blending Privacy, Light, and Flexible Living in Japan
Compact Japanese home featuring DOMA space, flexible café potential, passive lighting, privacy zoning, and sustainable urban living design.
Similar Reads
You might also enjoy these articles
The Ken Roberts Memorial Delineation Competition (Krob)
As the most senior architectural drawing competition currently in operation anywhere in the world, it draws hundreds of entries each year, awarding the very best submissions in a series of medium-based categories.
Waterfront Redevelopment and Urban Revitalization in Mumbai: Forging a New Dawn for Darukhana
A transformative waterfront redevelopment project reimagining Darukhana’s shipbreaking heritage into an inclusive urban future.
OUT-OF-MAP: A Call for Postcards on Feminist Narratives of Public Space
Rhizoma Design and Research Lab invites artists, designers, architects, researchers, and students to reflect on how feminist perspectives can reshape public space. Selected works will be exhibited in Barcelona, October 2026. Submissions open until 15 April 2026.
Documentation Work on Buddhist Wooden Temple
Architectural syncretism and cultural hybridity: A comparative study of the Buddhist temples in Chattogram Hill tracks
Explore Architecture Competitions
Discover active competitions in this discipline
The International Standard for Design Portfolios
The Global Benchmark for Architecture Dissertation Awards
The Global Benchmark for Graduation Excellence
Challenge to reimagine the Iron Throne
Comments (0)
Please login or sign up to add comments
No comments yet. Be the first to comment!