Leonora Studio: Salon Interior Design in Mexico City
VOID Studio designed a hair salon in Polanco, Mexico City that uses architecture, not signage, to create brand identity on a competitive street.
There is a category of interior design project that most architecture publications ignore: the beauty salon. It tends to fall between disciplines, too commercial for the design journals, too small for the architecture ones. Leonora Studio, designed by VOID Studio and completed in 2022 in Mexico City, is the kind of project that makes that blind spot look like a mistake.
Located on Calle Horacio in the Polanco neighbourhood, one of Mexico City's most competitive retail corridors, the brief was to create a hair salon that functions as a precise working environment while projecting a brand identity strong enough to hold its own on the street. The design team, led by Luisa Fernanda Rodriguez Uranga, Joel Armando Martinez Valdez, and Rodrigo Duran, delivered on both.
Street Presence and First Impressions


The facade is the first move. In a neighbourhood where retail frontages compete through signage, lighting rigs, and oversized logos, Leonora Studio competes through architecture. The street elevation is clean, confident, and distinct enough that it functions as a sign without needing one.
This is a lesson more retail projects should learn. A well-designed facade earns attention once and keeps it. A loud sign earns attention once and gets tuned out. The difference is durability.
Reception and the Threshold



The reception and waiting area sets the tone. It is comfortable without being casual. The palette is warm, material-led, and disciplined. Furniture is selected rather than specified, meaning each piece was chosen for this room rather than ordered from a catalogue.
The transition from street to salon is handled as a proper architectural moment. You move from bright daylight through a filtered threshold into a calmer, more controlled interior. This matters in a business where clients spend one to three hours in a chair. The space needs to feel like arriving somewhere, not walking into a shop.
The Colour Bar and Working Stations


The colour bar, where mixing and application happen, is designed as working furniture. It is visible to clients, which signals transparency and craft. A salon that hides its process looks like it has something to hide. One that shows it looks confident.
The styling stations are spaced generously. Each one has good light, a clear sightline to the mirror, and enough privacy to feel personal without being isolated. This is spatial planning at its most practical: every centimetre serves either comfort, workflow, or atmosphere.

Material Palette and Lighting


The material palette is restrained. Warm tones, natural textures, and soft metallics run through the space without interruption. The lighting is layered: ambient fixtures for atmosphere, task lighting at each station for precision, and accent lighting at the display and retail zones.
Getting lighting right in a salon is unusually difficult. Clients need to see accurate colour under the station lights (their hair is the product). But the overall atmosphere needs to feel relaxed, not clinical. VOID Studio managed both by separating the two systems and tuning each independently.
Upper Floor and Vertical Flow

The programme spreads across two levels. The vertical circulation connects them without breaking the atmosphere. The stair is not hidden or apologised for; it is part of the spatial sequence. Moving between floors should feel like moving between rooms, not between buildings.
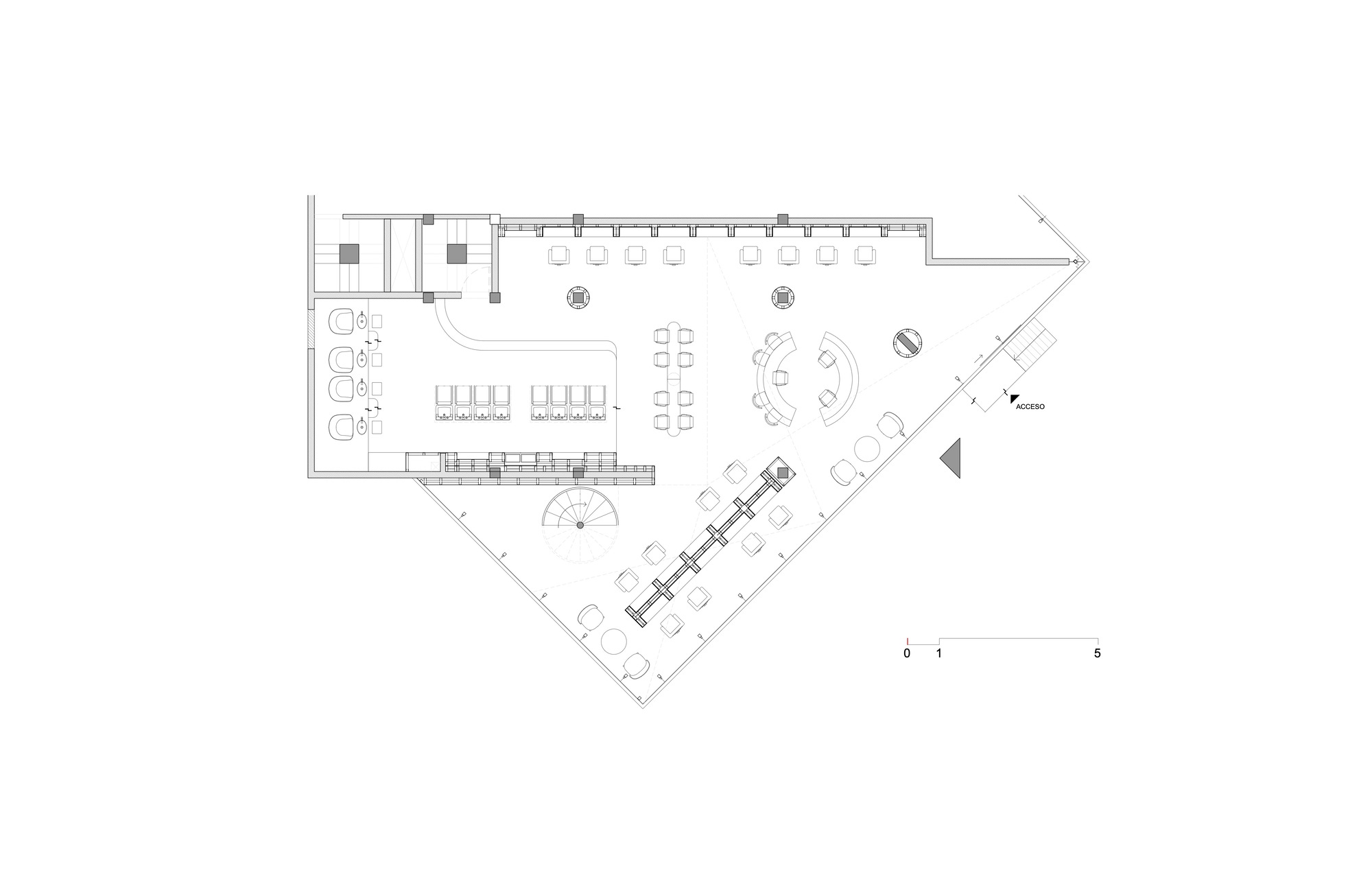
Plans


The floor plans show how tightly the programme is packed. Reception, waiting, colour bar, styling stations, retail, services, and a second floor of treatment rooms all fit into a single narrow lot. The plan discipline is what makes the space feel generous despite its actual footprint.
Why Retail Interior Design Matters
Retail interiors are where most people actually experience architecture. Not in museums, not in houses they cannot enter, but in the shops, salons, restaurants, and cafes they visit every week. The quality of those spaces shapes how people feel about design. A well-designed salon normalises the idea that everyday spaces deserve care.
Leonora Studio is worth studying for anyone working on small-scale retail or hospitality interiors. The lessons are transferable: how to use a facade as a brand tool, how to layer lighting for dual purposes, how to make a narrow plan feel spacious, and how to treat a working environment as a designed experience.
About the Studio
Share Your Own Work on uni.xyz
If you are working on interior design, retail, or hospitality projects, uni.xyz is a place to publish your work, find collaborators, and enter design competitions.
Project credits: Leonora Studio (Sucursal Horacio) by VOID Studio. Mexico City, Mexico. Completed 2022. Design team: Luisa Fernanda Rodriguez Uranga, Joel Armando Martinez Valdez, Rodrigo Duran. Construction: ArqMains. Photographs: Zaickz Moz. Last updated: April 2026.
Popular Articles
Popular articles from the community
Magic Box Office Barcelona Innovative Sustainable Workplace Design
Innovative sustainable office design featuring triangular form, ceramic façade, flexible interiors, natural light optimization, and creative workspace for modern work culture.
Learning and Innovation Center: A Belgian Study Hub
evr-Architecten and A229 built a 9,910 m² Learning and Innovation Center in Ixelles, Brussels that connects two ULB campuses through architecture.
PUKKUN Residence: A Tropical House in Cancún by REIMS 502
REIMS 502 built a 1,100 m² tropical residence in Cancún, Mexico, that treats climate, garden, and regional materials as architecture.
TGK Nirasaki Plant: A Smart Factory Blending Technology, Landscape, and Wellness
Smart factory in Japan blending IoT manufacturing, scenic trail design, natural ventilation, and landscape integration to enhance user experience and sustainability.
Similar Reads
You might also enjoy these articles
20 Most Popular Commercial Architecture Projects of 2025
From sustainable market concepts to heritage factories, the commercial buildings and proposals that drew the most attention on uni.xyz this year.
Magic Box Office Barcelona Innovative Sustainable Workplace Design
Innovative sustainable office design featuring triangular form, ceramic façade, flexible interiors, natural light optimization, and creative workspace for modern work culture.
Mantiqueira House by SysHaus and M Magalhães Estúdio
A linear modular house embedded in Serra da Mantiqueira, integrating panoramic views, sustainable prefabrication, minimal terrain impact, and contemporary interiors.
Guardia di Finanza Office Building by DEMOGO
Stepped institutional office in Bologna integrates terraces, red-toned facade, and linear staircase, reconnecting military complex with surrounding urban landscape.
Explore Architecture Competitions
Discover active competitions in this discipline
The International Standard for Design Portfolios
The Global Benchmark for Architecture Dissertation Awards
The Global Benchmark for Graduation Excellence
Challenge to design luxury tourism on rails
Comments (0)
Please login or sign up to add comments
No comments yet. Be the first to comment!