PUKKUN Residence: A Tropical House in Cancún by REIMS 502
REIMS 502 built a 1,100 m² tropical residence in Cancún, Mexico, that treats climate, garden, and regional materials as architecture.
Cancún is one of those cities that gets reduced to a single image. Beach hotels, lobbies, infinity pools. The actual urban fabric, the suburban streets where families live and grow, rarely shows up in architecture media. PUKKUN Residence, completed in 2023 by the Mexican studio REIMS 502, is a quiet correction to that reading.
It is a 1,100 square metre house designed for a family from Cancún, on a suburban lot, in a tropical climate. The brief was generous. The site was ordinary. What the architects, Eduardo Reims Hernández and Andrea Maldonado Verduzco, did with both is the most interesting part.
A House That Treats Climate as Architecture



The Yucatán Peninsula is hot, humid, and saturated with light for most of the year. A house here either fights its climate or works with it. PUKKUN belongs firmly to the second category. The plan is organised around shaded outdoor rooms, deep overhangs, cross-ventilation, and the kind of in-between spaces that disappear from buildings the moment air conditioning is treated as the default.
The result is a residence that feels less like a sealed object dropped on a lot and more like a sequence of covered courtyards stitched together. You move through it the way you move through a small village, from shade to shade, with the garden never far away.
Generous Program, Disciplined Footprint


At 1,100 square metres, the architectural program is unusually large for a single-family house. REIMS 502's response is not to spread out, but to stack and weave. The volumes step and overlap so the house reads as a cluster rather than a slab. From inside, it feels intimate. From outside, it disappears into the trees.
This is harder than it sounds. Most large suburban houses fail at exactly this scale. They become formless, or they become palatial in a way that feels apologetic. PUKKUN avoids both. It owns its size by breaking it down.



Sense of Place in a Suburb


The architects describe the project as one that integrates with a sensitised sense of place. This is a phrase that gets used loosely in architecture, but here it has a specific meaning. The house borrows from the regional vocabulary of the Yucatán: lime stucco, local stone, hardwoods, terracotta, the colour palette of a hot landscape. None of it is decorative. It is the structure.
Material choices like these are not nostalgic. They perform. Lime breathes. Stone holds cool. Wood ages well in salt air. A house built from this kit will outlast a house built from imported finishes that fail in five years of humidity. The regional vocabulary is, among other things, a maintenance strategy.



Interior as Continuous Landscape


Interiors by Habitación 116 extend the architectural logic inside. The palette stays warm and earthen. Furniture is heavy enough to feel grounded but light enough to be moved when the family rearranges a room. There is very little visual noise. The house lets the weather, the plants, and the people be the foreground.
This is one of the harder things to pull off in a project of this size. Big houses tend to develop dead zones, rooms that are decorated but never inhabited. The plan here resists that. Each space connects to another, and most connect to a garden.


The Garden Is Half the Building



Landscape design by Maat Handasa is treated as architecture, not as a finishing layer. Trees are placed where they will eventually shade the most exposed walls. Planting beds are deep enough to support real ecosystems, not just ornamental rows. The garden is allowed to be slightly wild, which in a tropical climate is a virtue rather than a problem.
Walking the photographs, you start to notice that the planting is doing structural work. It cools the air, softens the light, slows the wind, and keeps the building from feeling exposed. Strip the plants out and the architecture would still be good. Leave them in and it becomes coherent.


Light, Section, Atmosphere


The photographs by César Béjar are worth lingering on for the way they handle light. Tropical light is brutal at midday and beautiful at the edges of the day. Béjar's images capture the second mode, when the house turns soft and the courtyards fill with long shadows. This is the atmosphere the architects designed for.
It is also a useful lesson for anyone designing in a hot climate. The hours your building actually gets used are not noon. They are early morning and late afternoon. Tune the section, the openings, and the materials for those hours and the result is a building people want to be in.


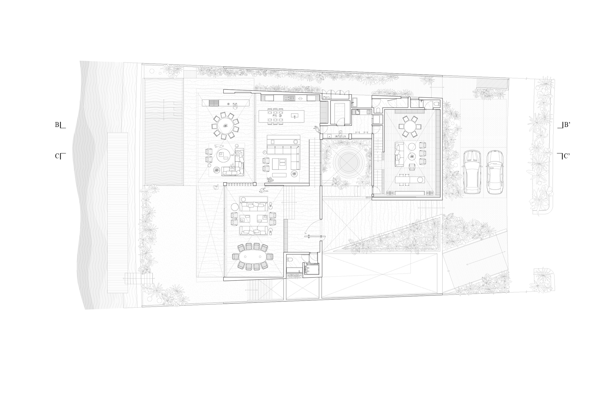
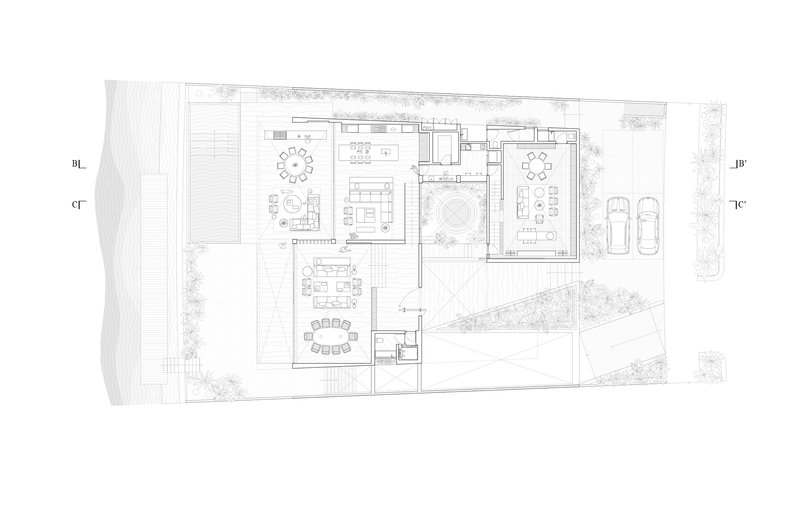
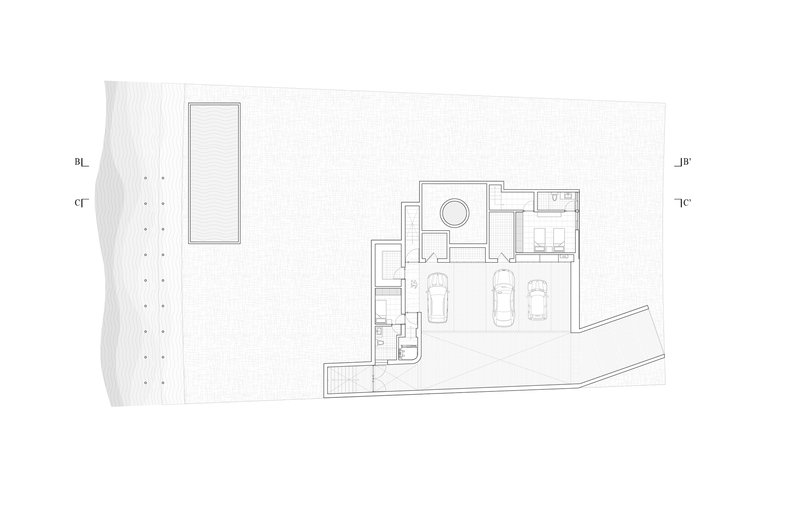
Plans, Sections and the Axonometric



The drawings clarify the strategy. The axonometric shows how the volumes interlock. The plans, from basement up to roof, show how the program threads through the site without ever turning the house into a single mass. The sections explain why the cross-ventilation works and where the deep overhangs sit.



Reading these alongside the photographs is the right way to understand the project. The renders are not the point. The plan is.




Why This Project Matters
Mexican residential architecture has been one of the most consistent voices in contemporary practice for the last two decades. From the Yucatán to Oaxaca to the Pacific coast, a generation of studios has shown how to build large houses that feel restrained, regional, and slow. PUKKUN belongs to that lineage and pushes it forward.
If you are an architect working on a private residence in any hot climate, this is the kind of project worth studying. Not the surface details, but the logic. How program is broken down into shaded fragments. How materials are chosen for the long term. How the garden is treated as the building's other half. How the section, not the floor plan, does most of the work.
About the Studio
Share Your Own Work on uni.xyz
If projects like PUKKUN Residence are the kind of work you want to make, uni.xyz is a place to publish your own residential and cultural projects, find collaborators, and enter design competitions that take regional, climate-aware architecture seriously.
Project credits: PUKKUN Residence by REIMS 502. Cancún, Mexico. 1,100 m². Completed 2023. Lead architects: Eduardo Reims Hernández, Andrea Maldonado Verduzco. Interior design: Habitación 116. Landscape: Maat Handasa. Photographs: César Béjar. Last updated: April 2026.
Popular Articles
Popular articles from the community
Free Architecture Competitions You Can Enter Right Now
No entry fees, real prizes. Here are the best free architecture competitions open for submissions in 2026.
Leonora Studio: Salon Interior Design in Mexico City
VOID Studio designed a hair salon in Polanco, Mexico City that uses architecture, not signage, to create brand identity on a competitive street.
Light Pavilion: Capturing Jeju's Light in 10 m²
DRAWING WORKS built a 10 m² timber pavilion on Jeju Island that treats light as architecture, framing the sky through precisely angled openings.
Split House: A Compact Urban Home Blending Privacy, Light, and Flexible Living in Japan
Compact Japanese home featuring DOMA space, flexible café potential, passive lighting, privacy zoning, and sustainable urban living design.
Similar Reads
You might also enjoy these articles
FE House: Ground-Floor Living in Ribeirão Preto
N2B Arquitetura designed a 1,020 m² single-storey house in inland São Paulo that resolves a generous programme as both home and refuge.
Leonora Studio: Salon Interior Design in Mexico City
VOID Studio designed a hair salon in Polanco, Mexico City that uses architecture, not signage, to create brand identity on a competitive street.
Mantiqueira House by SysHaus and M Magalhães Estúdio
A linear modular house embedded in Serra da Mantiqueira, integrating panoramic views, sustainable prefabrication, minimal terrain impact, and contemporary interiors.
Guardia di Finanza Office Building by DEMOGO
Stepped institutional office in Bologna integrates terraces, red-toned facade, and linear staircase, reconnecting military complex with surrounding urban landscape.
Explore Architecture Competitions
Discover active competitions in this discipline
The International Standard for Design Portfolios
The Global Benchmark for Architecture Dissertation Awards
The Global Benchmark for Graduation Excellence
Challenge to design mud housing for contemporary communities
Comments (0)
Please login or sign up to add comments
No comments yet. Be the first to comment!