Les Échoppes Bastide Housing: Bordeaux Stone Housing Architecture
Les Échoppes Bastide Housing reinterprets Bordeaux stone architecture, combining traditional masonry, modern housing typologies, sustainability, and contextual urban design.
Les Échoppes Bastide Housing, designed by eliet&lehmann architectes, represents a modern reinterpretation of traditional Bordeaux townhouses. Located on the right bank of Bordeaux, the project emphasizes Bordeaux stone housing architecture while respecting the historic Bastide neighborhood context.





Site Context
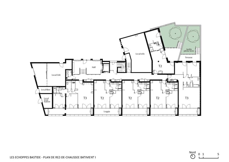
The housing complex is situated north of the Garonne-Eiffel development zone, adjacent to the historic “stone city” of Bastide. The design responds to the urban fabric with a simple layout, offering direct street access while creating private gardens at the rear of each house. The project integrates seamlessly into its surroundings, combining traditional materials with modern construction techniques.





Architectural Design
The development comprises terraced houses and collective apartment buildings. Houses are primarily built with 28 cm thick load-bearing solid stone, stacked according to precise architectural plans. This natural geo-sourced stone requires no firing or mixing, minimizing energy use and emphasizing sustainable construction. Modern lifting equipment allows for handling large blocks, giving this traditional method renewed relevance.






Housing Typologies
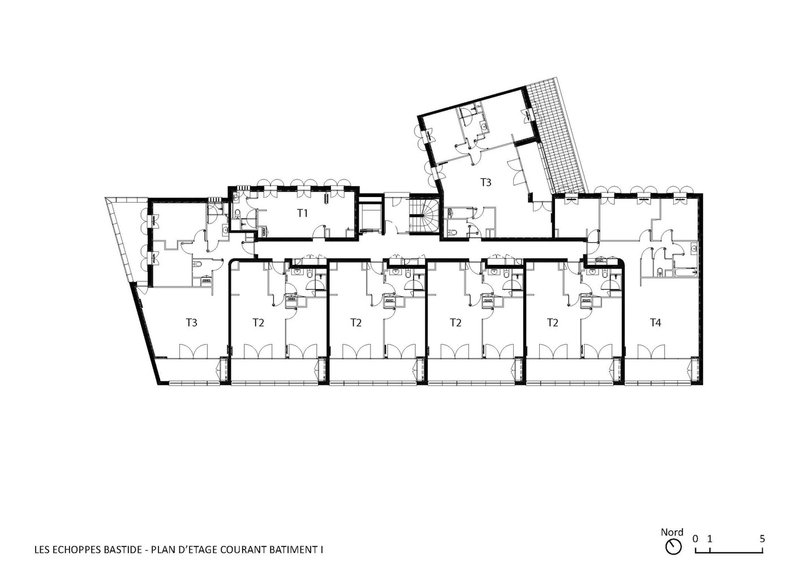
The houses are designed for families, with flexible configurations ranging from T4 (84 m²) to T6 (122 m²). Ground floors are slightly elevated, with accessibility from the garden side for people with reduced mobility. Seven compact “affordable” houses, built on 3.6 m frameworks, provide high-quality living at an attractive cost. Collective buildings with T2 apartments complete the development, achieving a higher Floor Area Ratio (FAR) than typical échoppe neighborhoods.







Materiality and Construction
Stone is the defining material, both for facades and fences. Homogeneous yet nuanced, the blocks reveal the gravity-based stacking after assembly, highlighting the architectural quality of the material. The stone construction combines aesthetic value with sustainability, proving that traditional techniques can meet contemporary standards.


Architectural Impact
By combining townhouses and apartment buildings, Les Échoppes Bastide Housing creates a balanced urban density while preserving the heritage of Bordeaux. The project demonstrates how traditional stone construction can be adapted to modern housing needs, emphasizing durability, authenticity, and contextual design.






Les Échoppes Bastide Housing is an exemplary project of Bordeaux stone housing architecture, merging traditional craftsmanship, sustainable materials, and flexible modern living in a historic urban context.






All Photographs are works of Agnès Clotis, eliet & lehmann architectes, Pierre-Yves Brunaud
Popular Articles
Popular articles from the community
Fausto Terán and Toro Fuse Japanese Craft with Mexican Tradition in a Lakeside Retreat
Nakamura House pairs Shou-Sugi-Ban charred pine with handmade clay tile at the foot of Atlangatepec Lagoon in Mexico.
HCCH Studio Wraps a Shanghai High-Rise Office in Curved Walls of Translucent Glass
A 1,000 square meter fit-out in Lujiazui replaces the typical tech-office palette with layered glass, micro-cement, and quiet rigor.
20 Most Popular Office Building Projects of 2025
From biophilic workspaces in India to net-positive energy offices in New Delhi, 20 office building projects that defined architecture in 2025.
Rojkind Arquitectos and Think Parametric Build a Glueless Pavilion from 67 Interlocking Panels
A serpentine fiber-cement installation in Chapultepec Park celebrates a decade of architectural media in Mexico City.
Similar Reads
You might also enjoy these articles
CSADI Carves a Jade Blade into the Qinling Mountains for China's First Ecology Museum
A 43,788 square meter terraced museum in Shangluo draws its form from a Xia Dynasty artifact and steps down toward the valley below.
Ippolito Fleitz Group Identity Architects Turn Eight Floors in Shanghai into a Vertical Creative City
Publicis Groupe's new headquarters in Xintiandi reimagines the office as a courtyard-driven urban landscape stacked across eight floors.
Díaz Webster Arquitectura Carves Light and Air into a Compact Zapopan House
A 237-square-meter residence in western Zapopan uses courtyards and double-height voids to dissolve the boundary between interior and garden.
BAST Slots a Four-Story Glass House into a Narrow Gap Between Toulouse Townhouses
In the dense Bonnefoy district, a stepped infill building merges home and office while preserving a majestic hackberry tree.
Explore Architecture Competitions
Discover active competitions in this discipline
The International Standard for Design Portfolios
The Global Benchmark for Architecture Dissertation Awards
The Global Benchmark for Graduation Excellence
Challenge to reimagine the Iron Throne
Comments (0)
Please login or sign up to add comments
No comments yet. Be the first to comment!