L'Étincelle Cultural Center: A New Beacon of Culture in Venelles, France
Exploring L'Étincelle Cultural Center, a modern architectural gem fostering culture and community in Venelles, France.
In the picturesque foothills of the Alps in Venelles, France, the L'Étincelle Cultural Center emerges as a testament to contemporary cultural center design. Conceived by the innovative minds at atelier d'architecture King Kong, this 2,858 m² marvel, completed in 2023, stands not just as a building but as a catalyst for urban regeneration and cultural dynamism.

The Essence of L'Étincelle Cultural Center
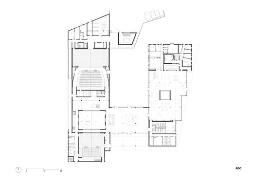
The L'Étincelle Cultural Center is an architectural embodiment of dialogue between space, community, and culture. Housing two theaters and a media library, the center anchors itself in the fabric of Venelles, aiming to revitalize the town's activity zone through its strategic location and thoughtful design.


Architectural Vision: The Concrete "Catamaran"
The architects envisioned the center as a light-colored concrete "catamaran," gracefully enveloping a central garden. This innovative layout ensures uninterrupted views over Venelles-le-Haut, while the building itself integrates seamlessly with the Provençal landscape. The design prioritizes openness, with the media library's large windows inviting the outside in, and the theater's strategic positioning shielding the garden from prevailing winds.


A Hub of Cultural Synergy
Landscape and Urban Integration
At the heart of L'Étincelle lies a general hall, a nexus that interweaves the center's diverse functions with public spaces. This area serves as a communal gathering spot, featuring a café, checkrooms, sanitary facilities, and an exhibition room, all designed to foster interaction and engagement among visitors.
The external landscaping of L'Étincelle Cultural Center is a reflection of its Provençal setting, featuring local flora and white limestone that harmonize with the native garrigue. The design thoughtfully accommodates pedestrian flows, connecting the main and secondary entrances with the town's pathways and contributing to the


A Model for Future Cultural Centers
L'Étincelle Cultural Center stands as a beacon of cultural and architectural innovation in Venelles, embodying a holistic approach to cultural center design that respects and enhances its environment. Through its strategic location, thoughtful design, and integration with the urban and natural landscape, L'Étincelle sets a precedent for future cultural centers worldwide, aiming to inspire and engage communities in the artsoverall urban renewal efforts in Venelles.


All photographs are work of Ivan Mathie
Popular Articles
Popular articles from the community
A Contemporary Take on Iranian Residential Architecture
A modern interior design in Mashhad that reinterprets brick, light, and spatial flow to create a warm, contemporary residential architecture.
Treehouse Apartment: A Warm Timber Interior Blending Craft, Play, and Contemporary Living
Warm timber apartment with integrated treehouse, combining natural materials, craftsmanship, and playful design to create a flexible, family-oriented living environment.
The Ken Roberts Memorial Delineation Competition (Krob)
As the most senior architectural drawing competition currently in operation anywhere in the world, it draws hundreds of entries each year, awarding the very best submissions in a series of medium-based categories.
On the Brooks House by Monsoon Collective – A Contemporary Kerala Home Rooted in Tradition
Kerala home blending tradition and modernity with water-inspired design, brick architecture, courtyard planning, and sustainable rainwater harvesting strategies.
Similar Reads
You might also enjoy these articles
Top 15 Architecture Competitions to Enter in 2026
From student-friendly idea competitions to prestigious international awards, here are the best architecture competitions open for entries in 2026. Updated regularly.
DIY & Engineering in Computational Design : Enter the BeeGraphy Design Awards
Showcase Your Creativity with Computational Design and Open Source Projects

Innovative Design Solutions: Award-Winning Projects from Recent Architecture Competitions
Exploring award-winning architectural projects shaping the future of design, sustainability, and community.
Explore Architecture Competitions
Discover active competitions in this discipline
The International Standard for Design Portfolios
The Global Benchmark for Architecture Dissertation Awards
The Global Benchmark for Graduation Excellence
Challenge to design an urban locus of culture and heritage
Comments (0)
Please login or sign up to add comments
No comments yet. Be the first to comment!