Lingang Youth Activity Center: Redefining Exploration and Learning Through Architecture
An architectural masterpiece blending exploration, education, and sustainability, redefining youth activity spaces for the modern age in Lingang, Pudong.
Redefining Youth-Centric Architecture
The Lingang Youth Activity Center, located in Pudong, China, is a groundbreaking project by the Arcplus Institute of Shanghai Architectural Design & Research. This 59,875 m² facility integrates innovative design elements with functionality, creating a vibrant, interactive space tailored for teenagers. The project aims to transcend traditional "Children's Palace" concepts, fostering creativity, learning, and connection with nature.




Architectural Vision: Form Meets Function
A Joyful Exploration Space
The design reimagines conventional youth spaces by creating an engaging environment filled with ramps, verandahs, and interconnected spaces. The building merges educational and recreational facilities, offering teenagers an inspiring venue for activities beyond routine classroom lessons.


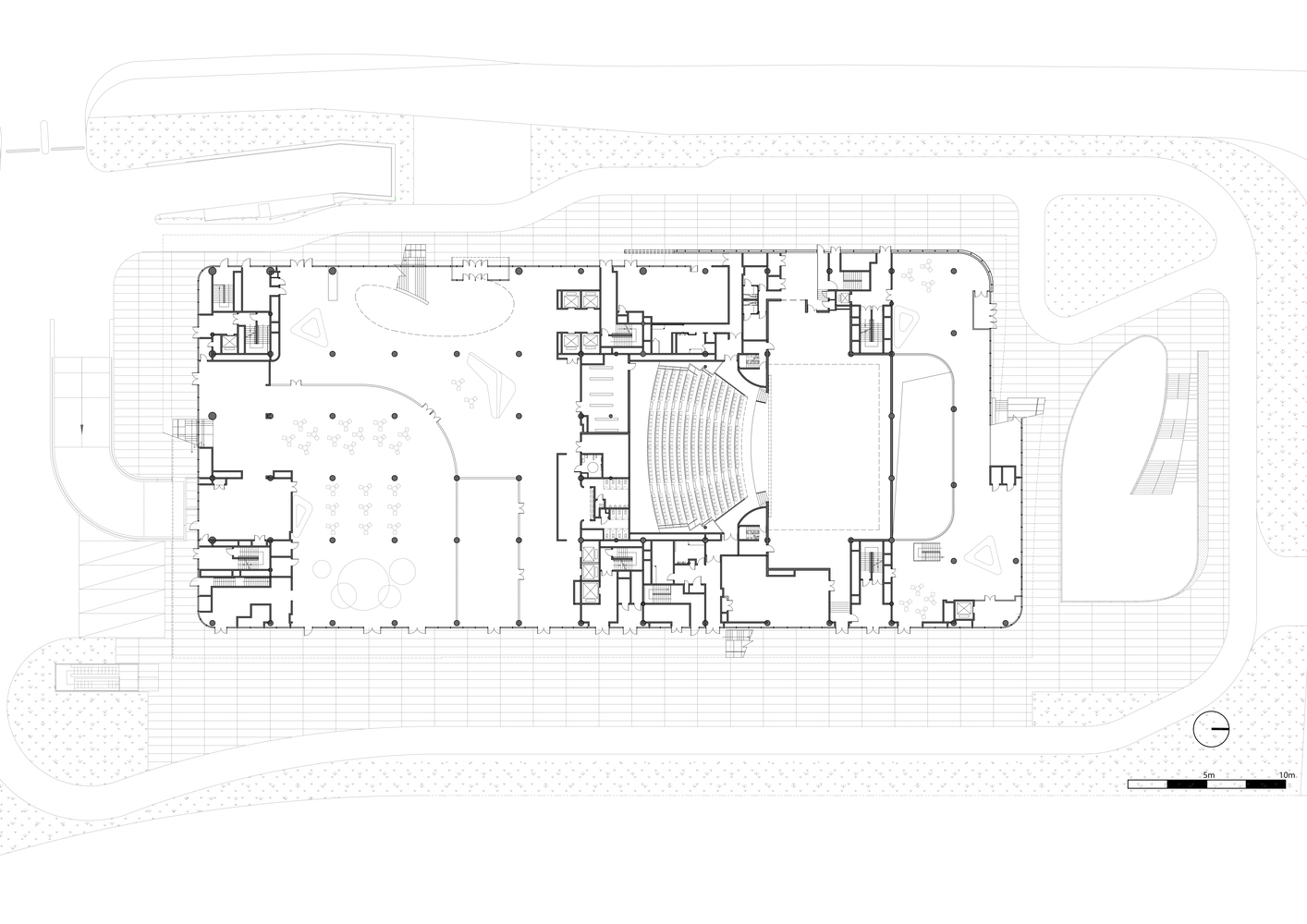
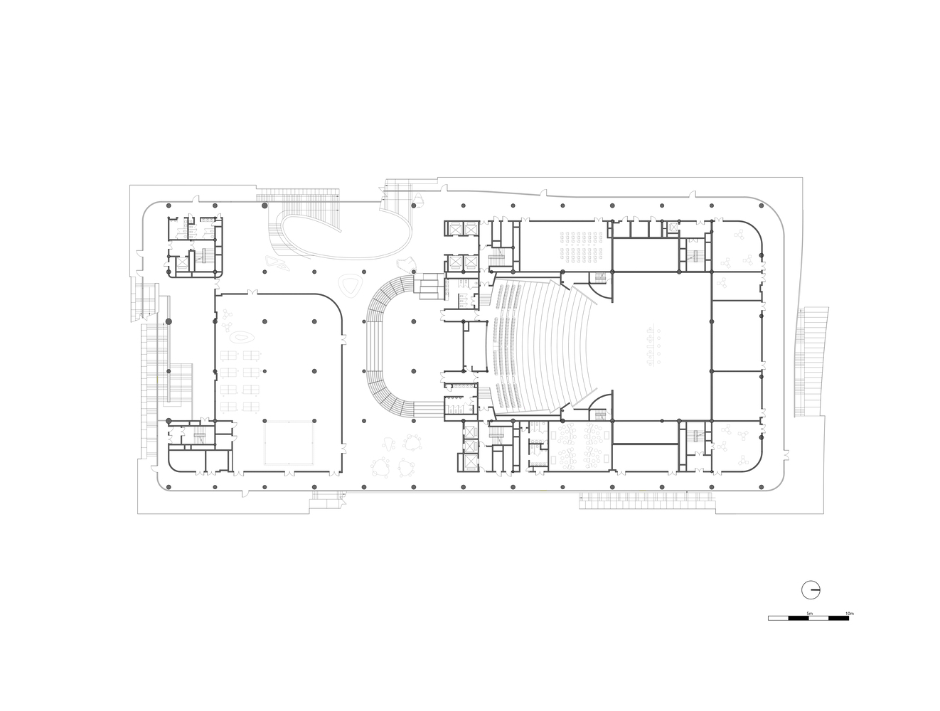
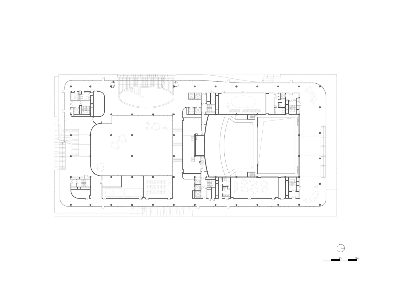
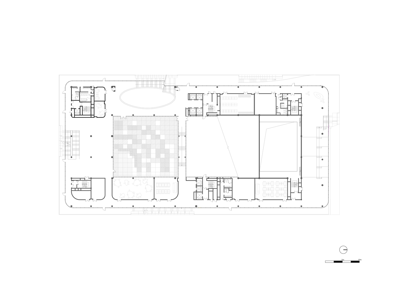
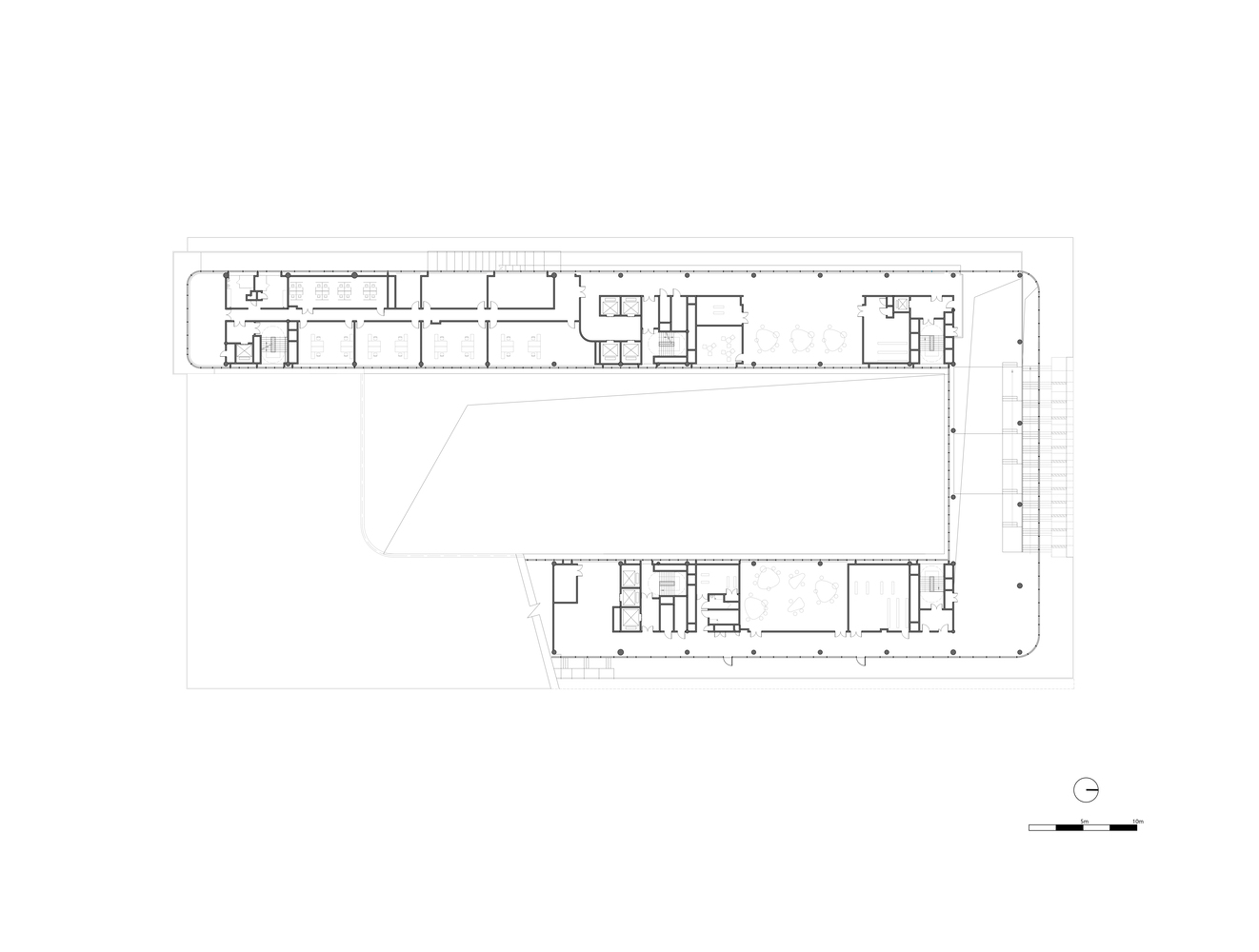
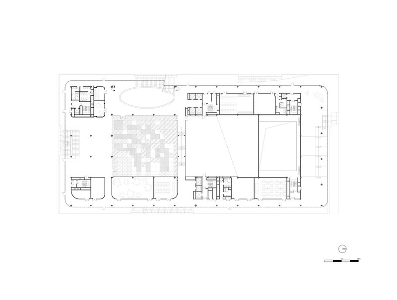
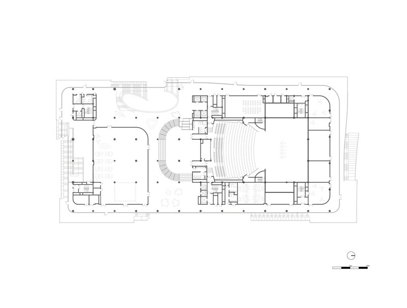
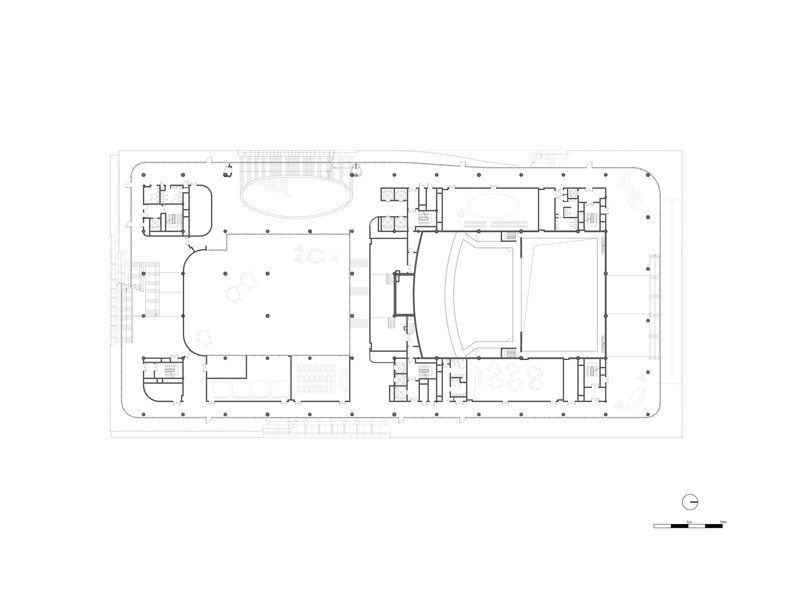
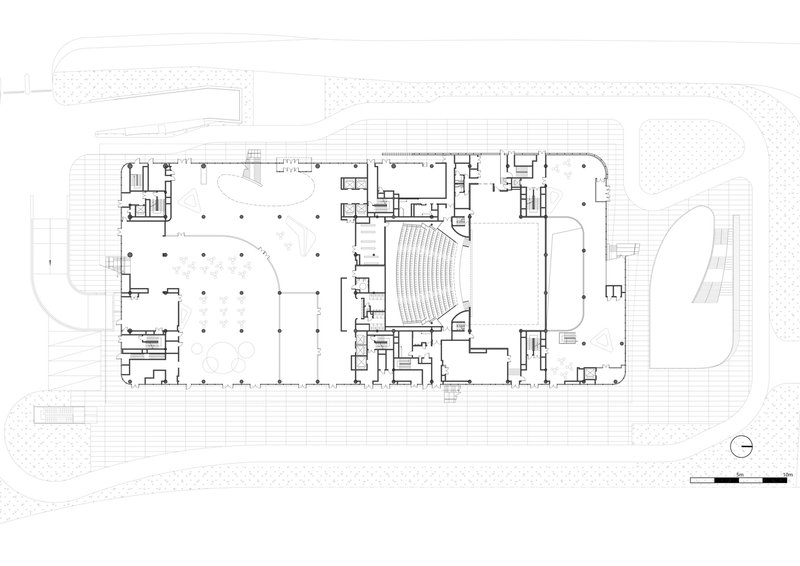
Functional Zoning
The center is organized into multiple zones:
- Ground Floor: Houses a science and technology experience area, a children’s theater, and an exhibition hall.
- Second to Fifth Floors: Extracurricular education spaces, connected seamlessly to the theater and museum.
- Sixth Floor: Administrative offices.
- Basement Levels: Parking, theater backstage, a restaurant, and exhibition spaces.



Spatial Design: A Fluid and Interactive Layout
Flipping the Traffic Space
The architects shifted traditional indoor circulation to the building’s exterior, offering expansive views of the urban landscape. Classrooms and core activity spaces are placed inside, ensuring a quiet environment conducive to learning.



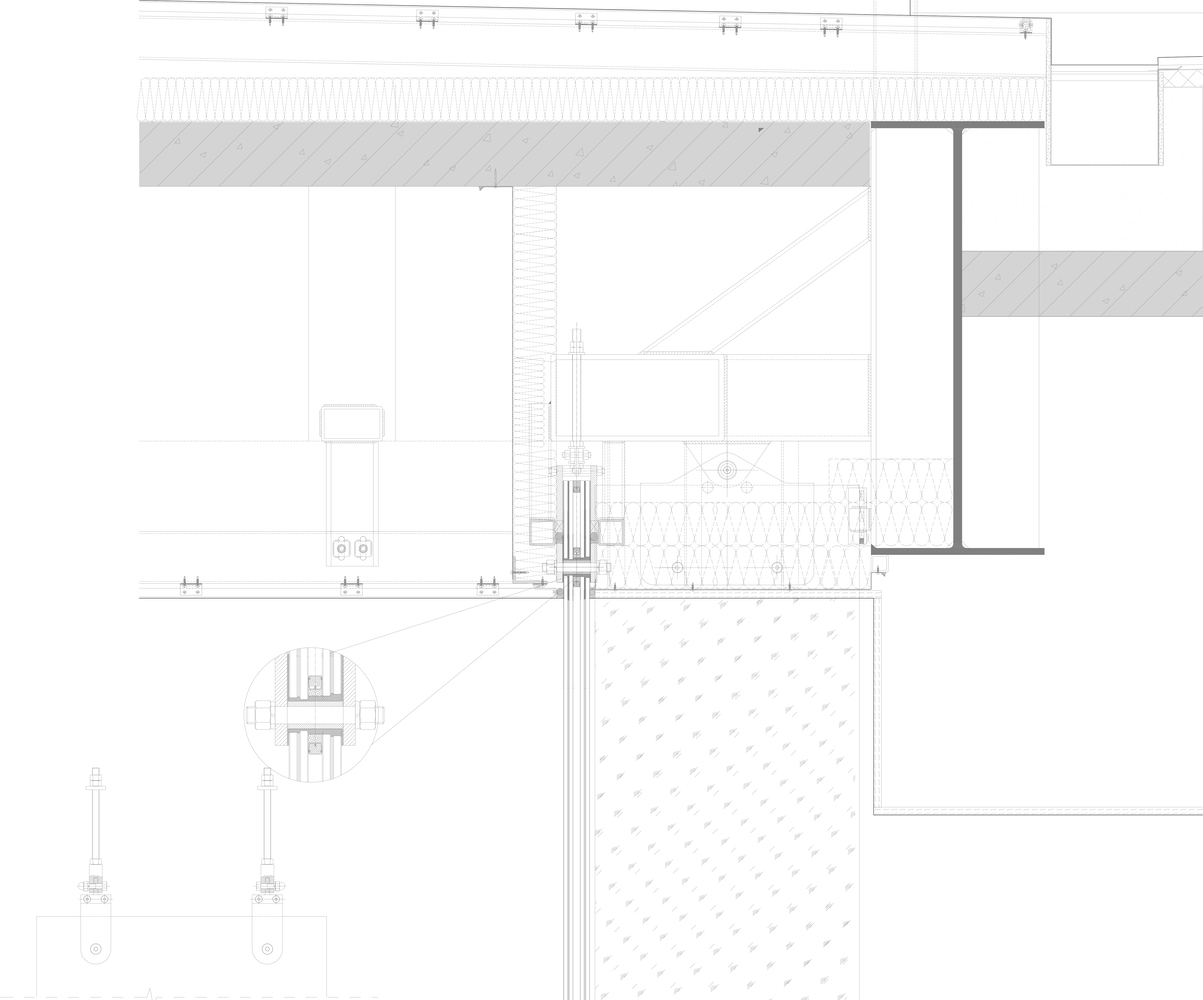
Vertical Flow Through Ramps
By incorporating a 2.6-meter floor height difference and wrapping the building with ramps and stairs, the design fosters interaction and dynamism. These elements not only connect various levels but also serve as public spaces for open classes and community gatherings.




The Architectural Facade: Dynamic Simplicity
Integration with Nature
The building’s facade emphasizes functionality and interaction. Horizontal verandahs and ramps invite children to explore under the sunlight, fostering a connection with Dishui Lake and the surrounding park. The outdoor spaces enhance the architectural narrative by turning movement into visual and experiential art.





Child-Friendly Aesthetics
Pixelated design elements on the facade and interior spaces evoke a sense of playfulness. This approach, paired with hidden mechanical and electrical systems, ensures the center remains visually appealing and practical.




Interior Design: Flexible and Free-Flowing
A Multi-Dimensional Space
The center’s interiors feature free-form floors, eliminating barriers to movement and creating an open, interactive environment. Vertical and horizontal flows are seamlessly integrated, giving children the freedom to explore and engage with their surroundings.



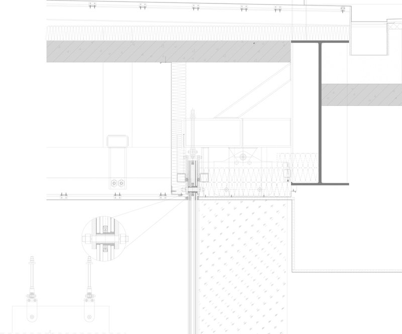
Optimized Ceiling Design
To maintain consistency and flow, mechanical systems are integrated into beams, eliminating traditional ceiling spaces. This optimization creates a smooth extension from outdoor verandahs to indoor ceilings, reinforcing spatial harmony.





Sustainability and Long-Term Impact
Efficient Resource Use
The thoughtful integration of systems ensures energy efficiency and minimizes environmental impact. By incorporating durable materials and natural ventilation, the design supports long-term sustainability.






A Space for Lifelong Learning
By offering multifunctional spaces that adapt to diverse needs, the Lingang Youth Activity Center establishes itself as a hub for exploration, creativity, and learning for future generations.



A Blueprint for Future Youth Spaces
The Lingang Youth Activity Center exemplifies how thoughtful design can transform educational and recreational architecture. By prioritizing interaction, flexibility, and connection with nature, it sets a benchmark for youth-centric spaces worldwide.




All Photographs are work of 3000images
Popular Articles
Popular articles from the community
Louis Malle Cinema: A Limestone Cultural Landmark Revitalizing Community Life in Prayssac
Limestone cinema extension with public forecourt, blending heritage and modern design to create flexible cultural spaces and strengthen community interaction.
An Miên Lumière Cafe by xưởng xép, Ho Chi Minh City, Vietnam
An industrial-inspired café where layered steel and warm light create a dynamic, immersive environment shaped by reflection, depth, and perception.
Atelier Macri Concept Store Interior Design by CASE-REAL
Atelier Macri store features a "ko" counter, walnut wood details, cork displays, blending retail, gallery, and seamless customer experiences.
Inverted Architecture Installation by Studio Link-Arc: Exploring the Intersection of Architecture and Living Organisms
Inverted Architecture Installation by Studio Link-Arc blends mycelium, sustainability, inverted design, ecological cycles, and urban adaptive architecture in Shenzhen.
Similar Reads
You might also enjoy these articles
The Ken Roberts Memorial Delineation Competition (Krob)
As the most senior architectural drawing competition currently in operation anywhere in the world, it draws hundreds of entries each year, awarding the very best submissions in a series of medium-based categories.
Waterfront Redevelopment and Urban Revitalization in Mumbai: Forging a New Dawn for Darukhana
A transformative waterfront redevelopment project reimagining Darukhana’s shipbreaking heritage into an inclusive urban future.
OUT-OF-MAP: A Call for Postcards on Feminist Narratives of Public Space
Rhizoma Design and Research Lab invites artists, designers, architects, researchers, and students to reflect on how feminist perspectives can reshape public space. Selected works will be exhibited in Barcelona, October 2026. Submissions open until 15 April 2026.
Documentation Work on Buddhist Wooden Temple
Architectural syncretism and cultural hybridity: A comparative study of the Buddhist temples in Chattogram Hill tracks
Explore Architecture Competitions
Discover active competitions in this discipline
The International Standard for Design Portfolios
The Global Benchmark for Architecture Dissertation Awards
The Global Benchmark for Graduation Excellence
Challenge to reimagine the Iron Throne
Comments (0)
Please login or sign up to add comments
No comments yet. Be the first to comment!