Longwave Studio Turns a Tainan Penthouse Into a Ritual of Departure and Return
A two-level apartment in Tainan reimagines storage as architectural facade and choreographs the daily act of coming home.
Most apartment interiors begin with a mood board. Longwave Studio's Project E Apartment in Tainan begins with a question: what happens between the moment you step through the front door and the moment you sit down? For a client whose life revolves around camping gear, sneakers, skateboards, and outdoor clothing, that threshold ritual is not trivial. It involves shedding layers, stowing equipment, transitioning from the noise of the city into the stillness of home. Lead architects Leo Wang and Wei Huang seized on a rare spatial opportunity: a penthouse with independent access on both levels, allowing them to place the primary entrance on the upper floor and reroute the vertical circulation entirely.
The result is a 150 square meter interior that reads less like a decorated apartment and more like a sequence of spatial events. Storage walls become architectural facades. A red semi-circular volume near the entry swallows oversized camping equipment. A terracotta cylinder punctures the double-height void. Every decision serves the script of arrival and departure, giving a routine domestic act the weight of something deliberate.
The Double-Height Void as Organizing Spine



The most commanding gesture in the apartment is the double-height living space, which stretches upward through both levels and opens onto a planted terrace through floor-to-ceiling glazing. Vertical timber slat balustrades line the upper edge, filtering light and sightlines without sealing the mezzanine off from the room below. The proportions are generous for a 150 square meter unit, an effect achieved by consolidating service spaces tightly and letting the public zone breathe.
From the overhead vantage, the relationship between indoors and outdoors is legible in a single glance: glazed doors fold open to the planted terrace, collapsing the boundary. This is not a token balcony with a couple of potted herbs. Mature trees and dense planting give the outdoor space genuine presence, functioning as a green room that extends the living area.
The Terracotta Cylinder


A cylindrical terracotta column rises through the interior, threading between levels and giving the apartment a totemic center. Its surface has a warm, mineral quality that offsets the cooler whites and timber tones surrounding it. The column is not purely decorative: it houses a duct, turning mechanical necessity into a sculptural object. Where most apartments would conceal such infrastructure behind drywall, Longwave Studio celebrates it.
At the stair, green marble treads meet a curved white soffit that wraps around the column's base, creating a moment of material collision that feels precise rather than busy. The palette, terracotta against green stone against white plaster, is specific enough to register as intentional without tipping into preciousness.
Screens, Partitions, and Controlled Transparency



Longwave Studio uses ribbed glass extensively, deploying sliding partitions and fixed panels to separate zones without killing sightlines. The kitchen sits behind a ribbed glass screen that lets light pass while blurring the clutter of countertops. A freestanding black partition wall adds a second layer of definition, creating an implied corridor between cooking and dining without closing either space off.
In the hallway, horizontal tiles and ribbed glass panels create a warm amber corridor that glows in the evening. The dining area looks through a sliding screen toward the balcony, framing the view as a picture within a picture. These are not signature moves repeated for effect; each screen responds to the specific adjacency it mediates. The architects seem to understand that in a compact apartment, opacity is a luxury you spend sparingly.
Storage as Facade



The conceptual core of the project is the transformation of storage into something worth looking at. A light wood storage wall with a rounded soffit runs along one side of the apartment, accommodating the client's collection of sneakers and outdoor gear behind a continuous surface that reads as millwork rather than closet. A recessed linear air vent above the soffit completes the detail cleanly.
At the entry sequence from the dark brick courtyard, the transition from exterior to interior is staged through timber-framed doors that open into an illuminated corridor. The hallway corner with circular openings and a tall mirror turns a pass-through into a spatial event. These decisions reinforce the architects' central thesis: that the path from outside to inside should have enough friction and visual reward to make it feel intentional, even sacred.
Domestic Details and Atmosphere



The details repay close attention. A spherical glass pendant light with layered metal discs hangs above the round dining table, casting concentric rings of warm light. A corner nook with floating shelves displays books against a green marble wall, turning a leftover pocket of space into something intimate. A built-in desk alcove with timber paneling and a black pendant lamp suggests that the architects designed not just rooms but specific postures: reading here, working there, eating in this light.
None of these moments are gratuitous. The material palette, timber, terracotta, green marble, ribbed glass, dark tile, is compact, and the architects cycle through it with enough discipline that the apartment coheres even as individual rooms take on distinct identities.
Thresholds and Evening Light



Several of the most evocative images capture the apartment at dusk, when artificial light takes over and the interiors glow against the darkening sky. An angled ceiling plane meets white walls beneath the mezzanine, where a pendant sphere light hangs like a small moon. Through a doorway, a rounded soffit detail and dark floor tiles catch the last of the afternoon light. A paper lantern fixture beside a wall with three circular recesses and a framed drawing below completes a vignette that feels curated but not staged.
These are threshold conditions, moments where you pause between one space and the next. Longwave Studio has a clear sensitivity to what happens at the edges of rooms, where the act of passing through can be either forgettable or quietly ceremonial.
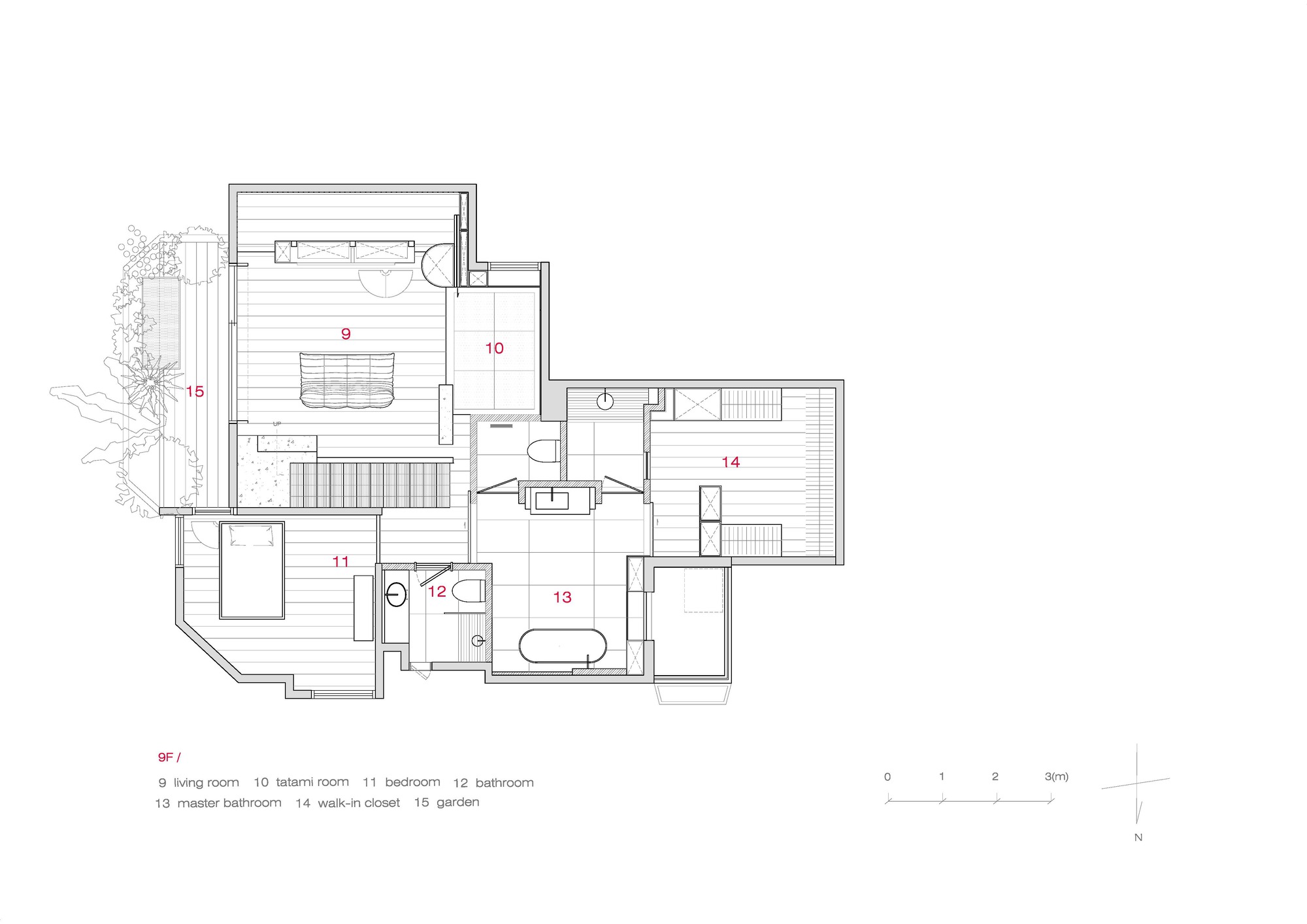
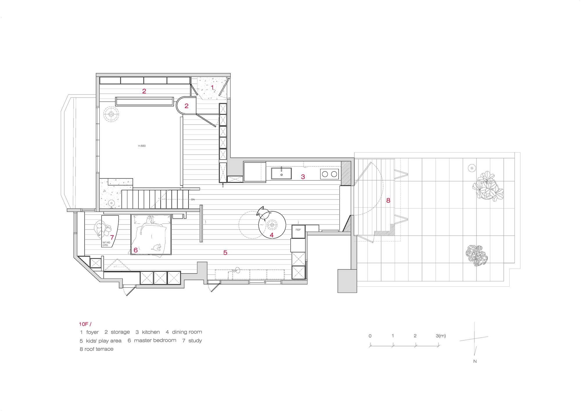
Plans and Drawings


The two floor plans reveal how the dual-entry condition drives the layout. The upper level is organized around the living room, kitchen, and garden terrace, with the primary entrance feeding directly into the social spaces. The lower level, L-shaped and more private, contains bedrooms and bathrooms with a secondary entrance. The angular geometry of the plan, far from orthogonal, forces the architects into oblique walls and tapered rooms that they handle with confidence. The attached terrace with its trees reads as a genuine outdoor room, not an afterthought.
Why This Project Matters
Apartment interiors rarely make an argument. They make choices: this tile, that fixture, a mood. Project E Apartment is different because it starts with a thesis about how a person moves through domestic space, specifically the choreography of arriving home and leaving again. For a client who hauls camping gear through the front door on a regular basis, that choreography is physical and spatial, not merely symbolic. The design takes that seriously, building an entire sequence of storage, transition, and threshold into the plan rather than tacking it on as an entryway bench and a coat hook.
Longwave Studio demonstrates that even within the constraints of a 150 square meter penthouse, interior architecture can operate with the ambition and rigor of a building project. The terracotta column, the ribbed glass partitions, the green marble stair treads: these are not decorative flourishes but architectural elements that structure the experience of the home. In a market saturated with minimal-chic apartments that dissolve into visual silence, this one has the conviction to be specific.
Project E Apartment by Longwave Studio (lead architects: Leo Wang, Wei Huang), located in Tainan, Taiwan. 150 m², completed in 2025. Photography by Dayform Studio.
About the Studio
Share Your Own Work on uni.xyz
If projects like this are the kind of work you want to make, uni.xyz is a place to publish your own, find collaborators, and enter design competitions.
Popular Articles
Popular articles from the community
Gunawarman 35: Jakarta's Corner of Quiet Complexity
WOFF's mixed-use building in Jakarta pairs translucent glass block walls with a buff brick cylinder to hold coffee, wellness, and work under one roof.
Bood Design Bureau Splits a Gilan Residence in Two to Let the Forest In
Double Side House negotiates privacy and openness through interlocking concrete volumes and planted courtyards in northern Iran's humid Caspian lowlands.
A Park Building That Wants to Be a Landscape
Omrania's Operations & Maintenance Building at King Salman Park dissolves industrial program into Riyadh's largest green infrastructure.
MAKER architecten Rewire a 1972 Brutalist Dormitory on the VUB Campus as a Living Lab
A modular renovation strategy in Belgium breathes new life into Willy Van Der Meeren's modernist student housing without erasing its concrete bones.
Similar Reads
You might also enjoy these articles
STEM School Mechelen by LAVA Architecten: A Future-Ready Educational Architecture in Belgium
Flexible, sustainable STEM school in Mechelen featuring modular classrooms, acoustic innovation, and energy-efficient design supporting future-focused collaborative learning environments.
Marvila Apartment Renovation in Lisbon: A Bright Minimalist Attic Transformation by KEMA Studio
Bright attic transformed into minimalist Lisbon apartment with skylights, sustainable materials, open plan layout, and industrial-inspired interior design elements.
20 Most Popular Commercial Architecture Projects of 2025
From sustainable market concepts to heritage factories, the commercial buildings and proposals that drew the most attention on uni.xyz this year.
Mantiqueira House by SysHaus and M Magalhães Estúdio
A linear modular house embedded in Serra da Mantiqueira, integrating panoramic views, sustainable prefabrication, minimal terrain impact, and contemporary interiors.
Comments (0)
Please login or sign up to add comments
No comments yet. Be the first to comment!