Los Pinos House: A Celebration of Wood Frame Architecture in Viña del Mar
A sustainable wood frame architecture house in Chile blending modular design, light, and landscape in poetic structural expression.
Introduction to the Los Pinos House
Nestled in the elevated terrain of Viña del Mar, Chile, Los Pinos House by Espiral Arquitectos stands as a refined example of wood frame architecture house design. Conceived in 2024, this 227 m² residence harmonizes with its coastal valley environment and pine forests, drawing on a structure-first design philosophy. With its lightweight framework, efficient construction methods, and expressive material palette, the house embodies a sustainable and poetic response to topography, climate, and habitation.



Design Concept: Framing Architecture Through Structure
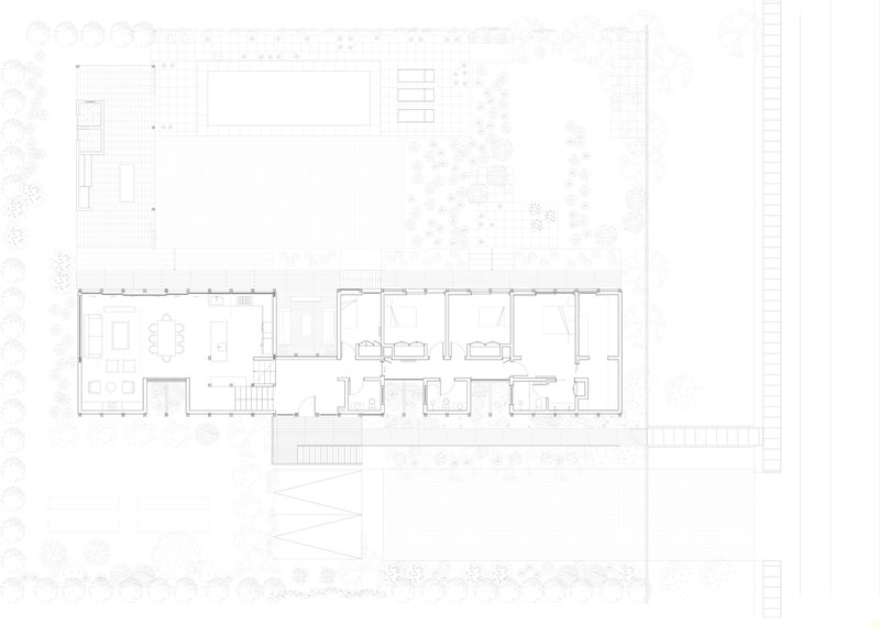
The core of Los Pinos House is a system of 26 repetitive wood frames, methodically organized from axis A to Z. Spaced uniformly at 122 cm intervals, these frames create a continuous skeletal rhythm that forms both the load-bearing structure and the architectural spatiality. The frames are crafted with slender wooden elements and joined using half-lap connections, allowing structural clarity and tectonic articulation. This modular grid not only optimizes standard wood dimensions but also aligns precisely with the house’s programmatic layout, allowing for flexibility and coherence.



Materiality and Structural Integrity
The choice of wood as the primary material extends beyond aesthetic appeal—it is a deliberate tectonic and environmental decision. The 122 cm x 122 cm grid ensures minimal material waste, and the use of locally sourced wood reduces the project’s carbon footprint. Every structural frame slightly hovers above the ground on piles, minimizing ecological impact and allowing the house to breathe with the land. These frames remain visible throughout the interior and exterior, serving as an honest expression of the construction process and celebrating the craft of building.



Spatial Organization and Topographic Response
The architecture evolves along the east-west gradient of the sloped site. The frame heights subtly decrease in this direction, naturally separating the public and private zones of the home. The living, dining, and kitchen areas enjoy more generous volumes and northern exposure, while the more intimate bedrooms are situated in lower, cozier enclosures. This transition not only responds to the land’s natural contours but also generates a dynamic spatial experience through volume modulation.


Light, Privacy, and Environmental Integration
Strategically designed to optimize light and ventilation, Los Pinos House opens toward the north with transparent surfaces that invite natural light and frame landscape views. In contrast, its southern face is deliberately opaque, shielding the interiors from neighboring views and prevailing winds. The spatial boundary between interior and exterior is softened by continuous circulation paths that project beyond the internal footprint—ramps, walkways, stairs, and terraces integrate seamlessly with the landscape, guided by the same structural frames that shape the house itself.



Efficient Construction and Sustainability
Prefabrication played a pivotal role in the construction process. All frames were pre-assembled on-site, significantly reducing wet works and accelerating the building timeline. The reliance on local materials and proximity to suppliers further enhanced environmental efficiency, making the project a commendable example of sustainable wood frame architecture house construction. By reducing transportation distances and material processing, the design not only addresses aesthetic and structural concerns but also actively minimizes environmental impact.



A Poetic Framework in the Forest
Los Pinos House encapsulates the essence of wood frame architecture house design: a structural clarity rooted in modular efficiency, an expressive use of timber, and a deep sensitivity to landscape and light. Espiral Arquitectos transforms what could have been a conventional home into an architectural statement—an ode to structure, site, and sustainability. Through this elegant framework, the house achieves a dialogue between permanence and lightness, shelter and openness, and ultimately, nature and dwelling.



All Photographs are works of Marcos Zegers
Popular Articles
Popular articles from the community
Marvila Apartment Renovation in Lisbon: A Bright Minimalist Attic Transformation by KEMA Studio
Bright attic transformed into minimalist Lisbon apartment with skylights, sustainable materials, open plan layout, and industrial-inspired interior design elements.
Filtering Space: A Gradual Spatial Experience
From urban intensity to spatial calm.
Rede Arquitetos Builds an Open-Air School in Fortaleza That Doubles as a Neighborhood Living Room
Educar II SESC-CE folds sports, dance, and community gathering into a courtyard campus wrapped in mesh and tropical color.
Split House: A Compact Urban Home Blending Privacy, Light, and Flexible Living in Japan
Compact Japanese home featuring DOMA space, flexible café potential, passive lighting, privacy zoning, and sustainable urban living design.
Similar Reads
You might also enjoy these articles
20 Most Popular Commercial Architecture Projects of 2025
From sustainable market concepts to heritage factories, the commercial buildings and proposals that drew the most attention on uni.xyz this year.
Free Architecture Competitions You Can Enter Right Now
No entry fees, real prizes. Here are the best free architecture competitions open for submissions in 2026.
Top 15 Architecture Competitions to Enter in 2026
From student-friendly idea competitions to prestigious international awards, here are the best architecture competitions open for entries in 2026. Updated regularly.
DIY & Engineering in Computational Design : Enter the BeeGraphy Design Awards
Showcase Your Creativity with Computational Design and Open Source Projects
Explore Architecture Competitions
Discover active competitions in this discipline
The International Standard for Design Portfolios
The Global Benchmark for Architecture Dissertation Awards
The Global Benchmark for Graduation Excellence
Challenge to reimagine the Iron Throne
Comments (0)
Please login or sign up to add comments
No comments yet. Be the first to comment!