Louis-Saint-Laurent School Expansion: Modernizing Educational Spaces in Canada
The Louis-Saint-Laurent School expansion redefines educational architecture in Canada, blending modern learning spaces with heritage design elements.
A Contemporary Extension to Louis-Saint-Laurent School
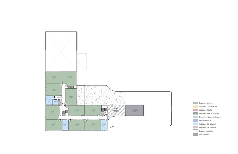
The Louis-Saint-Laurent School expansion, designed by STGM Architectes in collaboration with Ateliers Architecture, is a landmark project redefining educational architecture in Canada. Located in a community-oriented setting, the school’s transformation merges functionality with contemporary design, creating a modern learning environment while preserving the character of the original 1959 building. The extension adds five preschool classrooms, a learning hub, a new entrance hall, and an outdoor classroom, all integrated into a cohesive architectural narrative.



Harmonizing the Past and Present Through Expansion
The original Louis-Saint-Laurent School, built in 1959, featured a classic two-story structure with a sloped roof and red brick exterior—a quintessential example of mid-20th-century primary school architecture. The expansion project sought to complement this heritage while introducing modern educational spaces that reflect the evolving needs of students and teachers.


STGM Architectes and Ateliers Architecture approached the project with a vision to seamlessly integrate the new addition with the existing building. The extension respects the scale and materiality of the original structure while introducing contemporary design elements that emphasize openness, natural light, and flexibility.


A Learning Hub at the Core of the Expansion
Central to the Louis-Saint-Laurent School expansion is the learning hub, designed as a versatile space encouraging collaboration and creativity among students. Accessed through the new entrance hall, the hub serves as the heart of the school, connecting the old and new sections. This space fosters interactive learning experiences, emphasizing the importance of adaptable environments in modern education.


The renovation of the existing building reconfigured administrative areas to enhance operational efficiency. The staff room was relocated adjacent to the main office, improving accessibility and streamlining communication. Additionally, previously underutilized classrooms on the ground floor were transformed into dedicated arts and music spaces, enhancing the school's cultural offerings.


Enhancing Student Circulation and Outdoor Connectivity
The Louis-Saint-Laurent School expansion prioritizes student movement and outdoor engagement. Three new cloakrooms were introduced on the ground floor, facilitating smooth transitions between indoor and outdoor spaces. These additions alleviate congestion in upper-level corridors, improving circulation throughout the building.

A significant feature of the project is the creation of an outdoor classroom on the roof of the extension. This innovative space offers students an opportunity to engage with nature while learning, promoting environmental awareness and hands-on educational experiences.

Near the gymnasium, spatial reorganization provides direct access to the community, fostering stronger ties between the school and local residents. This design approach reflects the growing trend of educational buildings serving as community hubs, extending their function beyond school hours.

Architectural Expression: Wood, Brick, and Curves
The architectural language of the Louis-Saint-Laurent School expansion is defined by its harmonious blend of wood, brick, and curved forms. A wooden structural system underpins the extension, contributing warmth and sustainability to the design. Clay brick, a material renowned for its durability and timelessness, clads the exterior, creating a visual dialogue with the original red brick facade.

A contrasting color palette distinguishes the new addition while ensuring seamless integration with the existing school. Recessed areas around entrances introduce visual depth and enhance protection from the elements. In these recesses, red-tinted composite cement panels provide a robust and welcoming aesthetic, reinforcing the school's identity as a nurturing environment for young learners.

Curved architectural elements punctuate both the exterior and interior, echoing the undulating landscapes characteristic of the region. These organic forms soften the building’s geometry, instilling a sense of movement and fluidity that contrasts with the rigid lines of traditional school architecture.

Maximizing Natural Light and Spatial Fluidity
Natural light plays a pivotal role in the Louis-Saint-Laurent School expansion. Large windows and generous glazing punctuate the facades, flooding classrooms and communal spaces with daylight. This design choice enhances the learning environment, contributing to student well-being and academic performance.

Inside, the curved motifs extend to the spatial arrangement, creating fluid transitions between classrooms, corridors, and common areas. This approach fosters a sense of openness, encouraging students to explore their surroundings and interact freely with peers and educators.

A Collaborative Architectural Vision
The success of the Louis-Saint-Laurent School expansion is rooted in the collaborative partnership between STGM Architectes and Ateliers Architecture. Together, they envisioned a project that not only meets the functional requirements of a growing school but also elevates the architectural standard for educational spaces in Canada.

This extension exemplifies how thoughtful design can transform a traditional school into a vibrant, future-oriented environment that inspires learning and strengthens community bonds.


A Benchmark for Educational Architecture
The Louis-Saint-Laurent School expansion stands as a benchmark for contemporary educational architecture in Canada. It demonstrates how schools can evolve to accommodate modern teaching methodologies while respecting their architectural heritage. Through its emphasis on natural materials, innovative learning spaces, and outdoor integration, the project sets a new standard for the design of schools that nurture both academic excellence and student well-being.



All Photographs are works of Maxime Brouillet
Popular Articles
Popular articles from the community
Fifth NRE Jazz Club – De Bever Architecten: Eindhoven’s Revitalized Cultural Hub
Historic gas factory transformed into Fifth NRE Jazz Club blending modern sustainability, jazz culture, dining, and heritage architecture seamlessly.
A Contemporary Take on Iranian Residential Architecture
A modern interior design in Mashhad that reinterprets brick, light, and spatial flow to create a warm, contemporary residential architecture.
Inverted Architecture Installation by Studio Link-Arc: Exploring the Intersection of Architecture and Living Organisms
Inverted Architecture Installation by Studio Link-Arc blends mycelium, sustainability, inverted design, ecological cycles, and urban adaptive architecture in Shenzhen.
Solar Steam: A Climate-Responsive Architecture That Redefines the Monument
A climate-responsive memorial architecture that transforms heat, decay, and time into a living system reflecting humanity’s ecological impact.
Similar Reads
You might also enjoy these articles
The Ken Roberts Memorial Delineation Competition (Krob)
As the most senior architectural drawing competition currently in operation anywhere in the world, it draws hundreds of entries each year, awarding the very best submissions in a series of medium-based categories.
Waterfront Redevelopment and Urban Revitalization in Mumbai: Forging a New Dawn for Darukhana
A transformative waterfront redevelopment project reimagining Darukhana’s shipbreaking heritage into an inclusive urban future.
OUT-OF-MAP: A Call for Postcards on Feminist Narratives of Public Space
Rhizoma Design and Research Lab invites artists, designers, architects, researchers, and students to reflect on how feminist perspectives can reshape public space. Selected works will be exhibited in Barcelona, October 2026. Submissions open until 15 April 2026.
Documentation Work on Buddhist Wooden Temple
Architectural syncretism and cultural hybridity: A comparative study of the Buddhist temples in Chattogram Hill tracks
Explore Architecture Competitions
Discover active competitions in this discipline
The International Standard for Design Portfolios
The Global Benchmark for Architecture Dissertation Awards
The Global Benchmark for Graduation Excellence
Challenge to design public laboratory
Comments (0)
Please login or sign up to add comments
No comments yet. Be the first to comment!