Luxury Barn-Style Architecture: CCB House by Kiko Salomão and Marcio Tanaka
CCB House redefines luxury barn-style architecture with refined materials, stunning landscapes, and a seamless indoor-outdoor living experience.
Luxury barn-style architecture is redefining contemporary residential design by merging rustic elements with modern aesthetics and high-end finishes. CCB House, designed by Kiko Salomão and Marcio Tanaka, is a striking example of this architectural approach. Located in Fazenda Boa Vista, Brazil, the residence spans 1,700 square meters on an 8,000-square-meter plot, seamlessly integrating functionality, natural landscapes, and a refined material palette.


Architectural Concept and Design
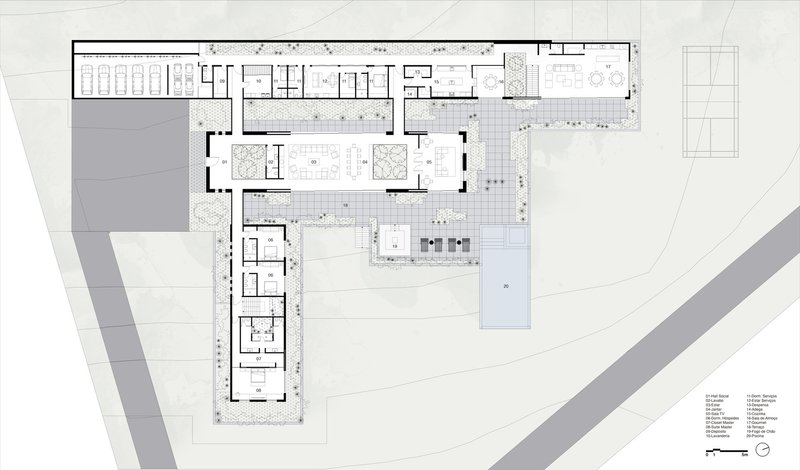
CCB House consists of three primary structures, two of which resemble traditional barns, clad in long bricks in four distinct shades of gray. The third block, constructed of concrete with a flat roof, introduces a contrasting visual element with its mini wave perforated sheet cladding. Together, these volumes establish a refined yet rustic aesthetic that blends seamlessly with the surrounding environment.

Positioned thoughtfully on the site's topography, the residence is elevated by 11 meters on a concrete platform, ensuring all three structures share the same level. This strategic elevation maximizes views of the surrounding valleys, creating a harmonious dialogue between the built environment and the natural landscape.

Spatial Organization and Interior Layout
The central social barn, measuring 37 meters by 9 meters, functions as the heart of the residence. It houses an entrance hall, a spacious living room, and a home theater, all interwoven with internal gardens that enhance the indoor-outdoor experience. This integration of greenery within the architecture fosters a sense of openness and tranquility.

The intimate barn, measuring 25 meters by 9 meters, is dedicated to private living spaces. It includes the master suite, guest suites, and an intimate lounge, while four additional family suites are located on the lower level. The arrangement of spaces prioritizes both privacy and connectivity, making it an ideal retreat for families and guests alike.

Outdoor Living and Landscape Integration
Between the two primary barns, an expansive outdoor patio serves as an entertainment hub. A centrally placed fireplace provides warmth and ambiance, while an infinity pool extends toward the landscape, visually merging with the horizon. This outdoor space is designed to foster relaxation and social interaction, reinforcing the seamless indoor-outdoor connection that characterizes luxury barn-style architecture.

Landscaping, designed by Rodrigo Oliveira, plays a crucial role in enhancing the residence’s ambiance. Carefully selected plant species create a gradual transition from structured architectural elements to the more natural surroundings. Denser plantings at the base provide privacy and enclosure, while lighter, more delicate vegetation on the ground level maintains an airy, open feel.


Sustainable Design and Materiality
The material choices and structural elements of CCB House highlight a commitment to both aesthetics and sustainability. The perforated mini wave sheets on the service block allow for passive ventilation, reducing reliance on artificial cooling systems. The generous glass openings maximize natural daylight, improving energy efficiency while maintaining a strong connection with the outdoors.


The two-slope roof features strategically placed openings that accommodate internal gardens, enhancing ventilation and air circulation within the home. This biophilic approach ensures a healthy and comfortable living environment while minimizing the ecological footprint of the residence.



CCB House exemplifies luxury barn-style architecture by fusing traditional rural elements with contemporary sophistication. With its carefully curated material palette, seamless integration with the landscape, and thoughtfully designed living spaces, the residence embodies the perfect balance between rustic charm and modern luxury. The project sets a new standard for high-end residential design, demonstrating how barn-inspired structures can be both elegant and highly functional in a contemporary setting.



All photographs are works of Fran Parente
Popular Articles
Popular articles from the community
A Park Building That Wants to Be a Landscape
Omrania's Operations & Maintenance Building at King Salman Park dissolves industrial program into Riyadh's largest green infrastructure.
Cafe MADA: A Chiang Rai Pavilion in a Mango Orchard
BodinChapa Architects threaded a 254 m² black-roofed cafe through an existing mango orchard in Chiang Rai, Thailand, built around mature trees.
Residence BB 214: Quiet Precision in Ludhiana
Minimalist Architecture & Design Studio composes a residence of white volumes, filtered light, and deliberate restraint in Punjab's urban fabric.
Filtering Space: A Gradual Spatial Experience
From urban intensity to spatial calm.
Similar Reads
You might also enjoy these articles
Filtering Space: A Gradual Spatial Experience
From urban intensity to spatial calm.
The Ken Roberts Memorial Delineation Competition (Krob)
As the most senior architectural drawing competition currently in operation anywhere in the world, it draws hundreds of entries each year, awarding the very best submissions in a series of medium-based categories.
Waterfront Redevelopment and Urban Revitalization in Mumbai: Forging a New Dawn for Darukhana
A transformative waterfront redevelopment project reimagining Darukhana’s shipbreaking heritage into an inclusive urban future.
OUT-OF-MAP: A Call for Postcards on Feminist Narratives of Public Space
Rhizoma Design and Research Lab invites artists, designers, architects, researchers, and students to reflect on how feminist perspectives can reshape public space. Selected works will be exhibited in Barcelona, October 2026. Submissions open until 15 April 2026.
Explore Architecture Competitions
Discover active competitions in this discipline
The International Standard for Design Portfolios
The Global Benchmark for Architecture Dissertation Awards
The Global Benchmark for Graduation Excellence
Challenge to reimagine the Iron Throne
Comments (0)
Please login or sign up to add comments
No comments yet. Be the first to comment!