Luz House: A Modern Haven in the Heritage District of Carrasco
Luz House blends modern minimalism with traditional design, offering a private, functional, and light-filled family residence in Montevideo.
Luz House, a striking architectural masterpiece by iHouse estudio, is located in the heart of the heritage district of Carrasco, Montevideo. With a design that blends modern elements and timeless elegance, this residential project offers a seamless integration of nature, light, and privacy. Designed as a permanent family residence, the house embodies both functionality and aesthetic appeal, catering to the client’s vision while preserving the essence of the surrounding urban fabric.


A Modern Take on Traditional Architecture
The project emerged as a unique challenge for iHouse estudio, known for its modular and prefabricated housing solutions. However, this opportunity to work with traditional on-site construction techniques fascinated the team. The result is a contemporary home that reinterprets the modern estate style typical of the garden neighborhood where it is located.
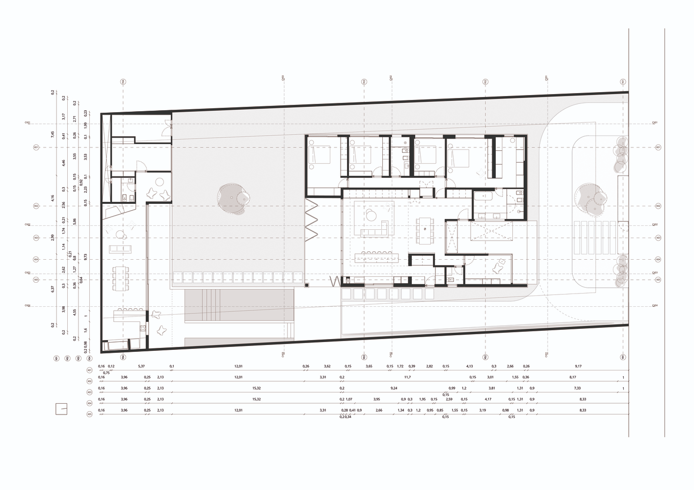
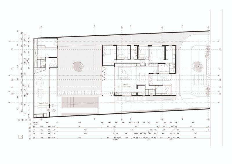
The plot spans 1,036 m² with a north-facing facade, surrounded by a diverse mix of existing architectural styles. The design aims to respect the neighborhood’s heritage while introducing innovative solutions that enhance the living experience.


Functional and Private Living Spaces
The client’s specific requirements guided the project’s layout. The house was designed to function entirely on a single level, incorporating four bedrooms, an office, a gym, and a playroom. The layout separates the private and social zones to maintain privacy while embracing natural light. The bedrooms are grouped in a wing that functions independently from the social areas, offering an oasis of calm and seclusion. The entire design process also prioritized security without sacrificing the expansive glass facades that invite light into the home.


Maximizing Land Use with Thoughtful Privacy
The architectural concept divides the house into two distinct strips, enhancing privacy while optimizing the use of the land. The first strip stretches along the west facade, housing all the private spaces, such as the bedrooms and bathrooms. The second strip serves as the heart of the home, connecting the social areas while maintaining access to the outdoor spaces.
The design introduces a series of patios and skylights, which flood the living areas with natural light while maintaining a strong connection to the surrounding nature. A glazed barbecue area at the back of the house not only serves as a space for outdoor dining and activities but also includes a gym and playroom, expanding the home’s functionality.


Robust, Minimalist Design
Luz House’s architectural form is defined by two reinforced concrete slabs, which form the structural backbone of the home. Between these slabs, a permeable skin allows the degree of openness to vary, adjusting to the needs of the internal spaces and ensuring privacy without relying on additional barriers.
The house’s robust materials, such as concrete and steel, provide both strength and security while minimizing maintenance requirements. The minimalist approach to the interior design emphasizes clean lines and simplicity, with polished monolithic floors that echo the traditional estates of the neighborhood. The use of natural wood for carpentry and furniture creates a balance between modernity and classic elegance.


Interior: Classic Meets Contemporary
Inside, the 250m² space is transformed into a cozy and inviting home. The interior design blends historical elements with contemporary touches, reflecting the dynamic contrasts present in the architectural approach. The spacious yet intimate atmosphere is a result of carefully chosen materials, a neutral color palette, and an emphasis on natural light. The home’s minimalist style allows the occupants to enjoy a peaceful, modern living environment while respecting the heritage of the area.
With Luz House, iHouse estudio has created a perfect balance between modern architecture and historical preservation, making it an exemplary model of contemporary residential design.

All Photographs are works of Aldo Lanzi
Popular Articles
Popular articles from the community
Flamboyant House by Juliana Camargo + Prumo Projetos
Modern Brazilian house integrating existing tree, pool, and volumes with glass, wood, and transitional spaces blending interior, exterior, and landscape seamlessly.
Treehouse Apartment: A Warm Timber Interior Blending Craft, Play, and Contemporary Living
Warm timber apartment with integrated treehouse, combining natural materials, craftsmanship, and playful design to create a flexible, family-oriented living environment.
Louis Malle Cinema: A Limestone Cultural Landmark Revitalizing Community Life in Prayssac
Limestone cinema extension with public forecourt, blending heritage and modern design to create flexible cultural spaces and strengthen community interaction.
Atelier Macri Concept Store Interior Design by CASE-REAL
Atelier Macri store features a "ko" counter, walnut wood details, cork displays, blending retail, gallery, and seamless customer experiences.
Similar Reads
You might also enjoy these articles
The Ken Roberts Memorial Delineation Competition (Krob)
As the most senior architectural drawing competition currently in operation anywhere in the world, it draws hundreds of entries each year, awarding the very best submissions in a series of medium-based categories.
Waterfront Redevelopment and Urban Revitalization in Mumbai: Forging a New Dawn for Darukhana
A transformative waterfront redevelopment project reimagining Darukhana’s shipbreaking heritage into an inclusive urban future.
OUT-OF-MAP: A Call for Postcards on Feminist Narratives of Public Space
Rhizoma Design and Research Lab invites artists, designers, architects, researchers, and students to reflect on how feminist perspectives can reshape public space. Selected works will be exhibited in Barcelona, October 2026. Submissions open until 15 April 2026.
Documentation Work on Buddhist Wooden Temple
Architectural syncretism and cultural hybridity: A comparative study of the Buddhist temples in Chattogram Hill tracks
Explore Architecture Competitions
Discover active competitions in this discipline
The International Standard for Design Portfolios
The Global Benchmark for Architecture Dissertation Awards
The Global Benchmark for Graduation Excellence
Challenge to reimagine the Iron Throne
Comments (0)
Please login or sign up to add comments
No comments yet. Be the first to comment!