Lyco House: A Sustainable Barn Conversion in Belgium by OYO Architects
Lyco House by OYO Architects transforms a Belgian barn into a sustainable home, blending heritage, modern design, and ecological innovation.
Transforming a Barn into a Contemporary Home
Lyco House by OYO Architects is a remarkable example of sustainable barn conversion architecture in Pepingen, Belgium. Situated less than 30 kilometers from Brussels, this 312 m² home redefines rural living by transforming a historic barn into a light-filled, modern residence. The project preserves the essence of the traditional agricultural structure while introducing innovative design strategies that enhance comfort, sustainability, and a strong connection with the surrounding countryside.





Architectural Concept and Design Intervention
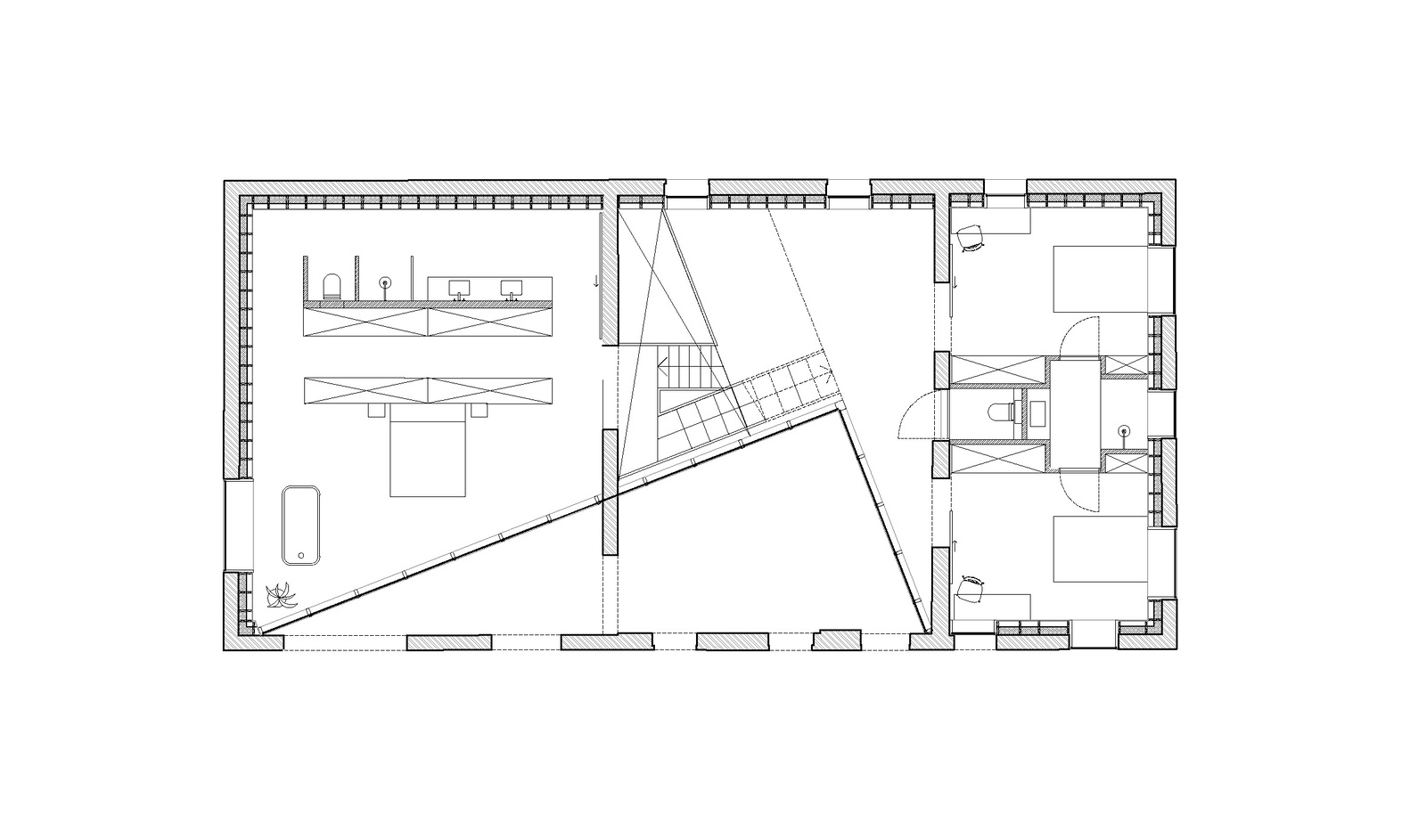
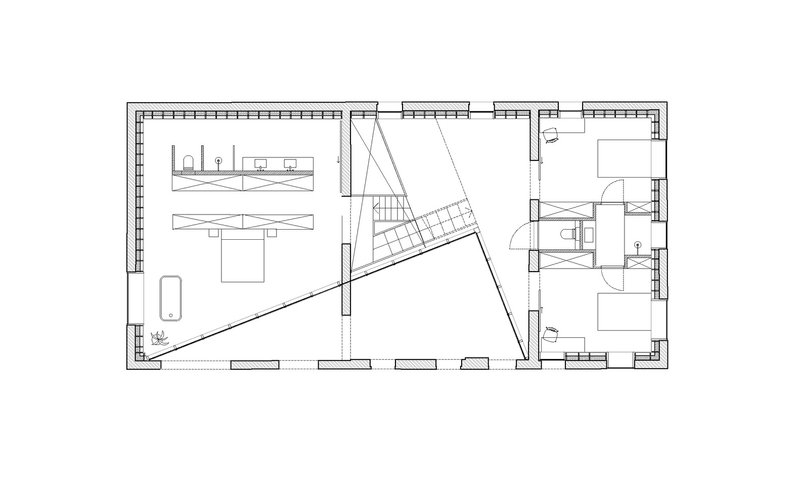
The central idea of Lyco House lies in a bold architectural move: a triangular cut made into the barn’s original volume. This intervention creates a private inner courtyard, allowing natural light to flood into the previously dark interiors while ensuring seamless integration between indoor and outdoor spaces.



From the street, the house retains the character of a traditional barn, preserving the rural identity of Pepingen’s landscape. In contrast, the rear façade reveals a strikingly modern transformation, characterized by openness, transparency, and framed views of the surrounding fields.



As the architects note, the design seeks to create “a secure and homely feeling inside while framing expansive views towards the rural landscape.”



Spatial Organization and Interior Experience
The interior of Lyco House is defined by dynamic spatial compositions, multiple levels, and double-height spaces that bring a sense of openness and movement. At the core of the design stands a custom-built green steel staircase designed by Atelier Manus. This sculptural element connects the various living spaces—linking bedrooms with the central living area, the kitchen with the garden, and the living room with the elevated terrace.



The heart of the house is the kitchen, anchored by a salmon-pink island that contrasts beautifully with light pine wood ceilings and polished grey cement flooring. Bespoke furniture in darker wood by Hout en Interieur adds depth and warmth to the interiors. A few steps above the kitchen, the living room opens onto a terrace with expansive glazing, offering uninterrupted views of the surrounding landscape.




The interiors embrace a palette of soft neutral tones enhanced by subtle accents of terracotta and green, creating a serene and natural atmosphere.


Sustainability and Ecological Strategies
Sustainability is at the core of the Lyco House transformation. OYO Architects incorporated circular and ecological materials throughout the renovation process, ensuring minimal environmental impact. The old asbestos roof was replaced, and solar panels alongside advanced eco-technologies were integrated to enhance energy efficiency.


Water management was also carefully addressed. Excess rainwater is channeled into a natural pond where it is purified and slowly absorbed into the soil, creating a self-sustaining ecological system.


Landscape architect Denis Dujardin further enhanced the project with a planting scheme of local vegetation, blending the home seamlessly into its rural setting.


A New Definition of Rural Living
Lyco House exemplifies how barn conversion can successfully merge historical preservation with contemporary design and ecological responsibility. By respecting the original structure while introducing modern interventions, OYO Architects created a residence that is both sustainable and timeless.



This project stands as a model of sustainable barn conversion architecture, showcasing how adaptive reuse can preserve heritage, embrace innovation, and provide a forward-looking vision for modern rural living.


All Photographs are works of Karen Van der Biest
Popular Articles
Popular articles from the community
Split House: A Compact Urban Home Blending Privacy, Light, and Flexible Living in Japan
Compact Japanese home featuring DOMA space, flexible café potential, passive lighting, privacy zoning, and sustainable urban living design.
Gads Hill Early Learning Center by JGMA: Adaptive Reuse Shaping Community-Focused Educational Architecture
Adaptive reuse transforms fragmented structure into vibrant early learning center with playful façade, natural light, and community-focused sustainable design.
Atelier Macri Concept Store Interior Design by CASE-REAL
Atelier Macri store features a "ko" counter, walnut wood details, cork displays, blending retail, gallery, and seamless customer experiences.
Similar Reads
You might also enjoy these articles
Free Architecture Competitions You Can Enter Right Now
No entry fees, real prizes. Here are the best free architecture competitions open for submissions in 2026.
Top 15 Architecture Competitions to Enter in 2026
From student-friendly idea competitions to prestigious international awards, here are the best architecture competitions open for entries in 2026. Updated regularly.
DIY & Engineering in Computational Design : Enter the BeeGraphy Design Awards
Showcase Your Creativity with Computational Design and Open Source Projects

Innovative Design Solutions: Award-Winning Projects from Recent Architecture Competitions
Exploring award-winning architectural projects shaping the future of design, sustainability, and community.
Explore Architecture Competitions
Discover active competitions in this discipline
The International Standard for Design Portfolios
The Global Benchmark for Architecture Dissertation Awards
The Global Benchmark for Graduation Excellence
Challenge to reimagine the Iron Throne
Comments (0)
Please login or sign up to add comments
No comments yet. Be the first to comment!