Marche Thonglor by Contour Architect: A Lush Urban Oasis Redefining Bangkok’s Retail Experience
Marche Thonglor is a mixed-use green oasis in Bangkok, blending retail, office spaces, and biophilic design seamlessly.
Located in the dynamic heart of Thonglor, Bangkok’s renowned lifestyle district famous for its creative scene, boutique shops, and vibrant nightlife, Marche Thonglor represents a significant transformation of an urban site with deep community roots. Developed by Siam Future Development, this project reimagines the former Marketplace Thonglor, a community mall whose 15-year lease recently ended. With rising land value and increased foot traffic in the area, the opportunity was ripe for reinvention.
A Vibrant Urban Revival in the Heart of Bangkok


Expanding Potential: From Community Mall to Mixed-Use Landmark
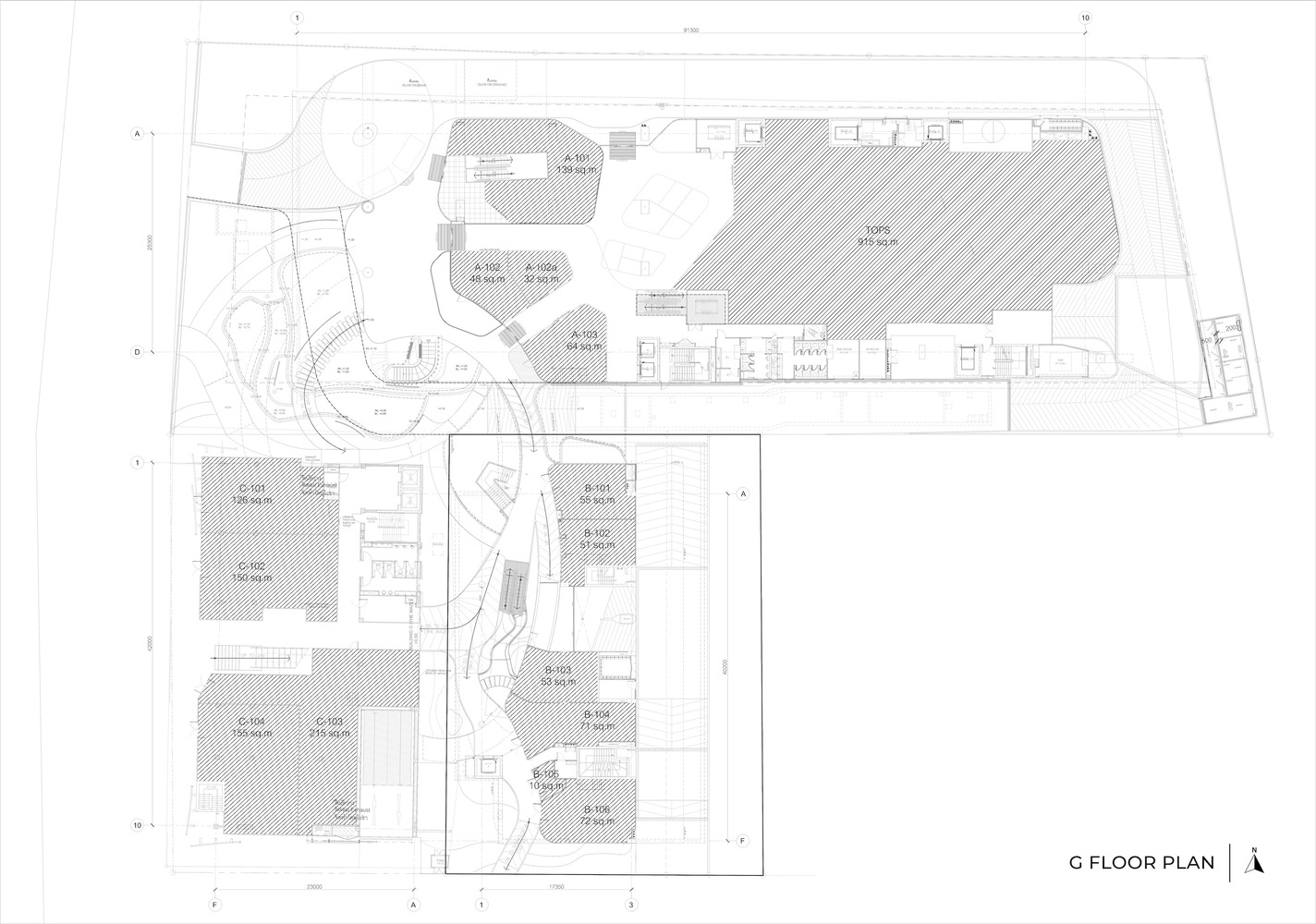
In response to the evolving urban fabric of Thonglor, which is now a creative hub for design studios, co-working spaces, and upscale entertainment venues, Contour Architect designed Marche Thonglor as a mixed-use complex that blends office, retail, and leisure. What was once a modest 5,000 m² shopping space has been expanded into a sprawling 60,000 m² development, now housing 13,700 m² of office space and 46,000 m² dedicated to retail and lifestyle outlets.


Architectural Narrative: Spiral Connectivity and Seamless Circulation
The design is defined by the three newly built structures and the revitalized "The Maze" building, all of which are unified by a dramatic white spiral ramp. This architectural feature not only captures attention with its sculptural, roller-coaster-like form but also serves a practical purpose: it fulfills legal accessibility requirements while providing a fully wheelchair-friendly circulation route. This continuous, open ramp encourages fluid movement and eliminates dead ends, ensuring a pleasant, uninterrupted experience for visitors across all three zones.


A Green Haven in the Urban Core
More than just a retail space, Marche Thonglor is conceived as a green sanctuary in one of the city’s most energetic districts. Mature Bodhi and Banyan trees from the original site were preserved and incorporated into a lush central courtyard, which now acts as a multi-functional green plaza. Whether you’re waiting for a restaurant table, enjoying a coffee, working remotely, or simply relaxing, this verdant gathering space invites both respite and interaction.
Inside, natural light, fresh air, and vertical greenery form the core of the interior atmosphere. A dramatic vertical garden built into a cliff wall, accompanied by indoor waterfalls and curated planting schemes, reinforces the connection between architecture and nature, promoting wellness, tranquility, and sustainability.

A New Standard for Urban Commercial Design
Marche Thonglor redefines the potential of commercial and mixed-use architecture in Bangkok, blending sustainable landscape integration with striking design and community-conscious planning. With its harmonious fusion of biophilic elements, multifunctional spaces, and architectural innovation, this development offers a blueprint for future retail environments in tropical urban contexts.


All Photographs are works of Rungkit Charoenwat
Popular Articles
Popular articles from the community
Inverted Architecture Installation by Studio Link-Arc: Exploring the Intersection of Architecture and Living Organisms
Inverted Architecture Installation by Studio Link-Arc blends mycelium, sustainability, inverted design, ecological cycles, and urban adaptive architecture in Shenzhen.
Alton Cliff House: A Harmonious Retreat by f2a Architecture in Lake Country, Canada
Alton Cliff House blends corten steel, prefabrication, and sustainable design, creating a luxurious, energy-efficient retreat perched on Canadian cliffs.
Solar Steam: A Climate-Responsive Architecture That Redefines the Monument
A climate-responsive memorial architecture that transforms heat, decay, and time into a living system reflecting humanity’s ecological impact.
Split House: A Compact Urban Home Blending Privacy, Light, and Flexible Living in Japan
Compact Japanese home featuring DOMA space, flexible café potential, passive lighting, privacy zoning, and sustainable urban living design.
Similar Reads
You might also enjoy these articles
The Ken Roberts Memorial Delineation Competition (Krob)
As the most senior architectural drawing competition currently in operation anywhere in the world, it draws hundreds of entries each year, awarding the very best submissions in a series of medium-based categories.
Waterfront Redevelopment and Urban Revitalization in Mumbai: Forging a New Dawn for Darukhana
A transformative waterfront redevelopment project reimagining Darukhana’s shipbreaking heritage into an inclusive urban future.
OUT-OF-MAP: A Call for Postcards on Feminist Narratives of Public Space
Rhizoma Design and Research Lab invites artists, designers, architects, researchers, and students to reflect on how feminist perspectives can reshape public space. Selected works will be exhibited in Barcelona, October 2026. Submissions open until 15 April 2026.
Documentation Work on Buddhist Wooden Temple
Architectural syncretism and cultural hybridity: A comparative study of the Buddhist temples in Chattogram Hill tracks
Explore Architecture Competitions
Discover active competitions in this discipline
The International Standard for Design Portfolios
The Global Benchmark for Architecture Dissertation Awards
The Global Benchmark for Graduation Excellence
Challenge to reimagine the Iron Throne
Comments (0)
Please login or sign up to add comments
No comments yet. Be the first to comment!