Meandering Furniture Villa Renovation by Atelier Tom Vanhee
Brussels villa renovation featuring meandering custom cabinetry, open-plan interiors, enhanced daylight, exposed structure, and energy-efficient upgrades for contemporary living.
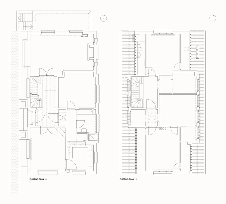
Located in Brussels, Belgium, the Meandering Furniture Villa Renovation is a 383 m² residential transformation completed in 2024 by Atelier Tom Vanhee. Led by architect Tom Vanhee, the project reimagines a traditional detached home: once defined by small, dark, compartmentalized rooms: into a luminous, open, and energy-efficient contemporary living space.


Reconfiguring Space for Modern Living
The original house followed a conventional layout typical of older suburban villas, with enclosed rooms and limited spatial interaction. The renovation strategy focused on removing internal partitions to create a seamless open-plan configuration. By dissolving rigid boundaries between the living room, dining area, and kitchen, the design establishes fluid circulation and a continuous spatial experience throughout the ground floor.
At the heart of the transformation lies the repositioned kitchen. Previously isolated, it now functions as a central social hub, integrated visually and physically with adjacent living areas. A lowered kitchen window aligned precisely with the countertop maximizes natural daylight while strengthening the visual connection between interior and exterior. This intervention not only enhances usability but also elevates the sensory quality of everyday domestic life.


Meandering Furniture as Architectural Connector
A defining feature of the project is the introduction of custom-designed cabinetry that “meanders” through the interior. These bespoke storage elements operate as both functional infrastructure and architectural device: guiding movement, structuring space, and visually linking different zones of the home.
Rather than relying on walls to organize the plan, the design uses furniture as a spatial mediator. This approach reinforces flexibility, preserves openness, and introduces warmth through carefully selected wood finishes. The meandering furniture concept gives the renovation its identity while ensuring practical storage solutions for contemporary family life.


Enhancing Natural Light and Energy Efficiency
Improving daylight performance and thermal efficiency was central to the renovation. Outdated single-glazed windows were replaced with high-performance double-glazed units framed in sleek gray aluminum. These modern frames introduce a subtle contemporary contrast while respecting the villa’s traditional façade.
The upgrade significantly enhances insulation and reduces energy consumption, an essential step in sustainable home renovation in Belgium. Even the basement benefits from new window installations and a durable metal door, replacing inefficient older components and improving overall environmental performance.


Celebrating Structure and Material Authenticity
The renovation carefully exposes portions of the original structural framework, allowing beams and load-bearing elements to become visible architectural features. This decision preserves the building’s historical character while adding visual depth and rhythm to the interior.
Material selection throughout the house balances modern refinement with contextual sensitivity. Wood surfaces, neutral tones, and precise detailing create a cohesive and elegant atmosphere. Externally, interventions remain minimal, ensuring that the updated windows and subtle façade adjustments harmonize with the villa’s original architectural identity.


A Contemporary Villa Renovation in Brussels
The Meandering Furniture Villa Renovation demonstrates how thoughtful residential renovation can transform a conventional home into a bright, adaptable, and energy-efficient living environment. By combining open-plan design, custom furniture integration, and sustainable upgrades, Atelier Tom Vanhee delivers a project that respects the past while embracing contemporary lifestyle needs.
This Brussels villa renovation stands as a model for adaptive residential design: where architecture and furniture merge to create spatial continuity, enhanced daylight, and renewed domestic comfort.



All the photographs are works of
Filip Dujardin
Popular Articles
Popular articles from the community
Marvila Apartment Renovation in Lisbon: A Bright Minimalist Attic Transformation by KEMA Studio
Bright attic transformed into minimalist Lisbon apartment with skylights, sustainable materials, open plan layout, and industrial-inspired interior design elements.
Alton Cliff House: A Harmonious Retreat by f2a Architecture in Lake Country, Canada
Alton Cliff House blends corten steel, prefabrication, and sustainable design, creating a luxurious, energy-efficient retreat perched on Canadian cliffs.
TGK Nirasaki Plant: A Smart Factory Blending Technology, Landscape, and Wellness
Smart factory in Japan blending IoT manufacturing, scenic trail design, natural ventilation, and landscape integration to enhance user experience and sustainability.
Filtering Space: A Gradual Spatial Experience
From urban intensity to spatial calm.
Similar Reads
You might also enjoy these articles
20 Most Popular Commercial Architecture Projects of 2025
From sustainable market concepts to heritage factories, the commercial buildings and proposals that drew the most attention on uni.xyz this year.
Free Architecture Competitions You Can Enter Right Now
No entry fees, real prizes. Here are the best free architecture competitions open for submissions in 2026.
Top 15 Architecture Competitions to Enter in 2026
From student-friendly idea competitions to prestigious international awards, here are the best architecture competitions open for entries in 2026. Updated regularly.
DIY & Engineering in Computational Design : Enter the BeeGraphy Design Awards
Showcase Your Creativity with Computational Design and Open Source Projects
Explore Architecture Competitions
Discover active competitions in this discipline
The International Standard for Design Portfolios
The Global Benchmark for Architecture Dissertation Awards
The Global Benchmark for Graduation Excellence
Challenge to reimagine the Iron Throne
Comments (0)
Please login or sign up to add comments
No comments yet. Be the first to comment!